※このサイトに記載がある賃貸条件は、敷金・保証金などの預かり金を除き、別途消費税がかかります。
物件情報
設備詳細
| 空調 | - |
|---|---|
| トイレ | - |
| 床仕様 | - |
| エレベータ | 3 基 |
| 駐車場設備 | 空有 |
| その他 | 24時間利用可 / 光ファイバー |
京橋TDビルの賃貸オフィス・事務所に関するお問い合わせ
京橋TDビルについて
京橋TDビルは、東京都中央区京橋1丁目に位置するモダンなオフィスビルです。2003年に竣工された本物件は、新耐震基準に則り建設されたことで、地震発生時でもテナント企業とその従業員の安全を確保できる設計が施されております。本ビルは、総合的なビジネス環境の充実を求める企業にとって魅力的な選択肢となるでしょう。 立地に関しては、京橋駅から徒歩3分、日本のビジネスの中心地である東京駅からも徒歩4分という、アクセスの良さが最大の特徴です。この立地は、従業員の通勤の利便性はもちろん、ビジネスパートナーやクライアントとの面会においても時間的な制約を最小限に抑えることができます。 ビルの設備面では、駐車場が地下1階に設けられており、ビル内に喫煙所も完備されています。これにより、自動車通勤をされる方や喫煙者の利便性も高められています。また、エレベーターは3機稼動しており、ビルの利用者がスムーズに移動できるように配慮されています。 外観と共用部に関しても、ハイグレードなデザインが採用されており、リフレッシュスペースの設置など、働く人々の快適性を追求した設計がなされています。これらの要素は、企業イメージの向上にも寄与し、ビルを訪れる全ての人にポジティブな印象を与えることでしょう。 総じて、京橋TDビルは、新耐震基準に準拠した安全な建築設計、中央区というビジネスの中心における絶好のロケーション、そして利便性と快適性を追求した充実した設備が特長です。これらの特徴は、テナント企業にとって業務効率の向上、従業員の満足度の向上、そして企業イメージの強化をもたらすことでしょう。ビジネスにおける成功への第一歩として、京橋TDビルは理想的な選択です。
京橋TDビルのこだわり
自分で探すより問い合わせる方が早いことがあります
WEB非公開物件があるから
オーナー様のご希望により「WEBでは非公開」にしている物件があります。 それらはWEBでいくら検索しても見つかりません。 先ずは条件などお知らせ頂けましたら非公開物件含め ピッタリのオフィスをご提案させて頂きます。 無理なお勧めはしておりませんので、お気軽にお問い合わせください。
対面でのご相談も受け付けております
ご来店も歓迎です
オフィス移転は社内・社外ともに非公開に行われることが殆どです。そのためアットオフィスでは、基本的に訪問によるコンサルティングを行っておりますが、ご来店の相談も歓迎です。お一人おひとりに親身にご対応させて頂きたい為、要予約とさせて頂いております。ご来店の際は先ずは下記よりご予約下さい。
募集終了のテナント区画
| 階数 | 坪数 | 賃料 + 共益費 | 敷金/礼金敷金 礼金 | 検討 |
|---|---|---|---|---|
| 1階 | 117.32坪 (387.85m²) | 募集終了 | - | - |
| 2階 | 32.37坪 (107.01m²) | 募集終了 | - | - |
| 2階 | 154.88坪 (512m²) | 募集終了 | - | - |
| 3階 | 202.68坪 (670.02m²) | 募集終了 | - | - |
| 3階 | 30坪 (99.17m²) | 募集終了 | - | - |
| 3階 | 62.01坪 (204.99m²) | 募集終了 | - | - |
| 4階 | 202.68坪 (670m²) | 募集終了 | - | - |
| 4階 | 91.48坪 (302.41m²) | 募集終了 | - | - |
| 5階 | 140.7坪 (465m²) | 募集終了 | - | - |
| 5階 | 62.01坪 (205m²) | 募集終了 | - | - |
| 6階 | 205坪 (677.69m²) | 募集終了 | - | - |
| 7階 | 150坪 (495.87m²) | 募集終了 | - | - |
| 7階 | 86.43坪 (285.72m²) | 募集終了 | - | - |
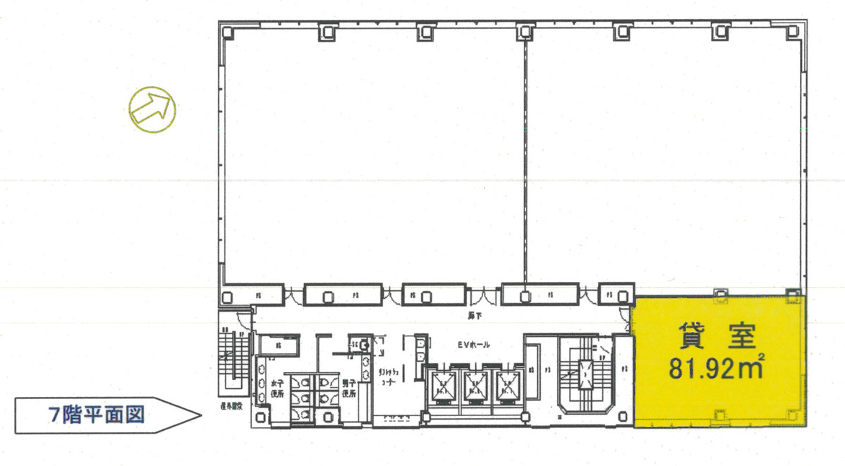
| 7階 | 24.78坪 (81.92m²) | 募集終了 | - | - |
| 8階 | 202.7坪 (670.08m²) | 募集終了 | - | - |
読込中...
近くのエリアで探してみる
八重洲/日本橋/三越前エリアで京橋TDビルに似た条件の物件
読込中...
| 取扱様態 | 仲介 |
|---|---|
| 取扱会社 | 株式会社 アットオフィス |