※このサイトに記載がある賃貸条件は、敷金・保証金などの預かり金を除き、別途消費税がかかります。
物件情報
設備詳細
| 空調 | 個別空調 |
|---|---|
| トイレ | 男女別トイレ室内 |
| 床仕様 | - |
| エレベータ | 1 基 |
| 駐車場設備 | - |
| その他 | 新耐震基準 / 塾・スクール / クリニック / 東京賃料が坪11000円以下 |
星野館ビルの賃貸オフィス・事務所に関するお問い合わせ
星野館ビルについて
星野館ビルは豊島区要町3丁目に位置し、千川駅からわずか徒歩1分という抜群の立地に誇りを持つオフィスビルです。1993年に竣工されたこのビルは、地上7階建てで、現代的な耐震構造を採用しており、安全性にも配慮されています。オフィススペースとしてのスペックの高さは、賃貸市場においても非常に評価が高いです。 外観はシンプルながらも上品なベージュカラーで統一されており、大通りに面しているため、視認性も非常に優れています。エントランスは豪華に造られ、来訪者を迎えるにふさわしい印象を与えます。ビル内にはエレベーターが1基設置されており、スムーズな移動をサポートしています。 ビルの内部設備も充実しており、各フロアにはトイレと給湯室が配されています。基準階面積は約46.54坪で、ほぼ正方形に近い形状のため、オフィスレイアウトの自由度が高く、効率的な空間利用が可能です。また、柱が最小限に抑えられているため、開放感あるオフィス空間を実現しています。 ビル内部には「要湯」という銭湯が入居しており、ビジネスマンにはリフレッシュの場としても利用されています。このようなユニークなテナントがあることも、星野館ビルの独自の魅力の一つです。さらに、スクールやクリニックなども入居しており、多様なニーズに対応する環境が整っています。 周辺環境も素晴らしく、ビルの近くにはお弁当屋やファーストフード店などが多数あり、ビジネスランチにも困ることがありません。また、東京メトロ有楽町線・副都心線の利用が可能で、池袋方面へのアクセスも容易です。 星野館ビルは、その立地の良さ、安全性、快適なオフィス環境、そしてビル内のユニークな設備が魅力の一つとなっており、多様なビジネスニーズに応える理想的なオフィススペースを提供しています。
星野館ビルのこだわり
自分で探すより問い合わせる方が早いことがあります
WEB非公開物件があるから
オーナー様のご希望により「WEBでは非公開」にしている物件があります。 それらはWEBでいくら検索しても見つかりません。 先ずは条件などお知らせ頂けましたら非公開物件含め ピッタリのオフィスをご提案させて頂きます。 無理なお勧めはしておりませんので、お気軽にお問い合わせください。
対面でのご相談も受け付けております
ご来店も歓迎です
オフィス移転は社内・社外ともに非公開に行われることが殆どです。そのためアットオフィスでは、基本的に訪問によるコンサルティングを行っておりますが、ご来店の相談も歓迎です。お一人おひとりに親身にご対応させて頂きたい為、要予約とさせて頂いております。ご来店の際は先ずは下記よりご予約下さい。
募集終了のテナント区画
| 階数 | 坪数 | 賃料 + 共益費 | 敷金/礼金敷金 礼金 | 検討 |
|---|---|---|---|---|
| 2階 | 46.54坪 (153.88m²) | 募集終了 | - | - |
| 3階 | 46.54坪 (153.88m²) | 募集終了 | - | - |
| 3階 | 26.34坪 (87.07m²) | 募集終了 | - | - |
| 3階 | 15.33坪 (50.68m²) | 募集終了 | - | - |
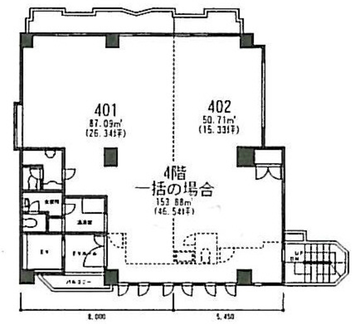
| 4階 | 26.34坪 (87.09m²) | 募集終了 | - | - |
| 4階 | 15.33坪 (50.71m²) | 募集終了 | - | - |
| 6階 | 29.31坪 (96.9m²) | 募集終了 | - | - |
読込中...
要町/千川エリアで星野館ビルに似た条件の物件
読込中...
| 取扱様態 | 仲介 |
|---|---|
| 取扱会社 | 株式会社 アットオフィス |