要町/千川の賃貸オフィス・賃貸事務所
検索結果 19棟20フロア
椎名町レジデンスは、豊島区長崎2丁目に位置する地上2階建ての建物です。周囲は落ち着いた住宅街となっており、静かな環境の中で事業活動を行いたい方に適したロケーションです。西武池袋・豊島線の椎名町駅から徒歩2分、東京地下鉄有楽町線の要町駅から徒歩11分、池袋駅へも徒歩19分で到着できるため、複数駅・複数路線を利用できる特徴があります。 2階建てという構成から、ワンフロアごとに異なる用途や使い方を検討しやすい設計です。事務所や店舗スペースとしての利用をはじめ、打ち合わせやバックヤードなど、階層を分けてゾーニングしやすい点も特長です。周辺には商業施設や飲食店なども点在しており、地域との関係性を築きやすい環境です。 建物の外観や周辺の街並みは落ち着きが感じられ、事業運営に集中できる空間をお探しの方に向いています。詳細はお問い合わせください。
高松一丁目貸店舗は、豊島区高松一丁目に所在する一棟貸しの物件です。地上3階建てとなっており、独立性を求める事業者の利用が想定されます。スペース全体を1社または1グループで利用できるため、フロアごとに機能を分けた運用や、統一感のある空間づくりがしやすい設計です。 最寄り駅として、東京地下鉄副都心線および有楽町線「要町駅」から徒歩4分、さらに有楽町線「千川駅」からも徒歩10分の距離にあり、複数路線が利用できる立地です。周辺は住宅や店舗が混在するエリアであり、地域に根差した店舗展開やサービス拠点、オフィス用途にも適した環境となっています。 複数階を活用した用途や、通りからの視認性を活かした利用方法も検討できます。敷地や周辺環境の特性を活かして、ご希望の事業プランに合わせた利用が可能です。詳細はお問い合わせください。
レジデンスミツイは、西武池袋線「東長崎駅」から徒歩1分という位置にあり、都心への移動が必要な企業活動を想定した場合にも利用しやすい立地となっております。また、大江戸線「落合南長崎駅」も徒歩8分の距離にあり、複数の路線を利用される方にも対応可能です。さらに、西武池袋線「椎名町駅」も徒歩13分の場所に位置しています。 建物は豊島区南長崎5丁目に所在し、周辺はビジネスや生活に必要な施設が集まるエリアです。地上5階建ての構造を持ち、オフィスや事業拠点としての利用を想定した際にも、フロア構成を活かしてさまざまなレイアウトが可能です。ビルの規模が把握しやすく、事業内容やスタッフ数に応じてフロアごとの使い分けも検討しやすいでしょう。 日々の業務においては、駅から建物までの徒歩移動が短縮されることで、従業員や来訪者にとって移動の負担が少なくなります。また、複数の駅が徒歩圏内にあるため、通勤経路の選択肢も広がります。事業活動の拠点としてご検討の際は、現地の周辺環境や建物の仕様についても併せてご確認いただくことをおすすめします。詳細はお問い合わせください。
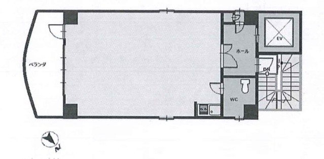
要町2丁目に位置するこの貸店舗ビルは、東京都豊島区において非常に利便性の高いオフィス賃貸物件です。竣工年は不明ですが、現代的な設備と機能を備えています。このビルの最大の魅力の一つは、ビル内に駐車場が完備されている点です。駐車場の空き状況に関しては、詳細な確認が必要ですが、ビル内に駐車場があるという利便性は、車での通勤や営業活動を行う企業にとって大きなメリットとなります。 立地条件も非常に優れており、東京地下鉄有楽町線の千川駅から徒歩4分というアクセスの良さが際立ちます。この距離は、通勤時のストレスを大幅に軽減し、従業員の満足度向上にも寄与します。また、千川駅周辺には飲食店やコンビニエンスストア、銀行などが点在しており、ビジネスパーソンに必要なあらゆるサービスが揃っています。これにより、社員の利便性が高まり、仕事の効率も向上することでしょう。 設備面では、ビル内の駐車場に加え、最新のセキュリティシステムや快適なオフィス環境が整っていることが予想されます。これらの設備は、企業の資産を守るだけでなく、働く人々の安全と快適さを確保するために重要な要素です。セキュリティシステムの詳細については、現地見学や問い合わせを通じて確認することをお勧めします。 さらに、要町2丁目というエリア自体も魅力的です。豊島区は東京都の中でも文化と歴史が豊富な地域であり、多くの企業が本社を構えるビジネスの中心地の一つです。要町2丁目からは、池袋などの主要な商業エリアへのアクセスも良好であり、ビジネスチャンスが広がる立地であると言えるでしょう。 この貸店舗ビルは、上記のような多くの利点を持ち合わせており、特に駐車場完備という点は他のビルにはない大きな特徴です。車を利用するビジネスにおいては大きな強みとなり、企業の活動を一層円滑に進めることができるでしょう。また、千川駅からのアクセスの良さも、従業員の通勤をスムーズにし、業務効率の向上に繋がります。 総じて、この貸店舗ビルは、立地の良さと駐車場の完備という二つの大きな利点を持つ、非常に魅力的なオフィス賃貸物件です。豊島区というビジネスエリアの中でも、特に要町2丁目という便利な場所に位置しているため、多くの企業にとって理想的なオフィススペースとなるでしょう。興味を持たれた方は、ぜひ一度現地見学や詳細な問い合わせを行い、この素晴らしい物件の魅力を直接感じてみてください。
エムズミレナリオは、豊島区長崎4丁目に位置する地上5階建ての事業用賃貸物件です。最寄り駅である西武池袋・豊島線「東長崎駅」から徒歩1分の場所にあり、駅から建物までの距離が近い点が特徴です。また、東京都大江戸線「落合南長崎駅」へは徒歩12分、有楽町線「千川駅」へも徒歩13分でアクセスできます。複数の路線駅が利用可能なため、都内各所への移動がしやすい環境となっています。 周辺には住宅や店舗が立ち並び、日常の利便性を感じられるエリアに立地しています。建物の外観や共用部は、ビジネスシーンやオフィス利用にも適した落ち着いた雰囲気を備えています。5階建てという構造は、事業用としての独立性や用途ごとのフロア分けが可能であり、多様なレイアウト設計が考えられます。 視認性のある通り沿いに建ち、来客やスタッフの出入りもスムーズに行える点がポイントです。周辺には飲食店やサービス店舗も点在し、働く方々の日常にも配慮した環境が整っています。詳細はお問い合わせください。
メゾン千早は、豊島区千早4丁目に立地する事業用賃貸ビルです。近隣には、東京地下鉄副都心線「千川駅」まで徒歩7分、西武池袋・豊島線「東長崎駅」まで徒歩10分、西武有楽町線「小竹向原駅」まで徒歩12分と、複数路線へのアクセスが可能なエリアに位置しています。建物は地上3階・地下1階で構成されており、多層階の活用ができる点が特徴です。 通勤経路や来客の導線を考慮した際、複数の駅が利用できる立地は、オフィスや事務所利用時の選択肢を広げます。周辺は住宅や店舗も点在する地域であり、穏やかな環境の中で事業を進めることができます。建物内部には光ファイバーが設置されており、インターネットを利用した業務にも対応可能です。 各階を用途に応じて使い分けることができるため、執務スペースや会議室、倉庫など、目的に合わせたレイアウトが可能です。事業所としての活用をご検討の際は、ぜひ現地をご確認ください。詳細はお問い合わせください。
第2末野ビルは、豊島区長崎4丁目に位置し、複数路線の駅から徒歩でのアクセスが可能な建物です。西武池袋・豊島線「東長崎駅」からは徒歩2分、大江戸線「落合南長崎駅」から徒歩10分、有楽町線「千川駅」から徒歩12分と、周囲の交通機関への接続が確保されています。建物は周辺エリアへの移動がしやすい立地となっており、事務所や店舗など法人利用を想定した運用が可能です。 周辺には住宅や商業施設が点在し、地域に根ざした事業展開を計画する際にも利用が見込まれます。所在地が長崎4丁目であることから、地域特性を活かした活動や拠点設置を検討される企業にとっても、活用の選択肢となります。 なお、建物の基準階面積や設備、建物の構造等については情報がありませんので、用途やご利用計画に合わせて詳細をご確認いただくことをおすすめします。各駅からの距離や周辺環境を踏まえ、事業計画の拠点として検討される場合は、詳細はお問い合わせください。
# グリンハイツ南長崎ビルの紹介 ## 立地と交通アクセス グリンハイツ南長崎ビルは、東京都豊島区南長崎1丁目に位置するマンションで、SOHO(Small Office/Home Office)および事務所利用が可能な物件として注目されています。このビルの最寄り駅は西武池袋・豊島線の「椎名町」駅で、徒歩3分という非常に利便性の高い距離にあります。駅からのアクセスが良好であるため、通勤やクライアントの訪問にも便利です。 ## 建物の特徴と設備 グリンハイツ南長崎ビルは、SOHO利用が相談可能なマンションとして設計されており、ビジネスを運営する上で必要な設備が整っています。具体的には、オフィスとしての利用を前提とした間取りや設備が整備されており、スタートアップ企業や小規模な事業者にとって最適な環境を提供します。また、事務所利用も相談可能であるため、多様な業種や働き方に対応できる柔軟性があります。 ## 周辺環境 南長崎エリアは、豊島区内でも比較的静かで落ち着いた雰囲気を持つ地域です。ビルの周辺には生活に必要な商業施設や飲食店が点在しており、日常の利便性も高いです。また、周辺には公園や緑地も多く、リフレッシュしたい時やランチタイムの散策にも適しています。さらに、池袋エリアへのアクセスも良好で、ビジネスの中心地とも言えるエリアへの移動がスムーズです。 ## ビジネスにおける利点 グリンハイツ南長崎ビルの最大の魅力は、その柔軟性と利便性にあります。SOHO利用が可能なため、自宅兼オフィスとしての利用が可能で、家賃や光熱費を抑えつつ、効率的にビジネスを展開することができます。また、椎名町駅から徒歩3分というアクセスの良さは、ビジネスパートナーやクライアントとの打ち合わせにも便利です。 さらに、豊島区という立地は、東京の主要ビジネスエリアへのアクセスが容易であるため、ビジネスチャンスを広げることができます。周辺には銀行や郵便局もあり、ビジネスに必要なインフラが整っています。 ## まとめ グリンハイツ南長崎ビルは、SOHO利用や事務所利用が可能なマンションであり、立地の良さと充実した設備が特徴です。南長崎1丁目という静かで利便性の高いエリアに位置し、西武池袋・豊島線の椎名町駅から徒歩3分という好立地は、ビジネスを展開する上で大きな魅力です。柔軟な用途に対応できるこのビルは、小規模なスタートアップ企業やフリーランスの方々にとって最適な選択肢となるでしょう。 このように、グリンハイツ南長崎ビルは、立地、設備、周辺環境の全てにおいてバランスが取れた物件であり、ビジネスの成功をサポートする理想的な環境を提供します。
カーサモリヤ要町は、豊島区要町2丁目に位置する、1997年竣工の事業用物件です。東京地下鉄有楽町線の千川駅から徒歩6分、要町駅からは徒歩7分で、さらに副都心線要町駅も同距離に位置するため、アクセスが非常に便利です。地下1階と地上1階のセット貸しが可能で、広いスペースをお求めの方に最適です。前テナントは病院として使用されていたため、医療関係の開業をお考えの方には理想的な環境が整っています。周辺には住宅地や商業施設が多く、地域住民や通勤者の流れがあるため、集客にも期待できます。ぜひこの機会に、カーサモリヤ要町で新しいスタートを切ってみませんか。
長崎ビルは、東京都豊島区要町に位置する、1984年に竣工された3階建ての賃貸オフィスビルです。この物件は、白いタイル張りの外観が特徴で、シンプルながらも洗練されたデザインが都市的な印象を与えます。長崎ビルは、角地に立地しており、視認性が非常に高いことが特長です。これはビジネスの展開において、企業のブランドイメージを高める重要な要素となり得ます。 当ビルの基準階は約24坪となっており、中小規模の企業に適した広さです。特に注目すべきは、エレベーターの不在にも関わらず、その他の設備が充実している点です。オフィスへのアクセスは階段を使用しますが、これが逆にプライバシー保護とセキュリティ向上に寄与しています。 立地においても、長崎ビルは優れた位置にあります。最寄りの千川駅からは徒歩わずかでアクセス可能であり、通勤の利便性が非常に高いです。また、周辺には飲食店、コンビニ、銀行ATMといった生活支援施設が充実しており、働く人々の日常生活をサポートします。このような環境は、従業員の働きやすさを向上させるとともに、ビジネスの効率化を促進します。 長崎ビルが提供する最大のメリットの一つは、その立地と環境によって、企業が高い企業イメージを維持しやすい点です。ビルの周辺環境と連携したビジネスの展開が可能であり、クライアントやビジネスパートナーを迎える際の印象も良好です。 総じて、長崎ビルは、中小企業やスタートアップ企業にとって非常に魅力的なオプションです。立地、設備、デザインのすべてが、企業が市場で成功するための要素をしっかりと備えています。豊島区要町でビジネスを展開する企業にとって、長崎ビルは理想的な選択肢と言えるでしょう。
ARTE PIAZZAは、豊島区南長崎2丁目に位置する事業用賃貸物件です。西武池袋・豊島線「椎名町駅」から徒歩9分、東京都大江戸線「落合南長崎駅」からも同じく9分、さらに西武新宿線「下落合駅」からは12分でアクセス可能です。複数の鉄道路線が利用できるため、周辺エリアへの移動や訪問者の案内にも活用できます。 南長崎エリアは、住環境と商業エリアが混在し、様々な形態のビジネスに対応しやすい環境です。本物件は静かな住宅街に位置しており、業務に集中できる落ち着いた雰囲気が特徴です。外部からのアクセス経路が複数あるため、従業員や来訪者の動線も確保しやすい立地となっています。 建物の利用用途や詳細な設備については、現地確認やお問い合わせによってご案内が可能です。オフィスや事務所、その他の事業拠点をお探しの法人様に、各種ご要望に合わせて柔軟なご提案ができます。詳細はお問い合わせください。
ライオンズ東長崎第3ビルは、東京都豊島区長崎6丁目に位置する、SOHOや事務所利用が可能なマンションです。このビルは、企業や個人事業主にとって理想的なオフィススペースを提供するために設計されています。 まず、ライオンズ東長崎第3ビルの最も注目すべき特徴の一つは、その立地条件です。西武池袋・豊島線の東長崎駅から徒歩9分、さらに東京地下鉄有楽町線の千川駅からも徒歩8分という、2つの主要な公共交通機関にアクセスしやすい場所に位置しています。この利便性の高い立地は、通勤やビジネスミーティングの際に大きなアドバンテージとなります。 1階には路面店があり、ビジネスの顔としての存在感をしっかりとアピールすることができます。路面店の利点は、顧客からのアクセスが容易であることや、視認性が高いことです。これにより、店舗型ビジネスやサービス業にとって非常に魅力的な選択肢となります。 ビル内には1機のエレベーターが設置されており、上階への移動もスムーズです。また、新耐震基準に準拠して建設されているため、地震への備えも万全です。ビジネスにおいては安全性も重要な要素であり、この点においてもライオンズ東長崎第3ビルは信頼性があります。 設備面では、最新のセキュリティシステムや快適な空調設備が整っており、ビジネス環境として必要なあらゆる要素が揃っています。これにより、従業員の快適性を確保し、生産性を最大限に引き出すことが可能です。 ライオンズ東長崎第3ビルの独自の魅力は、その多機能性にあります。SOHO利用が可能であるため、自宅兼オフィスとしての利用も考慮されています。これにより、柔軟な働き方を実現し、ワークライフバランスを保ちながらのビジネス運営が可能です。 総じて、ライオンズ東長崎第3ビルは、その優れた立地、充実した設備、そして多機能性が特徴のマンションです。企業や個人事業主にとって、ここでのビジネス展開は非常に魅力的な選択肢となるでしょう。豊島区の中心地に位置し、アクセスの良さ、安全性、そして快適性を兼ね備えたこのビルは、ビジネスの成功を後押しする理想的な環境を提供します。
星野館ビルは豊島区要町3丁目に位置し、千川駅からわずか徒歩1分という抜群の立地に誇りを持つオフィスビルです。1993年に竣工されたこのビルは、地上7階建てで、現代的な耐震構造を採用しており、安全性にも配慮されています。オフィススペースとしてのスペックの高さは、賃貸市場においても非常に評価が高いです。 外観はシンプルながらも上品なベージュカラーで統一されており、大通りに面しているため、視認性も非常に優れています。エントランスは豪華に造られ、来訪者を迎えるにふさわしい印象を与えます。ビル内にはエレベーターが1基設置されており、スムーズな移動をサポートしています。 ビルの内部設備も充実しており、各フロアにはトイレと給湯室が配されています。基準階面積は約46.54坪で、ほぼ正方形に近い形状のため、オフィスレイアウトの自由度が高く、効率的な空間利用が可能です。また、柱が最小限に抑えられているため、開放感あるオフィス空間を実現しています。 ビル内部には「要湯」という銭湯が入居しており、ビジネスマンにはリフレッシュの場としても利用されています。このようなユニークなテナントがあることも、星野館ビルの独自の魅力の一つです。さらに、スクールやクリニックなども入居しており、多様なニーズに対応する環境が整っています。 周辺環境も素晴らしく、ビルの近くにはお弁当屋やファーストフード店などが多数あり、ビジネスランチにも困ることがありません。また、東京メトロ有楽町線・副都心線の利用が可能で、池袋方面へのアクセスも容易です。 星野館ビルは、その立地の良さ、安全性、快適なオフィス環境、そしてビル内のユニークな設備が魅力の一つとなっており、多様なビジネスニーズに応える理想的なオフィススペースを提供しています。
コーポサカネは、1969年1月に竣工した2階建ての建物で、東京都内の閑静な住宅地に位置しています。最寄り駅は東京地下鉄有楽町線の千川駅で、徒歩9分という便利な立地です。また、東武鉄道東上線の大山駅からは徒歩13分、東京地下鉄副都心線の小竹向原駅からは徒歩17分の距離にあります。これにより、都内各所へのアクセスが容易で、通勤や移動に非常に便利です。 このエリアは閑静な住宅地で、落ち着いた環境の中で業務を行うことができます。周辺には生活に必要な施設や店舗も充実しており、利便性の高い場所にあります。コーポサカネは、アクセスの良さと静かな環境の両方を兼ね備えており、さまざまな用途に適した物件です。
アネックス目白ビルは、東京都豊島区南長崎に位置する現代的なオフィスビルで、1995年に竣工されました。このビルの最大の特徴は、コンクリート打ちっぱなしの外壁に青空を映す前面鏡面ガラス張りのデザインです。美しいファサードは、通る人々の目を引きつけるだけでなく、ビル内のオフィス環境への期待感を高めます。 立地においても、アネックス目白ビルは非常に便利な位置にあります。椎名町駅から徒歩わずか1分というアクセスの良さは、ビジネスでの移動効率を格段に向上させます。さらに、池袋まで電車で3分という近さは、豊富な商業施設やビジネスリソースを手軽に利用できるというメリットを提供します。また、首都高速中央環状線の出入り口も近く、車での移動にも非常に便利です。 ビルの設備も非常に充実しています。利用可能なオフィスフロアは、14.35坪から15.65坪の広さを提供し、多様なビジネスニーズに対応可能です。各オフィスには個別空調が完備されており、快適な労働環境を保つことができます。また、24時間利用可能な機械警備システムが導入されているため、安全面でも安心して業務を行うことができます。 周辺環境においても、住宅街としての静かな雰囲気の中にスーパーやファッションセンターなどの生活支援施設が点在しており、働く人々の日常生活に便利です。このような立地条件は、従業員の満足度を高め、企業のパフォーマンス向上にも寄与します。 アネックス目白ビルは、その優れた設備、利便性の高い立地、そして魅力的なデザインにより、あらゆるビジネスニーズに応える理想的なオフィススペースを提供します。ここでのビジネスは、企業のブランド価値を高め、さまざまな機会を引き寄せることでしょう。
サダシン要町ビルは、東京都豊島区要町1丁目に位置する、1991年に竣工されたモダンなオフィスビルです。このビルは、耐震性に優れた構造を持ち、安全性と機能性を兼ね備えたビジネス環境を提供します。タイル張りの洗練された外観は、企業のプロフェッショナルなイメージを強化します。 【立地の利点】 サダシン要町ビルは、要町駅から徒歩1分という抜群のアクセスの良さが特徴です。ビルは要町大通りに面しており、人通りの多いエリアに位置しているため、ビジネスの展開において大きなメリットを提供します。また、池袋駅からも徒歩圏内であり、多方面からのアクセスの利便性は非常に高く、従業員やクライアントの通勤にも最適です。 【設備の特徴】 ビル内には1基のエレベーターが設置されており、スムーズな移動をサポートします。オフィスフロアは、効率的なレイアウトが可能で、各企業のニーズに合わせたカスタマイズが可能です。低層階には店舗や事務所が入居しており、ビルの活性化とともに、テナント企業への付加価値も提供しています。 【ビジネスにおける利点】 サダシン要町ビルの立地と設備は、ビジネスの機会を最大限に引き出すために設計されています。駅近という利点は、ビジネスのアクセシビリティを高め、クライアントとの打ち合わせや従業員の採用においても、企業の魅力を高める要素となります。また、耐震性の確保は、災害リスクを低減し、企業の重要資産を守るための重要なスペックです。 【まとめ】 サダシン要町ビルは、その優れた立地、高度な設備、そして安全性の確保により、様々なビジネスシーンでの成功をサポートする理想的なオフィス環境を提供します。企業が求める価値を実現するための、最適なビジネスハブとしての役割を果たすでしょう。
### 千早2丁目1棟貸しオフィスビルのご紹介 千早2丁目1棟貸しは、東京都千早2丁目に位置する魅力的なオフィスビルです。この物件は、好立地と快適な環境を提供するため、ビジネスを運営するための理想的な選択肢となります。 #### 特徴と立地 1. **優れたアクセス** 千早2丁目1棟貸しは、千川駅から徒歩4分、要町駅から徒歩8分という駅近物件です。これにより、従業員やクライアントのアクセスが非常に便利になり、交通の便が良いことはビジネス運営において大きな強みとなります。 2. **周辺環境** ビルの周囲には飲食店、公園、そしてパーキングが点在しており、ビジネスの合間にリフレッシュが可能です。また、近隣には他のオフィスビルや多目的グラウンドがあり、ビジネスパートナーとの交流やネットワークの構築にも最適な環境が整っています。 3. **視界の良さ** 建物の向かいには広がるグラウンドがあり、見通しが良いことが特徴です。このため、周辺の景観が開放的で、ストレスの少ない働きやすい環境が提供されます。歩行者や自転車が通りやすいエリアであるため、昼休みの散歩や自転車通勤にも適しています。 #### 設備と仕様 1. **竣工年** 千早2丁目1棟貸しは1982年に竣工しました。老舗の風格を持ちながらも、必要なリノベーションが施されており、現代のビジネスニーズに応える設備が整っています。 2. **設備** 内部はオフィススペースとして最適な設計がされており、快適な作業環境を提供します。ビル全体を一棟貸しする形式であるため、独自のレイアウトやデザインを自由に施すことが可能です。ビジネスの拡大や新規プロジェクトの立ち上げに際して、柔軟に対応できる点が魅力です。 #### ビジネスにおける利点 1. **独自性とプライバシー** 一棟貸しのため、他の企業とスペースを共有することなく、自社専用のオフィス環境を確保できます。これにより、プライバシーが守られ、集中して業務に取り組むことが可能です。 2. **コミュニティの形成** 周囲に多くのオフィスビルがあり、ビジネスコミュニティが形成されています。このため、異業種との交流や連携が容易であり、新しいビジネスチャンスを見つける可能性が広がります。 3. **リフレッシュ環境** 周辺の飲食店や公園は、ビジネスの合間にリフレッシュするための絶好の場所です。特に公園は、社員のリフレッシュや小休憩に適しており、健康的なワークライフバランスを維持するための重要な要素となります。
現在 1 ~ 19 棟 / 全 19 棟