三井ウッディビル2階の賃貸情報
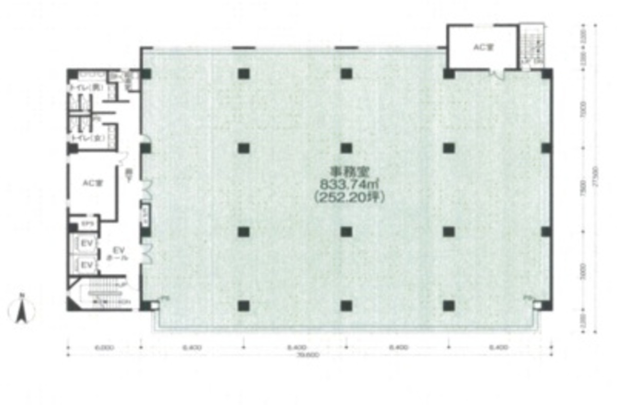
252.2 坪 (833.74m²)
※このサイトに記載がある賃貸条件は、敷金・保証金などの預かり金を除き、別途消費税がかかります。
三井ウッディビルの建物概要
設備詳細
| 空調 | 個別空調 |
|---|---|
| トイレ | 男女別トイレ |
| 床仕様 | - |
| エレベータ | 2 基 / エレベーター有 |
| 駐車場設備 | 敷地内駐車場 |
| その他 | 機械警備 / 24時間利用可 / 大型ビル / 光ファイバー / 新耐震基準 / 管理人常駐 |
三井ウッディビルについて
東陽町駅徒歩3分の立地、東西線が利用可能です。 2022年8月に共用部をリニューアルしており、 エントランス等がシックでおしゃれなイメージとなりました。 1階は天井高が3mあり、全面道路に面した自動ドアが設置されております。 荷物の搬入などがあるお客様に非常に相性が良さそうです。 駐車場も平置きのご用意があります。お値段や空室はご相談ください。 ビルの開館時間は平日8:00〜19:00となり、それ以外はセキュリティキーでの解錠が可能です。 照明はLEDに取り替えており明るく開放感のある物件です。
自分で探すより問い合わせる方が早いことがあります
WEB非公開物件があるから
オーナー様のご希望により「WEBでは非公開」にしている物件があります。 それらはWEBでいくら検索しても見つかりません。 先ずは条件などお知らせ頂けましたら非公開物件含め ピッタリのオフィスをご提案させて頂きます。 無理なお勧めはしておりませんので、お気軽にお問い合わせください。
対面でのご相談も受け付けております
ご来店も歓迎です
オフィス移転は社内・社外ともに非公開に行われることが殆どです。そのためアットオフィスでは、基本的に訪問によるコンサルティングを行っておりますが、ご来店の相談も歓迎です。お一人おひとりに親身にご対応させて頂きたい為、要予約とさせて頂いております。ご来店の際は先ずは下記よりご予約下さい。
江東区エリアで三井ウッディビルに似た条件の物件
読込中...
三井ウッディビルと同じ最寄駅の物件
読込中...
| 取扱様態 | 仲介 |
|---|---|
| 取扱会社 | 株式会社 アットオフィス |