SNビル10階の賃貸情報
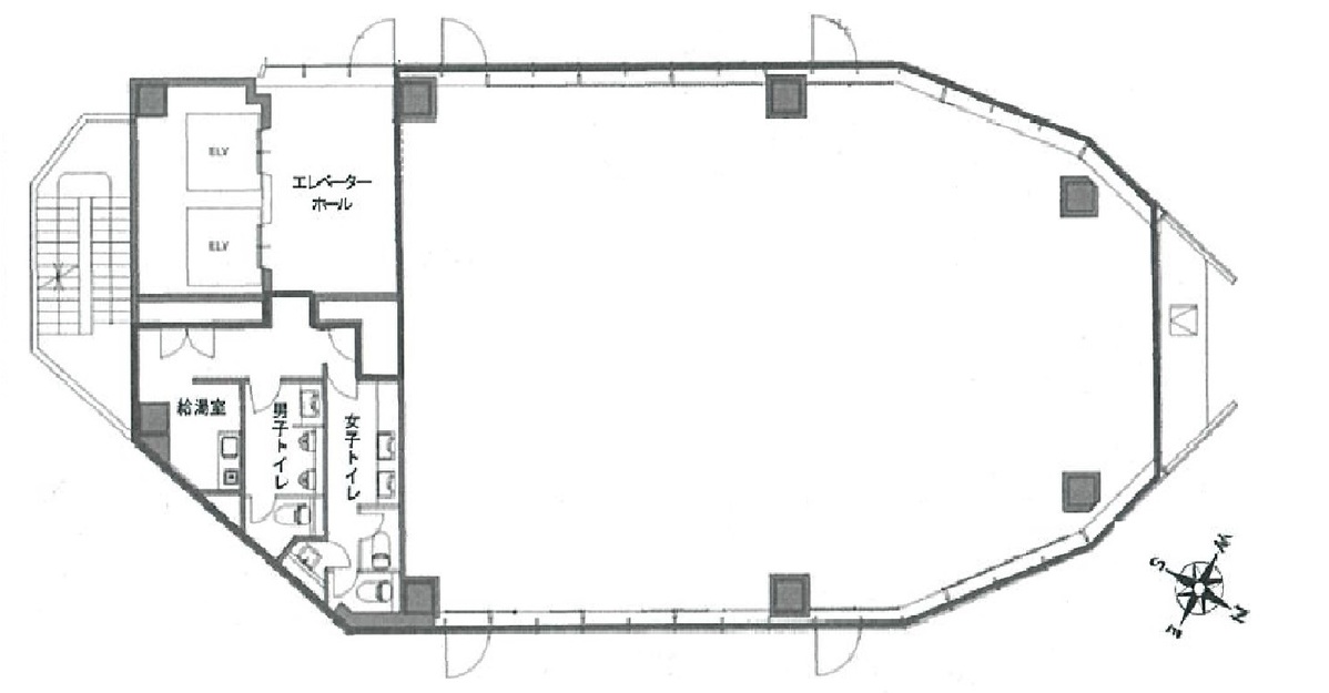
26.2 坪 (86.61m²)
※このサイトに記載がある賃貸条件は、敷金・保証金などの預かり金を除き、別途消費税がかかります。
SNビルの建物概要
設備詳細
| 空調 | - |
|---|---|
| トイレ | - |
| 床仕様 | - |
| エレベータ | 1 基 |
| 駐車場設備 | - |
| その他 | 光ファイバー / 24時間利用可 |
SNビル10階の賃貸オフィス・事務所に関するお問い合わせ
SNビルについて
SNビル(港区海岸)は、2007年に竣工した現代的な設計の賃貸オフィスビルです。この10階建ての物件は、基準階約70坪の広々としたオフィススペースを提供しており、特に中小企業やスタートアップ企業にとって理想的な環境を提供します。エレベーターは2基設置されており、スムーズな移動が可能です。 外観はガラス張りで、現代的かつスタイリッシュなデザインが特徴です。このため、視認性が高く、企業のイメージアップにも寄与するでしょう。ビルの立地は、交通の便が非常に良い港区海岸にあります。特に、最寄り駅である竹芝駅へは徒歩圏内で、浜松町駅や大門駅からもアクセスが可能です。ビルの前面は海岸通り沿いに位置し、上を首都高速道路が通っているため、交通量が多く、ビジネスの中心地への迅速なアクセスが可能です。ただし、音が気になる方は内見時に確認することをお勧めします。 ビルの裏手には、旧芝離宮恩賜庭園が広がっており、自然豊かな環境が広がっています。そのため、上層階からは自然を望むことができ、オフィスでのストレス軽減やクリエイティブな仕事にも最適な環境が整っています。 敷地内にコインパーキングが設置されており、ビル内に駐車場があるため、来客や社員の車での通勤も便利です。周辺環境も充実しており、徒歩4分の場所には東京ポートシティがあり、飲食店やコンビニなどの生活便利施設が揃っています。 SNビルは、最新の耐震基準に準拠した施工で建てられているため、安全性も高く、企業の事業継続計画(BCP)の観点からも評価できる物件です。このように、SNビルは立地、環境、設備と三拍子揃った賃貸オフィスとして、あらゆるビジネスニーズに応える魅力あふれる物件です。
SNビルのこだわり
自分で探すより問い合わせる方が早いことがあります
WEB非公開物件があるから
オーナー様のご希望により「WEBでは非公開」にしている物件があります。 それらはWEBでいくら検索しても見つかりません。 先ずは条件などお知らせ頂けましたら非公開物件含め ピッタリのオフィスをご提案させて頂きます。 無理なお勧めはしておりませんので、お気軽にお問い合わせください。
対面でのご相談も受け付けております
ご来店も歓迎です
オフィス移転は社内・社外ともに非公開に行われることが殆どです。そのためアットオフィスでは、基本的に訪問によるコンサルティングを行っておりますが、ご来店の相談も歓迎です。お一人おひとりに親身にご対応させて頂きたい為、要予約とさせて頂いております。ご来店の際は先ずは下記よりご予約下さい。
近くのエリアで探してみる
港南/高輪/白金台/(品川駅)エリアでSNビルに似た条件の物件
読込中...
SNビルと同じ最寄駅の物件
読込中...
| 取扱様態 | 仲介 |
|---|---|
| 取扱会社 | 株式会社 アットオフィス |