※このサイトに記載がある賃貸条件は、敷金・保証金などの預かり金を除き、別途消費税がかかります。
物件情報
設備詳細
| 空調 | 個別空調 |
|---|---|
| トイレ | 男女別トイレ |
| 床仕様 | OA対応床(フリーアクセス) |
| エレベータ | 2 基 / エレベーター有 |
| 駐車場設備 | 敷地内駐車場 |
| その他 | 新耐震基準 / 機械警備 / 24時間利用可 / 管理人常駐 / 光ファイバー |
KDX浜松町ビルの賃貸オフィス・事務所に関するお問い合わせ
KDX浜松町ビルについて
【KDX浜松町ビルのご紹介】 今回ご紹介するのは、東京都港区に位置する「KDX浜松町ビル」です。このビルは、1999年に竣工された9階建ての賃貸オフィス物件で、ビジネスシーンに最適な洗練された空間を提供しています。基準階約101坪の広々としたオフィスフロアは、柔軟なレイアウト変更を可能にし、さまざまなビジネスニーズに応えます。 【立地の魅力】 KDX浜松町ビルは、第一京浜沿いに位置し、大門駅から徒歩3分、浜松町駅からも徒歩3分という絶好のアクセスを誇ります。周辺には飲食店やコンビニ、銀行などが豊富にあり、ビジネスだけでなく日常の利便性も高いエリアです。芝公園駅も徒歩5分と、3駅が利用可能なため、通勤やビジネスの拠点として非常に便利です。 【設備・セキュリティ】 ビル内には、高速のエレベーターが2基設置され、スムーズな移動をサポートします。個別空調システムを採用しており、各テナントが快適なオフィス環境を管理できるのも大きな特徴です。セキュリティ面では、機械警備が24時間体制で安心を提供し、オフィスは24時間利用可能。働き方が多様化する現代において、柔軟な時間帯での業務展開を可能にします。 【ビルの特色】 オレンジがかったレンガ調の外観は、周囲のビル群の中でも一際目を引き、訪れるクライアントにも良い印象を与えます。エントランスは大理石調で、来客時の印象アップが期待できる高級感溢れるデザインです。また、床下にはケーブルやコンセントを納めることができるOAフロアを採用しており、オフィスのレイアウトも自由自在。余計な柱がないため、広々とした空間利用が可能です。 【まとめ】 KDX浜松町ビルは、優れたアクセス、豊富な周辺施設、高機能なオフィス空間を兼ね備えたビジネスの拠点として最適な物件です。ここでのビジネス展開は、従業員の働きやすさはもちろん、クライアントからの信頼獲得にも寄与します。ぜひ一度、この魅力あふれるビルをご内覧ください。貴社の新たなスタートに、KDX浜松町ビルをお選びいただければ幸いです。
自分で探すより問い合わせる方が早いことがあります
WEB非公開物件があるから
オーナー様のご希望により「WEBでは非公開」にしている物件があります。 それらはWEBでいくら検索しても見つかりません。 先ずは条件などお知らせ頂けましたら非公開物件含め ピッタリのオフィスをご提案させて頂きます。 無理なお勧めはしておりませんので、お気軽にお問い合わせください。
対面でのご相談も受け付けております
ご来店も歓迎です
オフィス移転は社内・社外ともに非公開に行われることが殆どです。そのためアットオフィスでは、基本的に訪問によるコンサルティングを行っておりますが、ご来店の相談も歓迎です。お一人おひとりに親身にご対応させて頂きたい為、要予約とさせて頂いております。ご来店の際は先ずは下記よりご予約下さい。
募集終了のテナント区画
| 階数 | 坪数 | 賃料 + 共益費 | 敷金/礼金敷金 礼金 | 検討 |
|---|---|---|---|---|
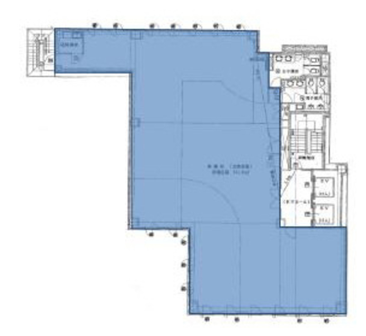
| 3階 | 101.6坪 (335.86m²) | 募集終了 | - | - |
| 4階 | 101.6坪 (335.87m²) | 募集終了 | - | - |
| 5階 | 101.6坪 (335.87m²) | 募集終了 | - | - |
| 6階 | 101.74坪 (336.33m²) | 募集終了 | - | - |
| 7階 | 101.6坪 (335.87m²) | 募集終了 | - | - |
| 8階 | 101.6坪 (335.87m²) | 募集終了 | - | - |
| 9階 | 100.99坪 (333.85m²) | 募集終了 | - | - |
読込中...
近くのエリアで探してみる
浜松町/田町/芝公園エリアでKDX浜松町ビルに似た条件の物件
読込中...
| 取扱様態 | 仲介 |
|---|---|
| 取扱会社 | 株式会社 アットオフィス |