横浜コネクトスクエア9階の賃貸情報
面積
24.03 坪 (79.45m²)
賃料
お問合せ下さい (坪:-)
共益費賃料込
敷金 / 礼金 / 保証金6ヶ月/無/無
償却無
更新料無
※このサイトに記載がある賃貸条件は、敷金・保証金などの預かり金を除き、別途消費税がかかります。
横浜コネクトスクエアの建物概要
設備詳細
| 空調 | 個別空調 |
|---|---|
| トイレ | 男女別トイレ室外 |
| 床仕様 | OA対応床(フリーアクセス) |
| エレベータ | 21 基 |
| 駐車場設備 | 機械式駐車場 |
| その他 | 機械警備 / 会議室 / 管理人常駐 |
横浜コネクトスクエア9階の賃貸オフィス・事務所に関するお問い合わせ
横浜コネクトスクエアについて
みなとみらい線「みなとみらい」駅徒歩4分、JR「桜木町」駅徒歩7分の2路線できる位置にございます。2023年1月竣工し、鉄骨造、鉄骨鉄筋コンクリート造地下1階、地上28階建てでございます。9階にラウンジスペースがございます。コワーキングスペースや貸会議室、コンビニがあり様々なシーンで利用できるスペースとなります。
その他の区画
| 階数 | 坪数 | 賃料 + 共益費 | 敷金/礼金敷金 礼金 | 検討 |
|---|---|---|---|---|
| 15階 | 1255.99坪 (4152.04m²) | お問合せ下さい (坪:-) | 12ヶ月 無12ヶ月/無 | |
| 16階 | 1255.99坪 (4152.04m²) | お問合せ下さい (坪:-) | 12ヶ月 無12ヶ月/無 | |
| 17階 | 1255.99坪 (4152.04m²) | お問合せ下さい (坪:-) | 12ヶ月 無12ヶ月/無 | |
| 1階 | 25.87坪 (85.54m²) | お問合せ下さい (坪:-) | 相談 無相談/無 | |
| 7階 | 630.88坪 (2085.52m²) | お問合せ下さい (坪:-) | 12ヶ月 無12ヶ月/無 | |
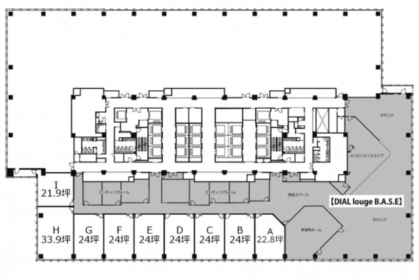
| 9階 | 22.8坪 (75.37m²) | お問合せ下さい (坪:-) | 6ヶ月 無6ヶ月/無 | |
| 9階 | 24.03坪 (79.45m²) | お問合せ下さい (坪:-) | 6ヶ月 無6ヶ月/無 | |
| 9階 | 24.03坪 (79.45m²) | お問合せ下さい (坪:-) | 6ヶ月 無6ヶ月/無 | |
| 9階 | 21.96坪 (72.59m²) | お問合せ下さい (坪:-) | 6ヶ月 相談6ヶ月/相談 | |
| 9階 | 24.03坪 (79.45m²) | お問合せ下さい (坪:-) | 6ヶ月 無6ヶ月/無 | |
| 9階 | 24.03坪 (79.45m²) | お問合せ下さい (坪:-) | 6ヶ月 無6ヶ月/無 |
自分で探すより問い合わせる方が早いことがあります
WEB非公開物件があるから
オーナー様のご希望により「WEBでは非公開」にしている物件があります。 それらはWEBでいくら検索しても見つかりません。 先ずは条件などお知らせ頂けましたら非公開物件含め ピッタリのオフィスをご提案させて頂きます。 無理なお勧めはしておりませんので、お気軽にお問い合わせください。
WEBから条件問い合わせをする(無料)
対面でのご相談も受け付けております
ご来店も歓迎です
オフィス移転は社内・社外ともに非公開に行われることが殆どです。そのためアットオフィスでは、基本的に訪問によるコンサルティングを行っておりますが、ご来店の相談も歓迎です。お一人おひとりに親身にご対応させて頂きたい為、要予約とさせて頂いております。ご来店の際は先ずは下記よりご予約下さい。
来店予約をする
西区エリアで横浜コネクトスクエアに似た条件の物件
読込中...
横浜コネクトスクエアと同じ最寄駅の物件
読込中...
| 取扱様態 | 仲介 |
|---|---|
| 取扱会社 | 株式会社 アットオフィス |