ZeST一番町7階の賃貸情報
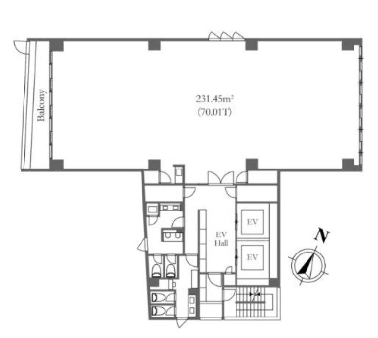
70.01 坪 (231.45m²)
※このサイトに記載がある賃貸条件は、敷金・保証金などの預かり金を除き、別途消費税がかかります。
ZeST一番町の建物概要
設備詳細
| 空調 | 個別空調 |
|---|---|
| トイレ | 男女別トイレ室外 |
| 床仕様 | OA対応床(フリーアクセス) |
| エレベータ | 1 基 |
| 駐車場設備 | - |
| その他 | 新耐震基準 |
ZeST一番町7階の賃貸オフィス・事務所に関するお問い合わせ
ZeST一番町について
ZeST一番町は、2022年に竣工された現代的な賃貸オフィスビルで、千代田区一番町に位置しています。この9階建ての建物は、基準階約70坪を誇り、効率的なオフィスレイアウトを可能にする長方形の形状をしています。明るく清潔感あふれる室内環境が特徴で、各階にバルコニーが設置されており、開放的な雰囲気を提供します。 ビル内設備には、ワンフロアを6分割できる個別空調システムやOAフロア仕様、男女別のトイレ設備が含まれます。セキュリティ面では、非接触ICカードリーダーを用いた機械警備が導入されており、入居企業と従業員の安全を確保しています。また、自然素材を取り入れたエントランスデザインは、訪れる人々に落ち着きと洗練された印象を提供します。 立地に関しては、閑静ながらも生活便利なエリアに位置し、半蔵門駅と麹町駅が徒歩圏内にあります。そのため、都心へのアクセスが容易であり、ビジネスの拠点として非常に魅力的です。周辺にはコンビニエンスストアや郵便局などの生活必需施設が充実しており、日々の業務運営に必要なサポートが手軽に受けられます。 加えて、1階にはラウンジスペースが設けられ、屋上にはテラスがあります。これらの共有スペースは、従業員の交流の場やクライアントとのカジュアルなミーティングスポットとして利用することができ、働く環境に新たな価値をもたらします。 ZeST一番町は、そのモダンな設備、安全なセキュリティシステム、そして利便性の高い立地を兼ね備えており、多様なビジネスニーズに応える理想的なオフィススペースです。新しいビジネスの拠点として、または企業のイメージアップを図りたい企業にとって、最適な選択肢と言えるでしょう。
自分で探すより問い合わせる方が早いことがあります
WEB非公開物件があるから
オーナー様のご希望により「WEBでは非公開」にしている物件があります。 それらはWEBでいくら検索しても見つかりません。 先ずは条件などお知らせ頂けましたら非公開物件含め ピッタリのオフィスをご提案させて頂きます。 無理なお勧めはしておりませんので、お気軽にお問い合わせください。
対面でのご相談も受け付けております
ご来店も歓迎です
オフィス移転は社内・社外ともに非公開に行われることが殆どです。そのためアットオフィスでは、基本的に訪問によるコンサルティングを行っておりますが、ご来店の相談も歓迎です。お一人おひとりに親身にご対応させて頂きたい為、要予約とさせて頂いております。ご来店の際は先ずは下記よりご予約下さい。
番町/麹町/平河町エリアでZeST一番町に似た条件の物件
読込中...
ZeST一番町と同じ最寄駅の物件
読込中...
| 取扱様態 | 仲介 |
|---|---|
| 取扱会社 | 株式会社 アットオフィス |