ウィンド恵比寿ビル3階の賃貸情報
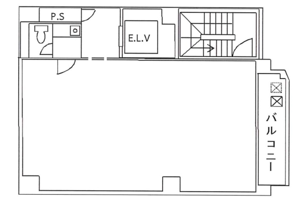
20.56 坪 (67.97m²)
※このサイトに記載がある賃貸条件は、敷金・保証金などの預かり金を除き、別途消費税がかかります。
ウィンド恵比寿ビルの建物概要
設備詳細
| 空調 | 個別空調 |
|---|---|
| トイレ | - |
| 床仕様 | - |
| エレベータ | 1 基 |
| 駐車場設備 | - |
| その他 | 光ファイバー / 機械警備 / オートロック / 24時間利用可 / 新耐震基準 / クリニック |
ウィンド恵比寿ビルについて
ウィンド恵比寿ビルは、東京都渋谷区恵比寿西2丁目に位置する、質の高いオフィススペースを提供する貸事務所ビルです。1988年に竣工したこの耐震基準を満たすオフィスビルは、企業のニーズに応える機能性と快適性を兼ね備えています。以下、その特徴と利点を詳述します。 **立地の利便性:** ウィンド恵比寿ビルは、恵比寿駅および代官山駅から徒歩6分という、アクセスに優れた立地にあります。恵比寿と代官山は、ビジネスとレジャーの両面で魅力的なエリアであり、従業員や顧客にとっても利便性の高い選択と言えるでしょう。また、山手線の線路沿いに面しているため、都内各所への移動も容易です。 **設備と安全性:** ビル内には1台のエレベーターが設置されており、快適な移動をサポートしています。また、機械警備システムの完備により、24時間体制で安全が保たれ、テナント企業は安心して業務を行うことができます。耐震基準に準拠した構造は、自然災害にも強い安心感を提供します。 **室内の特長:** ウィンド恵比寿ビルの貸室は、綺麗な長方形で、レイアウトの自由度が高く、効率的なオフィス空間の設計が可能です。成形の取れた室内は、働く人々のクリエイティビティと生産性を高めるための環境を提供します。広々とした空間は、オープンスペース、個室オフィス、ミーティングエリアなど、多様な業務スタイルに対応します。 **ビジネスの利点:** このビルの立地と機能は、様々な業種の企業にとって魅力的なオプションを提供します。特に、店舗としての使用も可能であるため、小売りやサービス業の企業にとっては、ブランドの露出と顧客のアクセスの向上を図る絶好の機会となります。また、恵比寿と代官山という、流行の最先端を行く地域にオフィスを構えることは、企業イメージの向上にも寄与します。 ウィンド恵比寿ビルは、上質なオフィス環境と、ビジネスの成長をサポートする立地の利便性を兼ね備えた、企業にとって理想的な選択肢です。
自分で探すより問い合わせる方が早いことがあります
WEB非公開物件があるから
オーナー様のご希望により「WEBでは非公開」にしている物件があります。 それらはWEBでいくら検索しても見つかりません。 先ずは条件などお知らせ頂けましたら非公開物件含め ピッタリのオフィスをご提案させて頂きます。 無理なお勧めはしておりませんので、お気軽にお問い合わせください。
対面でのご相談も受け付けております
ご来店も歓迎です
オフィス移転は社内・社外ともに非公開に行われることが殆どです。そのためアットオフィスでは、基本的に訪問によるコンサルティングを行っておりますが、ご来店の相談も歓迎です。お一人おひとりに親身にご対応させて頂きたい為、要予約とさせて頂いております。ご来店の際は先ずは下記よりご予約下さい。
近くのエリアで探してみる
恵比寿/代官山/広尾エリアでウィンド恵比寿ビルに似た条件の物件
読込中...
ウィンド恵比寿ビルと同じ最寄駅の物件
読込中...
| 取扱様態 | 仲介 |
|---|---|
| 取扱会社 | 株式会社 アットオフィス |