外苑ビルの賃料条件
| 階数 | 坪数 | 賃料 + 共益費 | 敷金/礼金敷金 礼金 | 検討 |
|---|---|---|---|---|
| 8階 | 55.58坪 (183.73m²) | 1,556,240円 (坪:28,000 円) | 10ヶ月 1ヶ月10ヶ月/1ヶ月 |
※このサイトに記載がある賃貸条件は、敷金・保証金などの預かり金を除き、別途消費税がかかります。
物件情報
設備詳細
| 空調 | 個別空調 |
|---|---|
| トイレ | 男女別トイレ室内 |
| 床仕様 | OA対応床(フリーアクセス) |
| エレベータ | 1 基 |
| 駐車場設備 | - |
| その他 | 機械警備 / 光ファイバー / 新耐震基準 / オートロック / 居抜き |
外苑ビルの賃貸オフィス・事務所に関するお問い合わせ
外苑ビルについて
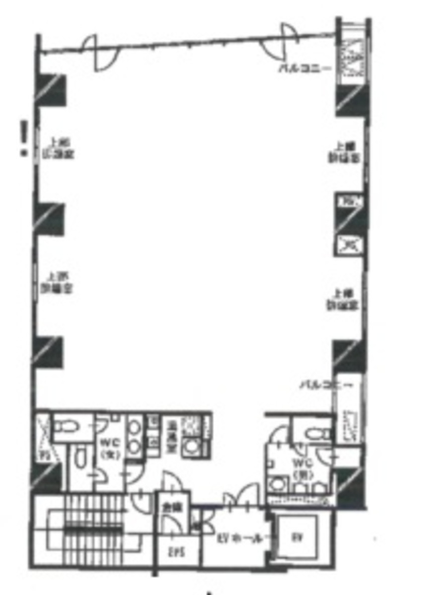
東京メトロ銀座線「外苑前駅」より徒歩わずか1分の距離に位置する「外苑ビル」は、2010年に竣工し、港区南青山という東京の中心部において、ビジネスの拠点として理想的な環境を提供します。この地域で事務所を構えることは、企業のイメージを高めると同時に、アクセスの良さがビジネスチャンスを広げることを意味します。 外苑ビルは、基準階約55坪の賃貸事務所物件で、天井高2700mmの開放的なオフィス空間を提供します。床は高さ100mmのOAフロアで、各階個別空調システム、男女別トイレ、機械警備システムといった、現代のビジネスニーズに応える充実した設備を備えています。1基のエレベーターが設置されており、効率的な移動をサポートします。 立地に関しては、外苑前駅からの近接性のみならず、青山通り沿いという視認性の高い位置にあります。さらに青山一丁目駅や表参道駅も徒歩圏内にあり、複数の路線が利用可能です。これは、従業員やビジネスパートナーにとって、非常に便利な点です。近隣には、郵便局や銀行、飲食店が充実しており、ビジネスの日々の運営に必要なサービスがすぐ手の届くところにあります。 外苑ビルの目の前に広がる青山通りや、歩いてすぐの場所にある神宮外苑といった、都心ながら緑豊かな環境も魅力の一つです。ビジネスの中心地にありながら、自然に触れることができる場所は、従業員の働く環境を向上させ、クリエイティビティの向上にもつながります。 ビルの近隣には、充実したランチスポットや便利なコンビニ、銀行などがあり、日常生活に必要なサービスが充実しています。また、青山エリアとしての洗練されたイメージは、ビルを利用する企業のブランド価値をさらに高めることでしょう。 外苑ビルは、モダンでスタイリッシュなデザインが特徴のビルで、ビジネスの拠点としてだけでなく、企業イメージを高めるための象徴としても最適です。この地域でのビジネス展開を考えている企業にとって、外苑ビルは、その立地、設備、環境とすべてにおいて理想的な選択肢となるでしょう。
外苑ビルのこだわり
自分で探すより問い合わせる方が早いことがあります
WEB非公開物件があるから
オーナー様のご希望により「WEBでは非公開」にしている物件があります。 それらはWEBでいくら検索しても見つかりません。 先ずは条件などお知らせ頂けましたら非公開物件含め ピッタリのオフィスをご提案させて頂きます。 無理なお勧めはしておりませんので、お気軽にお問い合わせください。
対面でのご相談も受け付けております
ご来店も歓迎です
オフィス移転は社内・社外ともに非公開に行われることが殆どです。そのためアットオフィスでは、基本的に訪問によるコンサルティングを行っておりますが、ご来店の相談も歓迎です。お一人おひとりに親身にご対応させて頂きたい為、要予約とさせて頂いております。ご来店の際は先ずは下記よりご予約下さい。
募集終了のテナント区画
| 階数 | 坪数 | 賃料 + 共益費 | 敷金/礼金敷金 礼金 | 検討 |
|---|---|---|---|---|
| 1階 | 21.19坪 (70.04m²) | 募集終了 | - | - |
| 2階 | 62.32坪 (206.02m²) | 募集終了 | - | - |
| 3階 | 55.58坪 (183.74m²) | 募集終了 | - | - |
| 4階 | 55.58坪 (183.74m²) | 募集終了 | - | - |
| 6階 | 55.58坪 (183.74m²) | 募集終了 | - | - |
| 9階 | 55.58坪 (183.75m²) | 募集終了 | - | - |
読込中...
青山エリアで外苑ビルに似た条件の物件
読込中...
| 取扱様態 | 仲介 |
|---|---|
| 取扱会社 | 株式会社 アットオフィス |