南青山サマリヤビル1階の賃貸情報
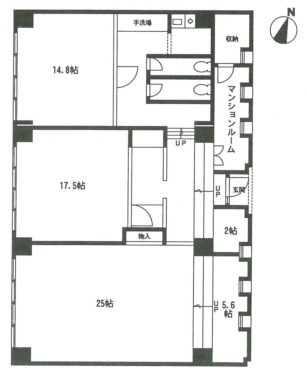
53.31 坪 (176.26m²)
※このサイトに記載がある賃貸条件は、敷金・保証金などの預かり金を除き、別途消費税がかかります。
南青山サマリヤビルの建物概要
設備詳細
| 空調 | - |
|---|---|
| トイレ | - |
| 床仕様 | - |
| エレベータ | 1 基 |
| 駐車場設備 | - |
| その他 | SOHO/マンション / 1階の物件 |
南青山サマリヤビル1階の賃貸オフィス・事務所に関するお問い合わせ
南青山サマリヤビルについて
南青山サマリヤビルは、東京都港区南青山2丁目に位置する大型オフィスビルです。このビルはSOHOや事務所利用を目的としたテナントに最適な設備とサービスを提供しています。基準階面積は288.554坪と広大で、多様なビジネスニーズに対応できる柔軟性を備えています。エレベーターは1機設置されており、スムーズな移動をサポートします。 立地に関しては、南青山は東京の中で最も洗練されたエリアの一つとして知られています。ファッション、アート、グルメといった多彩な文化が融合したこの地域は、クリエイティブなビジネスを行う企業にとって刺激的な環境を提供します。また、周辺には青山通りや表参道があり、ビジネスアクセスの良さも魅力の一つです。交通の利便性も高く、都心へのアクセスが容易であるため、ビジネスの拠点として理想的な立地条件を備えています。 設備面では、南青山サマリヤビルは現代的なビジネスニーズに対応した高品質なオフィススペースを提供しています。高速インターネットの完備はもちろんのこと、セキュリティシステムも充実しており、テナントの安全とセキュリティを確保しています。また、広々としたオフィススペースは、自然光が豊富に入る設計となっており、快適な労働環境を提供します。 南青山サマリヤビルの独自の魅力は、その立地と設備の良さに加えて、SOHOや事務所利用に特化したサービスを提供している点にあります。このビルは、スタートアップ企業から既に確立された企業まで、幅広いビジネスステージの企業に適した空間を提供しています。創造性と効率性を重視する企業にとって、南青山サマリヤビルはビジネスの成功を加速させる理想的な場所と言えるでしょう。 総じて、南青山サマリヤビルは、立地、設備、サービスのすべてにおいて高いレベルを持つオフィスビルです。この地域でビジネスを展開したい企業にとって、見逃すことのできない選択肢の一つと言えるでしょう。
南青山サマリヤビルのこだわり
自分で探すより問い合わせる方が早いことがあります
WEB非公開物件があるから
オーナー様のご希望により「WEBでは非公開」にしている物件があります。 それらはWEBでいくら検索しても見つかりません。 先ずは条件などお知らせ頂けましたら非公開物件含め ピッタリのオフィスをご提案させて頂きます。 無理なお勧めはしておりませんので、お気軽にお問い合わせください。
対面でのご相談も受け付けております
ご来店も歓迎です
オフィス移転は社内・社外ともに非公開に行われることが殆どです。そのためアットオフィスでは、基本的に訪問によるコンサルティングを行っておりますが、ご来店の相談も歓迎です。お一人おひとりに親身にご対応させて頂きたい為、要予約とさせて頂いております。ご来店の際は先ずは下記よりご予約下さい。
青山エリアで南青山サマリヤビルに似た条件の物件
読込中...
南青山サマリヤビルと同じ最寄駅の物件
読込中...
| 取扱様態 | 仲介 |
|---|---|
| 取扱会社 | 株式会社 アットオフィス |