コルティス恵比寿1階の賃貸情報
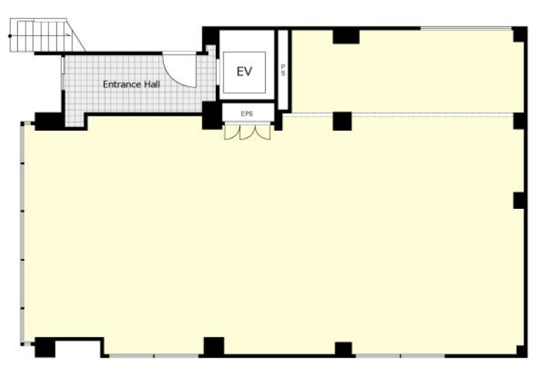
53.04 坪 (175.33m²)
※このサイトに記載がある賃貸条件は、敷金・保証金などの預かり金を除き、別途消費税がかかります。
コルティス恵比寿の建物概要
設備詳細
| 空調 | - |
|---|---|
| トイレ | - |
| 床仕様 | - |
| エレベータ | 1 基 |
| 駐車場設備 | - |
| その他 | クリニック / 天井高3m以上 / スケルトン / 1階の物件 |
部屋の雰囲気
コルティス恵比寿について
コルティス恵比寿は、2025年3月に完成予定のビルで、恵比寿駅からわずか徒歩4分という好立地に位置しています。そのスタイリッシュな外観は、周辺の街並みにも映えるデザインで、訪れる人々に洗練された印象を与えます。 このビルは、新耐震基準に基づいて設計されており、安全性に優れています。安心して、長期的な利用を見据えることができます。各フロアは1テナント限定となっており、他の入居者を気にすることなく、自由にスペースを活用することが可能です。フロア全体を専有できるため、レイアウトの自由度が高く、業務の特性に合わせたオフィス作りが実現します。 さらに、コンパクトながらも機能的な設計となっているため、効率的な空間利用が可能です。都会の中心に位置しながらも、落ち着いた環境で仕事に集中できるのが魅力です。この機会に、コルティス恵比寿で新しいワークスペースの可能性を探ってみてはいかがでしょうか。
その他の区画
| 階数 | 坪数 | 賃料 + 共益費 | 敷金/礼金敷金 礼金 | 検討 |
|---|---|---|---|---|
| 2階 | 54.88坪 (181.41m²) | 1,975,680円 (坪:36,000 円) | 12ヶ月 1ヶ月12ヶ月/1ヶ月 |
自分で探すより問い合わせる方が早いことがあります
WEB非公開物件があるから
オーナー様のご希望により「WEBでは非公開」にしている物件があります。 それらはWEBでいくら検索しても見つかりません。 先ずは条件などお知らせ頂けましたら非公開物件含め ピッタリのオフィスをご提案させて頂きます。 無理なお勧めはしておりませんので、お気軽にお問い合わせください。
対面でのご相談も受け付けております
ご来店も歓迎です
オフィス移転は社内・社外ともに非公開に行われることが殆どです。そのためアットオフィスでは、基本的に訪問によるコンサルティングを行っておりますが、ご来店の相談も歓迎です。お一人おひとりに親身にご対応させて頂きたい為、要予約とさせて頂いております。ご来店の際は先ずは下記よりご予約下さい。
近くのエリアで探してみる
恵比寿/代官山/広尾エリアでコルティス恵比寿に似た条件の物件
読込中...
コルティス恵比寿と同じ最寄駅の物件
読込中...
| 取扱様態 | 仲介 |
|---|---|
| 取扱会社 | 株式会社 アットオフィス |