フェスタ西荻窪1-2階の賃貸情報
74.07 坪 (244.86m²)
※このサイトに記載がある賃貸条件は、敷金・保証金などの預かり金を除き、別途消費税がかかります。
フェスタ西荻窪の建物概要
設備詳細
| 空調 | - |
|---|---|
| トイレ | - |
| 床仕様 | - |
| エレベータ | 1 基 |
| 駐車場設備 | - |
| その他 | 24時間利用可 / 新耐震基準 / クリニック / 店舗可(飲食可) / 1階の物件 |
フェスタ西荻窪について
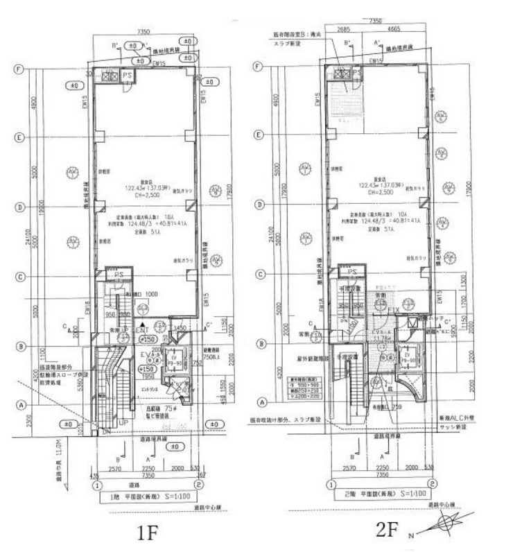
フェスタ西荻窪は、西荻窪の活気あふれるエリアに位置する賃貸店舗向けのビルです。1991年9月に竣工されたこのビルは、新耐震基準に準拠しており、安全性を重視して設計されています。鉄骨鉄筋コンクリート造(SRC)の構造を採用し、地上7階・地下1階建てのしっかりとした建物です。エレベーターも1基設置されており、快適なアクセスが可能です。 このビルは、店舗用途に最適化された仕様となっており、多様な業種に対応可能です。周辺の商業施設や交通アクセスの良さも相まって、集客力の高い立地であることが魅力です。また、視認性の高い外観と、フレキシブルなレイアウトが可能な内部空間が、テナント様のビジネス展開を力強くサポートします。地域に密着したビジネスをお考えの方には、ぜひ一度ご内見いただき、フェスタ西荻窪が持つ魅力を実感してください。
自分で探すより問い合わせる方が早いことがあります
WEB非公開物件があるから
オーナー様のご希望により「WEBでは非公開」にしている物件があります。 それらはWEBでいくら検索しても見つかりません。 先ずは条件などお知らせ頂けましたら非公開物件含め ピッタリのオフィスをご提案させて頂きます。 無理なお勧めはしておりませんので、お気軽にお問い合わせください。
対面でのご相談も受け付けております
ご来店も歓迎です
オフィス移転は社内・社外ともに非公開に行われることが殆どです。そのためアットオフィスでは、基本的に訪問によるコンサルティングを行っておりますが、ご来店の相談も歓迎です。お一人おひとりに親身にご対応させて頂きたい為、要予約とさせて頂いております。ご来店の際は先ずは下記よりご予約下さい。
杉並区エリアでフェスタ西荻窪に似た条件の物件
読込中...
フェスタ西荻窪と同じ最寄駅の物件
読込中...
| 取扱様態 | 仲介 |
|---|---|
| 取扱会社 | 株式会社 アットオフィス |