※このサイトに記載がある賃貸条件は、敷金・保証金などの預かり金を除き、別途消費税がかかります。
物件情報
設備詳細
| 空調 | - |
|---|---|
| トイレ | - |
| 床仕様 | - |
| エレベータ | 3 基 |
| 駐車場設備 | 空有 |
| その他 | 機械警備 / 24時間利用可 / 大型ビル / 光ファイバー / 新耐震基準 |
白雉子ビルの賃貸オフィス・事務所に関するお問い合わせ
白雉子ビルについて
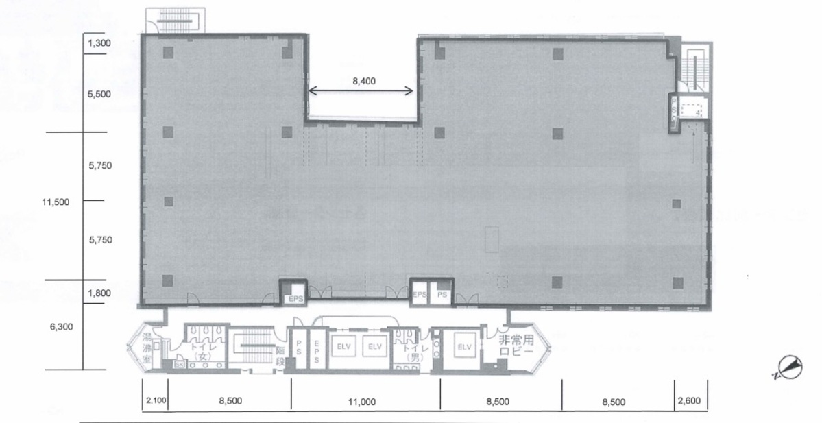
品川区東五反田に位置する白雉子ビルは、そのアクセスの良さ、設備の充実さ、そして歴史と現代が融合した独特の魅力を持つ賃貸オフィスビルです。五反田駅から徒歩5分という立地は、ビジネスの機動性を高める上で非常に重要です。さらに、JR山手線や都営地下鉄浅草線をはじめとする複数の路線の利用が可能であり、都心へのアクセスも容易です。このように、白雉子ビルは極めて利便性の高い立地にあります。 白雉子ビルの基準階面積は約220坪と、大規模なオフィススペースを提供しています。これにより、企業の様々なニーズに対応可能です。また、1995年に新耐震基準で竣工され、全面リニューアル済みであるため、安全性と快適性を兼ね備えています。オフィス内は個別空調、OAフロア仕様となっており、2500mmの天井高が確保されています。これらの設備は、働く従業員の生産性向上に寄与します。 また、白雉子ビルのセキュリティシステムは機械式警備を採用しており、24時間利用可能な環境で、入居企業に安全なワークスペースを提供します。敷地内には機械式の月極駐車場も完備されており、ビジネス用途に加えて来客用の駐車スペースとしても利用可能です。 白雉子ビルの特別な魅力として、1階部分に雉子神社がある点が挙げられます。これはビジネスの場としてだけでなく、歴史と伝統を感じさせる空間を提供し、オフィスビルとしてのユニークなアイデンティティを形成しています。外装に施された細工や、エントランスホールのデザインは格調高い雰囲気を演出し、入居企業のブランドイメージ向上にも寄与します。 総じて、白雉子ビルは、その立地、設備、安全性、そして独自の文化的価値を有することで、ビジネスの拠点としてのみならず、企業の価値を高める場所としても最適です。このビルが提供する環境は、企業と従業員にとって、生産性と満足度を高める要素を多分に含んでいます。
自分で探すより問い合わせる方が早いことがあります
WEB非公開物件があるから
オーナー様のご希望により「WEBでは非公開」にしている物件があります。 それらはWEBでいくら検索しても見つかりません。 先ずは条件などお知らせ頂けましたら非公開物件含め ピッタリのオフィスをご提案させて頂きます。 無理なお勧めはしておりませんので、お気軽にお問い合わせください。
対面でのご相談も受け付けております
ご来店も歓迎です
オフィス移転は社内・社外ともに非公開に行われることが殆どです。そのためアットオフィスでは、基本的に訪問によるコンサルティングを行っておりますが、ご来店の相談も歓迎です。お一人おひとりに親身にご対応させて頂きたい為、要予約とさせて頂いております。ご来店の際は先ずは下記よりご予約下さい。
募集終了のテナント区画
| 階数 | 坪数 | 賃料 + 共益費 | 敷金/礼金敷金 礼金 | 検討 |
|---|---|---|---|---|
| 4階 | 221.08坪 (730.84m²) | 募集終了 | - | - |
| 5階 | 85.74坪 (283.43m²) | 募集終了 | - | - |
読込中...
五反田エリアで白雉子ビルに似た条件の物件
読込中...
| 取扱様態 | 仲介 |
|---|---|
| 取扱会社 | 株式会社 アットオフィス |