IS弓町ビルの賃料条件
| 階数 | 坪数 | 賃料 + 共益費 | 敷金/礼金敷金 礼金 | 検討 |
|---|---|---|---|---|
| 6階 | 57.24坪 (189.24m²) | 858,600円 (坪:15,000 円) | 6ヶ月 無6ヶ月/無 | |
| 9階 | 57.24坪 (189.24m²) | 858,600円 (坪:15,000 円) | 6ヶ月 無6ヶ月/無 |
※このサイトに記載がある賃貸条件は、敷金・保証金などの預かり金を除き、別途消費税がかかります。
物件情報
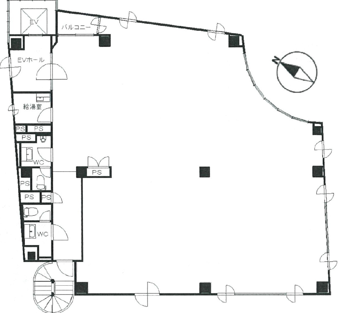
設備詳細
| 空調 | 個別空調 |
|---|---|
| トイレ | 男女別トイレ室内 |
| 床仕様 | OA対応床(フリーアクセス) |
| エレベータ | 1 基 |
| 駐車場設備 | 空有 / 機械式駐車場 |
| その他 | 24時間利用可 / 光ファイバー / 新耐震基準 |
IS弓町ビルの賃貸オフィス・事務所に関するお問い合わせ
IS弓町ビルについて
文京区本郷に位置するIS弓町ビルは、1991年に竣工された地上10階建てのオフィスビルです。豊かな歴史と文化が息づくこの地区にふさわしい、洗練されたデザインと機能性を兼ね備えた物件として注目されています。特に、春日通りに面したビルの立地は、企業のブランドイメージ向上に寄与し、ビジネスの可能性を大きく広げる要素となっています。 このビルのエントランスは高級感あふれる御影石を使用しており、訪れるクライアントを印象づける第一歩となるでしょう。また、採光に優れたオフィス空間は約60坪の広さで、明るく開放的な作業環境を提供します。眺望の良さも特筆すべき点で、オフィスからの景色は日々の業務に新たな活力をもたらします。 ビル内の設備は、男女別トイレや最新の機械警備システムといった基本的なものから、1基のエレベーターでスムーズな移動をサポートする等、入居企業のニーズに応える充実した内容となっています。これらの設備は、日々の業務効率を高めるだけでなく、安全で快適なワークスペースを保証します。 アクセスの面でも優れており、最寄りの本郷三丁目駅からは徒歩で容易にアクセス可能です。また、春日駅や後楽園駅も徒歩圏内にあり、都内各地への移動が便利です。このように、IS弓町ビルは交通の利便性と快適なオフィス環境を兼ね備え、多岐にわたるビジネスニーズに応える理想的なオフィススペースと言えるでしょう。 IS弓町ビルは、その立地、設備、デザインの三位一体が揃った、文京区本郷でのビジネス拠点として最適な選択肢です。企業の成長と発展を支えるためのプラットフォームとして、また、卓越したビジネス環境を求めるすべての企業にとって、このビルは間違いなく魅力的なオプションとなるでしょう。
自分で探すより問い合わせる方が早いことがあります
WEB非公開物件があるから
オーナー様のご希望により「WEBでは非公開」にしている物件があります。 それらはWEBでいくら検索しても見つかりません。 先ずは条件などお知らせ頂けましたら非公開物件含め ピッタリのオフィスをご提案させて頂きます。 無理なお勧めはしておりませんので、お気軽にお問い合わせください。
対面でのご相談も受け付けております
ご来店も歓迎です
オフィス移転は社内・社外ともに非公開に行われることが殆どです。そのためアットオフィスでは、基本的に訪問によるコンサルティングを行っておりますが、ご来店の相談も歓迎です。お一人おひとりに親身にご対応させて頂きたい為、要予約とさせて頂いております。ご来店の際は先ずは下記よりご予約下さい。
募集終了のテナント区画
| 階数 | 坪数 | 賃料 + 共益費 | 敷金/礼金敷金 礼金 | 検討 |
|---|---|---|---|---|
| 1階 | 37.1坪 (122.64m²) | 募集終了 | - | - |
| 2階 | 57.24坪 (189.22m²) | 募集終了 | - | - |
| 3階 | 57.24坪 (189.22m²) | 募集終了 | - | - |
| 4階 | 57.24坪 (189.22m²) | 募集終了 | - | - |
| 5階 | 57.24坪 (189.24m²) | 募集終了 | - | - |
| 7階 | 57.24坪 (189.24m²) | 募集終了 | - | - |
| 8階 | 57.24坪 (189.24m²) | 募集終了 | - | - |
読込中...
湯島/本郷/後楽園エリアでIS弓町ビルに似た条件の物件
読込中...
| 取扱様態 | 仲介 |
|---|---|
| 取扱会社 | 株式会社 アットオフィス |