※このサイトに記載がある賃貸条件は、敷金・保証金などの預かり金を除き、別途消費税がかかります。
物件情報
設備詳細
| 空調 | - |
|---|---|
| トイレ | - |
| 床仕様 | - |
| エレベータ | 2 基 |
| 駐車場設備 | 空有 |
| その他 | 機械警備 / 24時間利用可 / 光ファイバー / 新耐震基準 |
NSKビルの賃貸オフィス・事務所に関するお問い合わせ
NSKビルについて
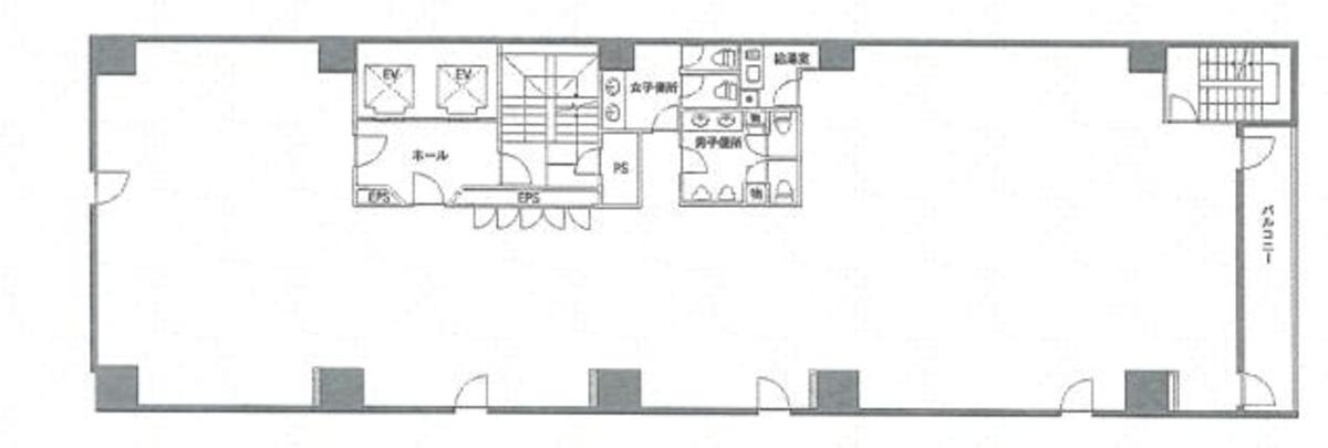
東京の心臓部、活気に満ちた台東区に位置するNSKビルは、1994年に新耐震基準に適合して竣工した10階建てのオフィスビルです。この物件は、その耐震性能だけでなく、様々な特徴が組み合わさって、ビジネスの場として理想的な環境を提供しています。 まず、基準階約86坪の広々としたオフィススペースは、個別空調システムを完備しており、各テナントが望む温度設定を自由に行える柔軟性を提供します。天井高2500mmという開放感のある設計は、働く人々の創造性と生産性を高めると同時に、快適な労働環境を実現します。 セキュリティ面では、24時間機械警備システムにより、テナントとその財産の安全を徹底的に保護。また、ビル内に設置された2機のエレベーターは、スムーズな移動を保証し、ビジネスの効率性を向上させます。 立地においても、NSKビルは羨望の地に位置しています。昭和通り沿いに立地し、周囲には飲食店や他のオフィスビルが立ち並び、日常のビジネスニーズに応える豊富な選択肢を提供します。最寄り駅の仲御徒町駅は徒歩5分、さらに上野広小路駅、秋葉原駅など複数の駅が徒歩圏内にあり、都内各地へのアクセスの良さも大きな魅力です。 1階にはセブンイレブンやまいばすけっと、台東三郵便局などが近くにあり、日々の業務に必要なさまざまなサービスを手軽に利用できる点も、このオフィスビルの大きな利点となっています。 NSKビルは、その耐震性、使い勝手の良さ、セキュリティ、抜群の立地といった多面的な特性を兼ね備え、どのようなビジネスにも対応できる柔軟性と安心感を提供しています。ビルのシンプルで洗練された外観は、企業イメージを高めることにも一役買っています。これら全ての要素が組み合わさり、NSKビルはただのオフィススペースを超え、ビジネスの成功を後押しする舞台となっています。この魅力的な物件で、新たなビジネスの章を開始しませんか?
NSKビルのこだわり
自分で探すより問い合わせる方が早いことがあります
WEB非公開物件があるから
オーナー様のご希望により「WEBでは非公開」にしている物件があります。 それらはWEBでいくら検索しても見つかりません。 先ずは条件などお知らせ頂けましたら非公開物件含め ピッタリのオフィスをご提案させて頂きます。 無理なお勧めはしておりませんので、お気軽にお問い合わせください。
対面でのご相談も受け付けております
ご来店も歓迎です
オフィス移転は社内・社外ともに非公開に行われることが殆どです。そのためアットオフィスでは、基本的に訪問によるコンサルティングを行っておりますが、ご来店の相談も歓迎です。お一人おひとりに親身にご対応させて頂きたい為、要予約とさせて頂いております。ご来店の際は先ずは下記よりご予約下さい。
募集終了のテナント区画
| 階数 | 坪数 | 賃料 + 共益費 | 敷金/礼金敷金 礼金 | 検討 |
|---|---|---|---|---|
| 1階 | 44.67坪 (147.67m²) | 募集終了 | - | - |
| 2階 | 86.62坪 (286.35m²) | 募集終了 | - | - |
| 3階 | 86.62坪 (286.35m²) | 募集終了 | - | - |
| 4階 | 86.62坪 (286.35m²) | 募集終了 | - | - |
| 5階 | 86.62坪 (286.35m²) | 募集終了 | - | - |
| 6階 | 86.62坪 (286.35m²) | 募集終了 | - | - |
| 7階 | 86.62坪 (286.35m²) | 募集終了 | - | - |
| 8階 | 86.62坪 (286.35m²) | 募集終了 | - | - |
| 9階 | 86.62坪 (286.35m²) | 募集終了 | - | - |
| 10階 | 31.21坪 (103.17m²) | 募集終了 | - | - |
| 10階 | 46坪 (152.07m²) | 募集終了 | - | - |
読込中...
上野/台東/東上野エリアでNSKビルに似た条件の物件
読込中...
| 取扱様態 | 仲介 |
|---|---|
| 取扱会社 | 株式会社 アットオフィス |