※このサイトに記載がある賃貸条件は、敷金・保証金などの預かり金を除き、別途消費税がかかります。
物件情報
設備詳細
| 空調 | - |
|---|---|
| トイレ | - |
| 床仕様 | - |
| エレベータ | 1 基 |
| 駐車場設備 | - |
| その他 | 機械警備 / 24時間利用可 / 新耐震基準 |
巴町アネックス2号館の賃貸オフィス・事務所に関するお問い合わせ
巴町アネックス2号館について
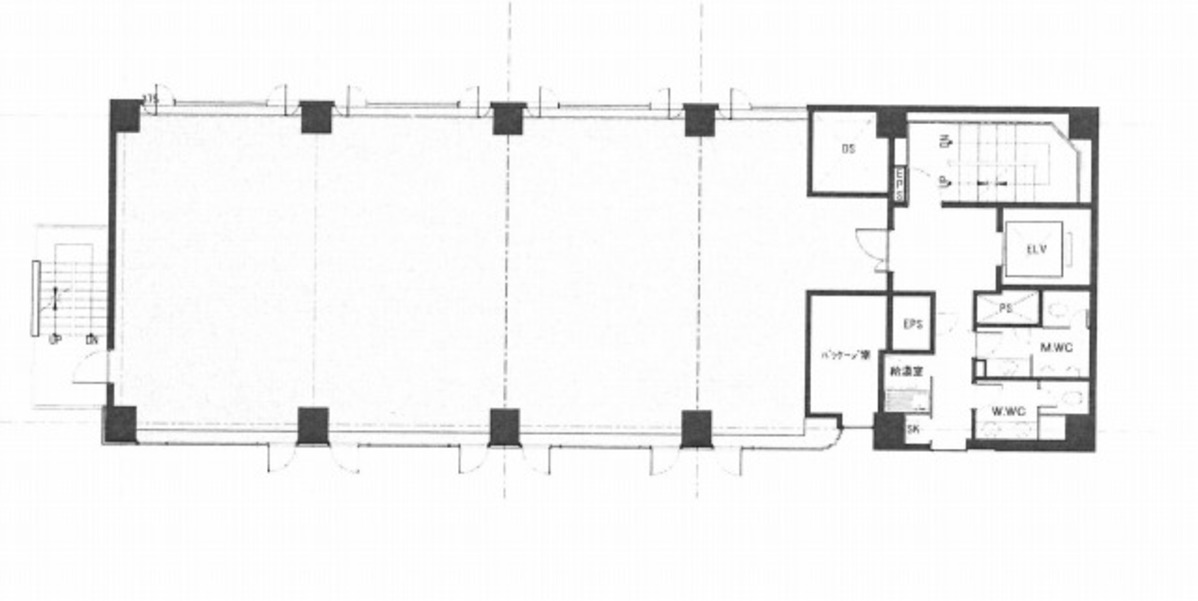
巴町アネックス2号館は、東京都港区虎ノ門3丁目のビジネスエリアに位置する賃貸オフィスビルです。この地域は国際ビジネスの中心地として知られ、日本の文化とビジネスの交差点となっています。そのため、国内外から多くのビジネスパーソンが集まることから、オフィス立地として非常に魅力的です。 1988年に竣工した巴町アネックス2号館は、耐震性に優れた鉄骨鉄筋コンクリート造りで、安心して業務を行える環境が整っています。ビルは地下鉄日比谷線「神谷町」駅から徒歩5分、銀座線「虎ノ門」駅からも徒歩5分という、2つの駅からのアクセスの良さがビジネスにおける大きな利点です。 このビルの特徴は、明るい2面採光の無柱空間であり、正方形のレイアウトしやすい設計がされていることです。これにより、テナントは自社のニーズに合わせたオフィスレイアウトを容易に実現できます。加えて、24時間利用可能で、セキュリティ設備も整っているため、安全性と利便性を兼ね備えています。 地域の相場観として、虎ノ門エリアは高層ビルが立ち並ぶ代表的なビジネス街であり、賃料は他のビジネスエリアと比較しても競争力があります。特に巴町アネックス2号館は、ビル内にカフェが入居しているなど、周辺に飲食店やコンビニ、ショッピングモールが充実しており、ビジネス利便性が高い点も魅力の一つです。 また、ビルの裏手には愛宕神社があり、ビジネスの成功を願う場所としても知られています。このような文化的背景も含めて、巴町アネックス2号館はビジネスの拠点としてだけでなく、日本の文化に触れる機会も提供しています。 総じて、巴町アネックス2号館は、優れた立地、安全性、利便性を兼ね備え、ビジネスの成長を支える理想的なオフィスビルです。ここでのオフィス運営は、企業にとって大きな価値をもたらすことでしょう。
巴町アネックス2号館のこだわり
自分で探すより問い合わせる方が早いことがあります
WEB非公開物件があるから
オーナー様のご希望により「WEBでは非公開」にしている物件があります。 それらはWEBでいくら検索しても見つかりません。 先ずは条件などお知らせ頂けましたら非公開物件含め ピッタリのオフィスをご提案させて頂きます。 無理なお勧めはしておりませんので、お気軽にお問い合わせください。
対面でのご相談も受け付けております
ご来店も歓迎です
オフィス移転は社内・社外ともに非公開に行われることが殆どです。そのためアットオフィスでは、基本的に訪問によるコンサルティングを行っておりますが、ご来店の相談も歓迎です。お一人おひとりに親身にご対応させて頂きたい為、要予約とさせて頂いております。ご来店の際は先ずは下記よりご予約下さい。
募集終了のテナント区画
| 階数 | 坪数 | 賃料 + 共益費 | 敷金/礼金敷金 礼金 | 検討 |
|---|---|---|---|---|
| 1階 | 32.6坪 (107.9m²) | 募集終了 | - | - |
| 2階 | 40.9坪 (135.35m²) | 募集終了 | - | - |
| 3階 | 40.9坪 (135.35m²) | 募集終了 | - | - |
| 4階 | 54.3坪 (179.5m²) | 募集終了 | - | - |
| 4階 | 40.9坪 (135.21m²) | 募集終了 | - | - |
| 5階 | 26坪 (85.95m²) | 募集終了 | - | - |
| 5階 | 54.1坪 (178.84m²) | 募集終了 | - | - |
| 6階 | 54.3坪 (179.59m²) | 募集終了 | - | - |
| 7階 | 60.19坪 (198.98m²) | 募集終了 | - | - |
| 8階 | 54.32坪 (179.59m²) | 募集終了 | - | - |
読込中...
近くのエリアで探してみる
新橋/虎ノ門/神谷町エリアで巴町アネックス2号館に似た条件の物件
読込中...
| 取扱様態 | 仲介 |
|---|---|
| 取扱会社 | 株式会社 アットオフィス |