※このサイトに記載がある賃貸条件は、敷金・保証金などの預かり金を除き、別途消費税がかかります。
物件情報
設備詳細
| 空調 | 個別空調 |
|---|---|
| トイレ | - |
| 床仕様 | OA対応床(フリーアクセス) |
| エレベータ | 2 基 |
| 駐車場設備 | 空有 |
| その他 | 大型ビル / 新耐震基準 / 機械警備 / 管理人常駐 / 光ファイバー |
KDX高輪台ビルの賃貸オフィス・事務所に関するお問い合わせ
KDX高輪台ビルについて
KDX高輪台ビル(旧SIA高輪台ビル)は、1985年に竣工し、港区高輪に位置する重厚感あふれるデザインの賃貸オフィスビルです。このオフィスビルは、一階あたり約325坪の広々としたフロアを提供し、各フロアには個別空調が完備されており、テナントのニーズに合わせた快適なオフィス環境を実現します。地上9階建てのこのビルは、2基のエレベーターを備え、24時間利用可能なセキュリティシステムと駐車場を併設しており、ビジネスの効率化と安全性を両立させています。 立地においても、KDX高輪台ビルは抜群のアクセスを誇ります。最寄り駅の高輪台駅からは徒歩わずかで、品川駅からも徒歩圏内という、ビジネスの中心地に位置しています。さらに、桜田通りに面しており、車でのアクセスも非常に便利です。近隣には高輪二郵便局やみずほ銀行高輪台支店などの便利な施設があり、日常のビジネス活動を支えます。 ビルの周辺環境もまた、テナントにとって魅力的な要素です。高台に位置し、周辺に高い建物がないため、明るく開放的な雰囲気が漂います。また、近くにはリンコス高輪店や1階にあるローソン高輪三丁目店など、日々の生活に便利なショッピング施設が充実しています。さらに、明治学院大学が近くにあり、学術的な雰囲気も楽しめます。 ビルの設備面では、エントランスが広々としており、高級感があります。また、建物内は静かで清潔感が溢れ、エントランスロビーのデザインはオシャレです。ビジネスを行う上で大切な安心感を、24時間体制の機械警備システムや管理人の配置によって提供しています。 KDX高輪台ビルは、立地の良さ、機能性、安全性といったビジネスに必要な全てを兼ね備えた賃貸オフィスビルです。ビジネス街品川の近くでありながら、高輪エリアの落ち着いた環境で事業を行いたい企業に最適な選択肢と言えるでしょう。このビルが提供する快適なオフィス環境と利便性の高い立地は、貴社のビジネスをさらに飛躍させる強力なサポートとなることでしょう。
自分で探すより問い合わせる方が早いことがあります
WEB非公開物件があるから
オーナー様のご希望により「WEBでは非公開」にしている物件があります。 それらはWEBでいくら検索しても見つかりません。 先ずは条件などお知らせ頂けましたら非公開物件含め ピッタリのオフィスをご提案させて頂きます。 無理なお勧めはしておりませんので、お気軽にお問い合わせください。
対面でのご相談も受け付けております
ご来店も歓迎です
オフィス移転は社内・社外ともに非公開に行われることが殆どです。そのためアットオフィスでは、基本的に訪問によるコンサルティングを行っておりますが、ご来店の相談も歓迎です。お一人おひとりに親身にご対応させて頂きたい為、要予約とさせて頂いております。ご来店の際は先ずは下記よりご予約下さい。
募集終了のテナント区画
| 階数 | 坪数 | 賃料 + 共益費 | 敷金/礼金敷金 礼金 | 検討 |
|---|---|---|---|---|
| 1階 | 47.1坪 (155.7m²) | 募集終了 | - | - |
| 2階 | 134.45坪 (444.46m²) | 募集終了 | - | - |
| 2階 | 151.25坪 (500m²) | 募集終了 | - | - |
| 4階 | 324坪 (1071.07m²) | 募集終了 | - | - |
| 5階 | 323.88坪 (1070.69m²) | 募集終了 | - | - |
| 5階 | 97坪 (320.66m²) | 募集終了 | - | - |
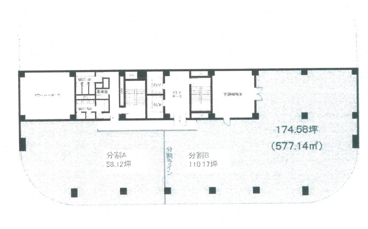
| 6階 | 174.58坪 (577.12m²) | 募集終了 | - | - |
| 6階 | 42.82坪 (141.55m²) | 募集終了 | - | - |
| 6階 | 125.31坪 (414.25m²) | 募集終了 | - | - |
| 7階 | 174.58坪 (577.12m²) | 募集終了 | - | - |
| 8階 | 177.76坪 (587.64m²) | 募集終了 | - | - |
| 9階 | 174.58坪 (577.12m²) | 募集終了 | - | - |
読込中...
近くのエリアで探してみる
港南/高輪/白金台/(品川駅)エリアでKDX高輪台ビルに似た条件の物件
読込中...
| 取扱様態 | 仲介 |
|---|---|
| 取扱会社 | 株式会社 アットオフィス |