南青山渡辺ビルの賃料条件
| 階数 | 坪数 | 賃料 + 共益費 | 敷金/礼金敷金 礼金 | 検討 |
|---|---|---|---|---|
| 2階 | 29.72坪 (98.24m²) | 653,840円 (坪:22,000 円) | 6.6ヶ月 無6.6ヶ月/無 | |
| 3階 | 29.72坪 (98.24m²) | 653,840円 (坪:22,000 円) | 6.6ヶ月 無6.6ヶ月/無 |
※このサイトに記載がある賃貸条件は、敷金・保証金などの預かり金を除き、別途消費税がかかります。
物件情報
設備詳細
| 空調 | 個別空調 |
|---|---|
| トイレ | 男女別トイレ / 男女別トイレ室内 |
| 床仕様 | - |
| エレベータ | 1 基 / エレベーター有 |
| 駐車場設備 | - |
| その他 | 機械警備 / 24時間利用可 / 新耐震基準 / 大通り面する / 光ファイバー |
南青山渡辺ビルの賃貸オフィス・事務所に関するお問い合わせ
南青山渡辺ビルについて
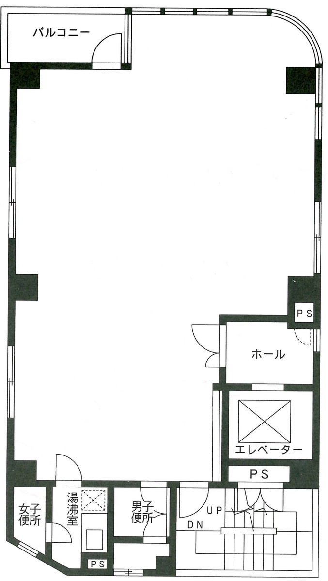
青山の新しいランドマーク、「南青山渡辺ビル」は、現代のビジネスニーズに応えるために設計された貸事務所ビルです。この物件は、1987年に竣工し、新耐震基準に準拠しています。そのため、テナントの皆様は、安全性の高い環境で業務に専念することができます。 南青山渡辺ビルの最大の特徴は、その立地にあります。港区南青山1丁目、外苑東通りに面しており、青山一丁目駅から徒歩わずか2分、乃木坂駅からも徒歩圏内という、非常にアクセスが便利な場所に位置しています。この利便性の高さは、ビジネスを行う上で重要な要素であり、来客時の案内も容易になります。 ビルの設計においては、1フロア1テナントの形式を採用しています。この方式により、各テナントはプライバシーを保ちつつ、自社の個性を活かしたオフィス環境を構築することが可能です。また、男女別のトイレを設けており、女性社員が多い企業にとっても安心の設備を備えています。 ビルの内装は、2019年にリニューアルされ、管理状態も良好です。基準階面積は30坪弱で、貸室内は長方形に近い無柱空間となっており、レイアウトの自由度が高いです。水回りが1ヶ所にまとまっていることも、効率的なオフィス環境構築に貢献します。 さらに、南青山渡辺ビルの周辺環境も魅力の一つです。青葉公園が至近距離にあり、仕事の合間に気分転換が可能です。また、駅からの近さは、周辺に多くのコンビニや飲食店が立ち並び、ランチタイムや仕事帰りの食事にも困らない便利さを提供します。 このように、南青山渡辺ビルは、優れた立地、安全性、機能性を兼ね備えた貸事務所ビルです。ビジネスの展開を考える企業にとって、最適な環境を提供します。青山というブランド価値の高いエリアで、新たなビジネスのステージを築きたい企業には、ぜひお勧めしたい物件です。
自分で探すより問い合わせる方が早いことがあります
WEB非公開物件があるから
オーナー様のご希望により「WEBでは非公開」にしている物件があります。 それらはWEBでいくら検索しても見つかりません。 先ずは条件などお知らせ頂けましたら非公開物件含め ピッタリのオフィスをご提案させて頂きます。 無理なお勧めはしておりませんので、お気軽にお問い合わせください。
対面でのご相談も受け付けております
ご来店も歓迎です
オフィス移転は社内・社外ともに非公開に行われることが殆どです。そのためアットオフィスでは、基本的に訪問によるコンサルティングを行っておりますが、ご来店の相談も歓迎です。お一人おひとりに親身にご対応させて頂きたい為、要予約とさせて頂いております。ご来店の際は先ずは下記よりご予約下さい。
募集終了のテナント区画
| 階数 | 坪数 | 賃料 + 共益費 | 敷金/礼金敷金 礼金 | 検討 |
|---|---|---|---|---|
| 1階 | 18.6坪 (61.52m²) | 募集終了 | - | - |
| 1階 | 18.61坪 (61.52m²) | 募集終了 | - | - |
| 2階 | 28.53坪 (94.31m²) | 募集終了 | - | - |
| 3階 | 28.53坪 (94.32m²) | 募集終了 | - | - |
| 4階 | 28.21坪 (93.25m²) | 募集終了 | - | - |
| 4階 | 28.21坪 (93.25m²) | 募集終了 | - | - |
| 5階 | 28.21坪 (93.26m²) | 募集終了 | - | - |
| 5階 | 28.21坪 (93.25m²) | 募集終了 | - | - |
| 6階 | 28.21坪 (93.25m²) | 募集終了 | - | - |
| 6階 | 28.21坪 (93.25m²) | 募集終了 | - | - |
読込中...
青山エリアで南青山渡辺ビルに似た条件の物件
読込中...
| 取扱様態 | 仲介 |
|---|---|
| 取扱会社 | 株式会社 アットオフィス |