※このサイトに記載がある賃貸条件は、敷金・保証金などの預かり金を除き、別途消費税がかかります。
物件情報
設備詳細
| 空調 | - |
|---|---|
| トイレ | - |
| 床仕様 | - |
| エレベータ | 1 基 |
| 駐車場設備 | - |
| その他 | 機械警備 / 新耐震基準 |
赤坂ヒルサイドビルの賃貸オフィス・事務所に関するお問い合わせ
赤坂ヒルサイドビルについて
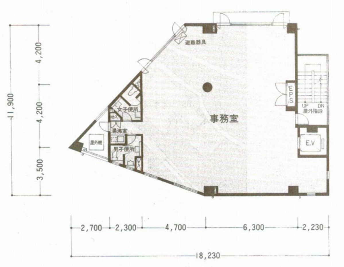
赤坂ヒルサイドビル(港区赤坂)は、都心の喧騒を離れた落ち着いた環境でビジネスを展開したい企業にとって、理想的な選択肢です。このビルは1986年に竣工し、時代を超えて品質と機能性を保ち続ける耐震構造のオフィスビルです。5階建てで基準階は約43坪、一フロア一テナントの特性を持ち、特徴的な台形型の間取りが、創造的なオフィスレイアウトを可能にします。自然光が豊富に入ることで、快適なワーキングスペースを提供します。 赤坂駅から徒歩6分、溜池山王駅からは徒歩5分という好立地に位置しており、3駅以上が利用可能でアクセスの良さは抜群です。周辺には高級タワーマンションやホテルが立ち並び、静かながらも都市の利便性を享受できる環境が整っています。また、ビルの周辺には飲食店が点在し、ビジネスシーンに欠かせないランチミーティングやアフター5の場所を容易に見つけることができます。 設備面では、個別空調システムを搭載し、テナントごとに温度管理が可能です。これにより、季節を問わず快適なオフィス環境を保つことができます。また、安全性にも配慮しており、オートロックシステムを採用することで、セキュリティ面でも安心です。貸室内には男女別トイレを完備し、日々の業務に必要な機能をしっかりと備えています。 赤坂ヒルサイドビルは、その立地、設備、そして独自の魅力により、ビジネスの可能性を広げるための最適な場所です。企業のイメージを高める佇まいと、働く人々の創造力を刺激する環境が、ここにはあります。赤坂での新たなスタートに、このビルをぜひお選びください。
赤坂ヒルサイドビルのこだわり
自分で探すより問い合わせる方が早いことがあります
WEB非公開物件があるから
オーナー様のご希望により「WEBでは非公開」にしている物件があります。 それらはWEBでいくら検索しても見つかりません。 先ずは条件などお知らせ頂けましたら非公開物件含め ピッタリのオフィスをご提案させて頂きます。 無理なお勧めはしておりませんので、お気軽にお問い合わせください。
対面でのご相談も受け付けております
ご来店も歓迎です
オフィス移転は社内・社外ともに非公開に行われることが殆どです。そのためアットオフィスでは、基本的に訪問によるコンサルティングを行っておりますが、ご来店の相談も歓迎です。お一人おひとりに親身にご対応させて頂きたい為、要予約とさせて頂いております。ご来店の際は先ずは下記よりご予約下さい。
募集終了のテナント区画
| 階数 | 坪数 | 賃料 + 共益費 | 敷金/礼金敷金 礼金 | 検討 |
|---|---|---|---|---|
| 1階 | 34.43坪 (113.82m²) | 募集終了 | - | - |
| 2階 | 43坪 (142.15m²) | 募集終了 | - | - |
| 3階 | 41.97坪 (138.75m²) | 募集終了 | - | - |
| 4階 | 41.97坪 (138.74m²) | 募集終了 | - | - |
| 4階 | 35.04坪 (115.86m²) | 募集終了 | - | - |
| 4階 | 17.06坪 (56.4m²) | 募集終了 | - | - |
| 5階 | 23.8坪 (78.71m²) | 募集終了 | - | - |
読込中...
赤坂/六本木/麻布エリアで赤坂ヒルサイドビルに似た条件の物件
読込中...
| 取扱様態 | 仲介 |
|---|---|
| 取扱会社 | 株式会社 アットオフィス |