青山ビル2階の賃貸情報
244.64 坪 (808.73m²)
※このサイトに記載がある賃貸条件は、敷金・保証金などの預かり金を除き、別途消費税がかかります。
青山ビルの建物概要
設備詳細
| 空調 | 個別空調 / セントラル空調 |
|---|---|
| トイレ | 男女別トイレ |
| 床仕様 | OA対応床(フリーアクセス) |
| エレベータ | 11 基 / エレベーター有 |
| 駐車場設備 | 空有 / 敷地内駐車場 |
| その他 | 大型ビル / 機械警備 / 24時間利用可 / 管理人常駐 / 駅直結 |
青山ビル2階の賃貸オフィス・事務所に関するお問い合わせ
青山ビルについて
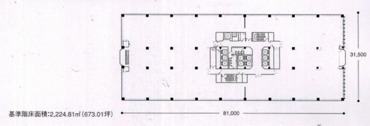
青山ビルは、東京都港区北青山に位置し、1972年に竣工した地上13階建ての賃貸オフィスビルです。基準階約673坪の広大なスペースを誇り、多様なビジネスニーズに応える柔軟な分割区画も提供しています。これは、さまざまな企業が自社の理想とするオフィス環境を実現できる可能性を意味します。 ビルの立地は、アクセスの便利さで特筆に値します。青山一丁目駅と直結しており、外苑前駅も徒歩圏内にあるため、雨に濡れることなくオフィスへのアクセスが可能です。また、外苑東通り沿いに立地しているため、周辺はオフィス街として発展しており、ビジネスの中心地として最適な環境を提供しています。 設備面では、エレベーターが11基設置されており、そのうち1基は貨物用であり、大量の荷物の運搬もスムーズに行えます。また、貸室内の天井高は2,500mm、床は高さ50mmのOAフロアを採用しており、快適なオフィス環境を実現しています。セントラル空調システムや男女別トイレ、光ファイバーの引き込み完了など、ビジネスをスムーズに進めるための基本設備が整っています。 セキュリティ面でも、24時間体制の有人管理により、ビル内の安全と安心を確保しています。さらに、118台を収容できる駐車場を併設しており、来客時の便利さも考慮されています。 青山ビルの周辺環境も魅力的です。明治神宮外苑や複数の公園が近くにあり、オフィス街でありながら緑豊かな環境で働くことができます。さらに、ビル内にはカフェや飲食店、さらにはコンビニエンスストアも入居しており、日常の利便性も高いです。 総じて、青山ビルは優れた立地、充実した設備、便利で快適な周辺環境を兼ね備えた賃貸オフィスビルです。ビジネスの成長を支えるための理想的な環境を探している企業にとって、青山ビルは魅力的な選択肢の一つであると言えるでしょう。
自分で探すより問い合わせる方が早いことがあります
WEB非公開物件があるから
オーナー様のご希望により「WEBでは非公開」にしている物件があります。 それらはWEBでいくら検索しても見つかりません。 先ずは条件などお知らせ頂けましたら非公開物件含め ピッタリのオフィスをご提案させて頂きます。 無理なお勧めはしておりませんので、お気軽にお問い合わせください。
対面でのご相談も受け付けております
ご来店も歓迎です
オフィス移転は社内・社外ともに非公開に行われることが殆どです。そのためアットオフィスでは、基本的に訪問によるコンサルティングを行っておりますが、ご来店の相談も歓迎です。お一人おひとりに親身にご対応させて頂きたい為、要予約とさせて頂いております。ご来店の際は先ずは下記よりご予約下さい。
青山エリアで青山ビルに似た条件の物件
読込中...
青山ビルと同じ最寄駅の物件
読込中...
| 取扱様態 | 仲介 |
|---|---|
| 取扱会社 | 株式会社 アットオフィス |