イーグル浜松町ビル5階の賃貸情報
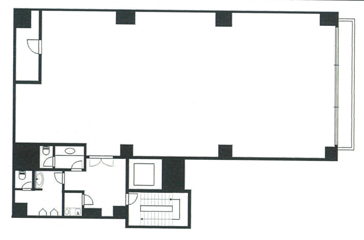
60.24 坪 (199.15m²)
※このサイトに記載がある賃貸条件は、敷金・保証金などの預かり金を除き、別途消費税がかかります。
イーグル浜松町ビルの建物概要
設備詳細
| 空調 | 個別空調 |
|---|---|
| トイレ | - |
| 床仕様 | OA対応床(フリーアクセス) |
| エレベータ | 1 基 |
| 駐車場設備 | - |
| その他 | 機械警備 / 新耐震基準 / クリニック |
イーグル浜松町ビルについて
イーグル浜松町ビルへようこそ!この素晴らしいオフィスビルは、東京都港区浜松町2-7-17に位置し、1987年に竣工された10階建ての魅力的な物件です。基準階約60坪の広々としたオフィススペースを提供し、シンプルな長方形の形状はレイアウトの自由度を極大化させます。天井高2,450mm、個別空調完備、男女別トイレといった快適なオフィス環境を整えております。 このビルの立地は、ビジネスの展開に最適な条件を備えています。最寄り駅である大門駅へは徒歩3分、さらに浜松町駅と芝公園駅も徒歩10分圏内と、複数のアクセスルートが可能です。また、羽田空港へのアクセスに便利な東京モノレールも浜松町駅から利用できます。第一京浜に面しており、視認性も高く、お客様の来訪もスムーズに行えます。 ビルの周辺はオフィス街として栄えており、活気あふれる環境です。飲食店が豊富にあり、ビジネスランチやアフター5の集まりにも困ることはありません。また、徒歩圏内にコンビニエンスストア、銀行、郵便局などがあり、日常の業務に必要なサービスも手軽に利用可能です。 イーグル浜松町ビルは、耐震基準を満たした安全な建物で、11人乗りのエレベーター1基、駐車場7台分、24時間使用可能なセキュリティシステムを完備。光ファイバーの引き込みもあり、高速インターネット環境も保証されています。 ここは、新しいビジネスの拠点として、または既存のビジネスの拡張に最適な場所です。立地の利便性、快適なオフィス環境、安心のセキュリティ――これらすべてが、あなたとあなたのビジネスをサポートします。イーグル浜松町ビルで、新たなビジネスチャンスをぜひ見つけてください。
自分で探すより問い合わせる方が早いことがあります
WEB非公開物件があるから
オーナー様のご希望により「WEBでは非公開」にしている物件があります。 それらはWEBでいくら検索しても見つかりません。 先ずは条件などお知らせ頂けましたら非公開物件含め ピッタリのオフィスをご提案させて頂きます。 無理なお勧めはしておりませんので、お気軽にお問い合わせください。
対面でのご相談も受け付けております
ご来店も歓迎です
オフィス移転は社内・社外ともに非公開に行われることが殆どです。そのためアットオフィスでは、基本的に訪問によるコンサルティングを行っておりますが、ご来店の相談も歓迎です。お一人おひとりに親身にご対応させて頂きたい為、要予約とさせて頂いております。ご来店の際は先ずは下記よりご予約下さい。
近くのエリアで探してみる
浜松町/田町/芝公園エリアでイーグル浜松町ビルに似た条件の物件
読込中...
イーグル浜松町ビルと同じ最寄駅の物件
読込中...
| 取扱様態 | 仲介 |
|---|---|
| 取扱会社 | 株式会社 アットオフィス |