浜松町ウエストビルの賃料条件
| 階数 | 坪数 | 賃料 + 共益費 | 敷金/礼金敷金 礼金 | 検討 |
|---|---|---|---|---|
| 4階 | 12.57坪 (41.576m²) | 235,000円 (坪:18,695 円) | 4ヶ月 無4ヶ月/無 | |
| 6階 | 12.57坪 (41.58m²) | 235,000円 (坪:18,695 円) | 4ヶ月 無4ヶ月/無 |
※このサイトに記載がある賃貸条件は、敷金・保証金などの預かり金を除き、別途消費税がかかります。
物件情報
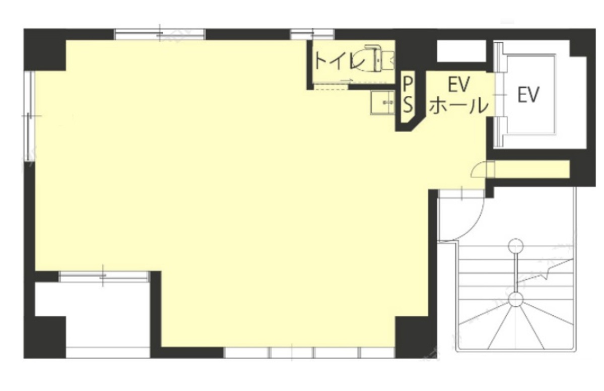
設備詳細
| 空調 | 個別空調 |
|---|---|
| トイレ | 男女共用トイレ・室内 |
| 床仕様 | - |
| エレベータ | 1 基 / エレベーター有 |
| 駐車場設備 | - |
| その他 | 24時間利用可 / 光ファイバー / 新耐震基準 / 機械警備 |
浜松町ウエストビルの賃貸オフィス・事務所に関するお問い合わせ
浜松町ウエストビルについて
浜松町ウエストビルは、1983年に竣工した、東京都港区芝公園に位置する地上9階建ての賃貸オフィスビルです。本ビルは、1フロアあたり約10坪というコンパクトながらも機能的なオフィススペースを提供しており、特に小規模から中規模のビジネスに適しています。また、2014年のリニューアルにより、エントランスや水回り等が現代的なニーズに合わせて改修されたことが特徴です。 立地においては、都営三田線「芝公園駅」から徒歩4分、都営大江戸線・浅草線「大門駅」から徒歩5分、JR線「浜松町駅」から徒歩6分と、5線3駅からのアクセスが可能な好立地にあります。このため、ビジネスの拠点として多方面からの来訪者に対応しやすい環境が整っています。また、周辺には東京タワーや増上寺といったランドマークや、喫茶店、飲食店、コンビニエンスストアが充実しており、ビジネスシーンにおける日常的な利便性が高い点も魅力の一つです。 ビルの設備面では、エレベーターは1基(6人乗り)を備え、24時間365日の使用が可能です。また、セキュリティ面では機械警備を導入し、テナントの安全を確保しています。オフィス内はリニューアル済みで、各フロアには光ファイバーの引込が完了しており、高速インターネット環境も整備されています。特に、7階から9階にかけてのメゾネットタイプのオフィスは、バルコニー付きで眺望が良好であり、クリエイティブな業務に従事する企業にとっては、働きやすい環境と言えるでしょう。 浜松町ウエストビルは、その立地の利便性、機能的な設備、そして豊かな周辺環境を兼ね備えた賃貸オフィスビルです。ビジネスの各種ニーズに対応し得るこのビルは、小規模から中規模の企業にとって、非常に魅力的な選択肢と言えます。ビジネスの新たな拠点として、または拡大を見込む企業の新しいスタート地点として、浜松町ウエストビルをぜひご検討ください。
自分で探すより問い合わせる方が早いことがあります
WEB非公開物件があるから
オーナー様のご希望により「WEBでは非公開」にしている物件があります。 それらはWEBでいくら検索しても見つかりません。 先ずは条件などお知らせ頂けましたら非公開物件含め ピッタリのオフィスをご提案させて頂きます。 無理なお勧めはしておりませんので、お気軽にお問い合わせください。
対面でのご相談も受け付けております
ご来店も歓迎です
オフィス移転は社内・社外ともに非公開に行われることが殆どです。そのためアットオフィスでは、基本的に訪問によるコンサルティングを行っておりますが、ご来店の相談も歓迎です。お一人おひとりに親身にご対応させて頂きたい為、要予約とさせて頂いております。ご来店の際は先ずは下記よりご予約下さい。
募集終了のテナント区画
| 階数 | 坪数 | 賃料 + 共益費 | 敷金/礼金敷金 礼金 | 検討 |
|---|---|---|---|---|
| 2階 | 12.57坪 (41.58m²) | 募集終了 | - | - |
| 3階 | 12.57坪 (41.58m²) | 募集終了 | - | - |
| 5階 | 12.57坪 (41.58m²) | 募集終了 | - | - |
| 7-9階 | 30.7坪 (101.512m²) | 募集終了 | - | - |
読込中...
近くのエリアで探してみる
浜松町/田町/芝公園エリアで浜松町ウエストビルに似た条件の物件
読込中...
| 取扱様態 | 仲介 |
|---|---|
| 取扱会社 | 株式会社 アットオフィス |