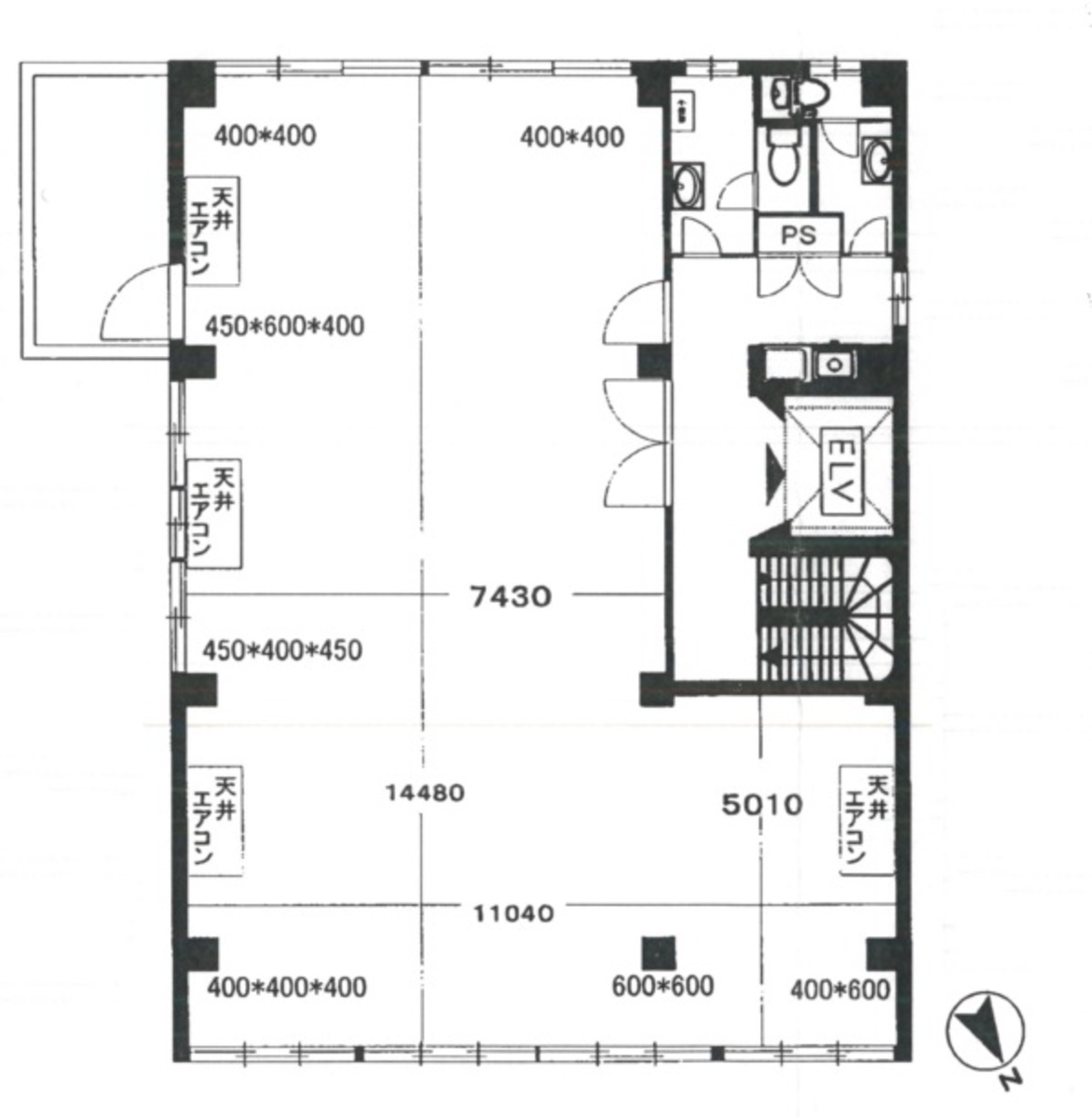
第2秋月ビル2階の賃貸情報
39.82 坪 (131.63m²)
※このサイトに記載がある賃貸条件は、敷金・保証金などの預かり金を除き、別途消費税がかかります。
第2秋月ビルの建物概要
設備詳細
| 空調 | 個別空調 |
|---|---|
| トイレ | - |
| 床仕様 | - |
| エレベータ | 1 基 |
| 駐車場設備 | 空有 |
| その他 | オートロック |
第2秋月ビル2階の賃貸オフィス・事務所に関するお問い合わせ
第2秋月ビルについて
東京のビジネスの中心、港区北青山に位置する第二秋月ビルは、そのモダンで機能的なデザインと、ビジネスに最適化された設備で注目を集めています。地上6階建てのこのビルは、シンプルながらも洗練された外観が特徴で、基準階は約40坪の広さを誇ります。L字型のレイアウトは、効率的なオフィス空間の利用を可能にし、一部のフロアにはバルコニーも設けられています。 エントランスに足を踏み入れると、鏡で装飾された壁面とフラワーアレンジメントが訪れる人を温かく迎え入れます。清潔感溢れるロビーは、第二秋月ビルが大切にしている「快適なビジネス空間」を象徴しています。また、セキュリティ面では日勤の管理人に加え、夜間や休日はオートロックシステムが稼働し、入居企業と従業員の安全を守っています。 立地においても、第二秋月ビルは群を抜いており、表参道駅から徒歩わずか1分の距離にあります。3路線が交差するこの駅は、東京都内へのアクセスが非常に便利で、ビジネスの機動性を高めます。周辺にはオシャレなカフェやレストラン、コンビニエンスストアが豊富にあり、ビジネスだけではなく日常生活の利便性も充実しています。斜向いにある美味しいパン屋をはじめ、ファッションブランドや商業ビルが立ち並ぶ、賑やかで活気ある環境が広がっています。 ビル内にはエレベーターが1基設置されており、快適な移動をサポートします。また、駐車場も完備されているため、車でのアクセスも容易です。ビルの詳細な空き状況に関しては、直接お問い合わせください。 第二秋月ビルは、モダンなデザイン、優れたセキュリティシステム、そして抜群の立地条件を兼ね備え、多様なビジネスニーズに応える理想的なオフィス空間を提供しています。港区北青山という東京の中心部において、ビジネスとライフスタイルの両方を豊かにするこのビルは、まさに現代ビジネスパーソンのための完璧な選択肢と言えるでしょう。
第2秋月ビルのこだわり
自分で探すより問い合わせる方が早いことがあります
WEB非公開物件があるから
オーナー様のご希望により「WEBでは非公開」にしている物件があります。 それらはWEBでいくら検索しても見つかりません。 先ずは条件などお知らせ頂けましたら非公開物件含め ピッタリのオフィスをご提案させて頂きます。 無理なお勧めはしておりませんので、お気軽にお問い合わせください。
対面でのご相談も受け付けております
ご来店も歓迎です
オフィス移転は社内・社外ともに非公開に行われることが殆どです。そのためアットオフィスでは、基本的に訪問によるコンサルティングを行っておりますが、ご来店の相談も歓迎です。お一人おひとりに親身にご対応させて頂きたい為、要予約とさせて頂いております。ご来店の際は先ずは下記よりご予約下さい。
青山エリアで第2秋月ビルに似た条件の物件
読込中...
第2秋月ビルと同じ最寄駅の物件
読込中...
| 取扱様態 | 仲介 |
|---|---|
| 取扱会社 | 株式会社 アットオフィス |