※このサイトに記載がある賃貸条件は、敷金・保証金などの預かり金を除き、別途消費税がかかります。
物件情報
設備詳細
| 空調 | 個別空調 |
|---|---|
| トイレ | 男女別トイレ室内 |
| 床仕様 | OA対応床(フリーアクセス) |
| エレベータ | 1 基 |
| 駐車場設備 | 空無 / 平置き駐車場 |
| その他 | 光ファイバー / 新耐震基準 |
黒田ビルの賃貸オフィス・事務所に関するお問い合わせ
黒田ビルについて
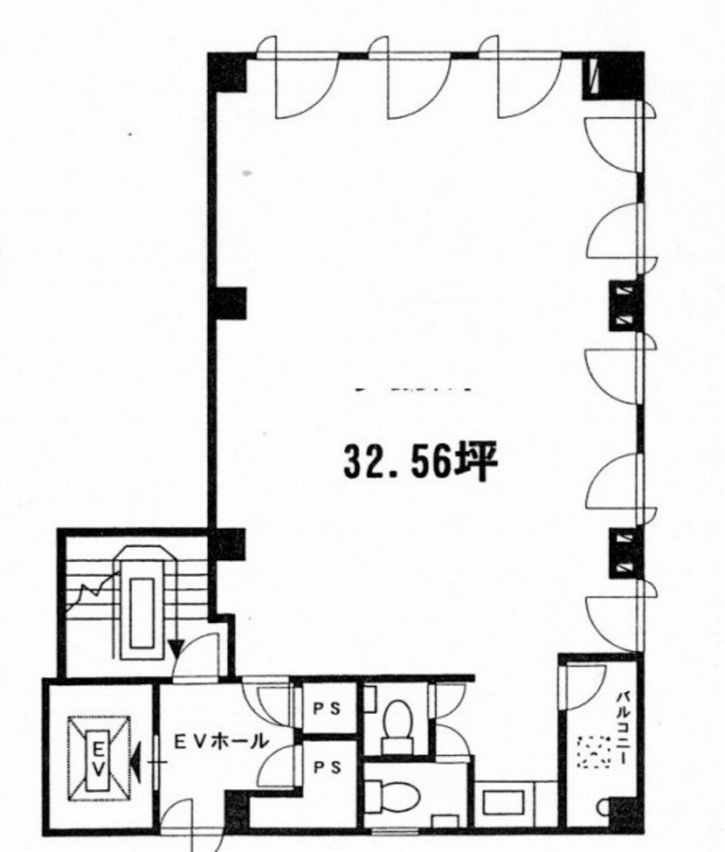
黒田ビルのご紹介です。このビルは、1984年に竣工した地上7階建ての賃貸オフィスビルで、港区芝大門に位置しています。基準階は約32坪の広さで、シンプルな長方形のレイアウトが特徴です。ビルの外観はベージュのタイル張りで、清潔感あふれる印象を与えます。また、角地に立地しているため、窓が多く採光性に優れています。 このビルの立地は非常に便利で、大門駅、芝公園駅、浜松町駅と3つの駅が徒歩5分前後の距離にあります。これにより、都営地下鉄3路線、JR線、東京モノレールを利用することができ、羽田空港へのアクセスも容易です。第一京浜に近く、ビルの周辺は飲食店や住居が多く、生活に必要な施設が充実しています。徒歩2分の場所にはコンビニがあり、港浜松町郵便局や港区役所も徒歩圏内にあります。 黒田ビルには1基のエレベーターが設置されており、男女別トイレや避難用バルコニーなど、オフィスビルとして必要な設備が整っています。また、ビル内には月極駐車場がありますので、車での通勤も可能です。このビルは、新耐震基準施工後に竣工したため、耐震性にも優れています。 黒田ビルは、その立地の良さ、機能的な設備、清潔で快適なオフィス環境を求める企業に最適な物件です。ビルの周辺には多彩な飲食店や便利な施設があり、ビジネスをサポートする環境が整っています。お問い合わせをお待ちしております。
自分で探すより問い合わせる方が早いことがあります
WEB非公開物件があるから
オーナー様のご希望により「WEBでは非公開」にしている物件があります。 それらはWEBでいくら検索しても見つかりません。 先ずは条件などお知らせ頂けましたら非公開物件含め ピッタリのオフィスをご提案させて頂きます。 無理なお勧めはしておりませんので、お気軽にお問い合わせください。
対面でのご相談も受け付けております
ご来店も歓迎です
オフィス移転は社内・社外ともに非公開に行われることが殆どです。そのためアットオフィスでは、基本的に訪問によるコンサルティングを行っておりますが、ご来店の相談も歓迎です。お一人おひとりに親身にご対応させて頂きたい為、要予約とさせて頂いております。ご来店の際は先ずは下記よりご予約下さい。
募集終了のテナント区画
| 階数 | 坪数 | 賃料 + 共益費 | 敷金/礼金敷金 礼金 | 検討 |
|---|---|---|---|---|
| 2階 | 32.56坪 (107.63m²) | 募集終了 | - | - |
| 3階 | 32.56坪 (107.64m²) | 募集終了 | - | - |
| 4階 | 32.56坪 (107.62m²) | 募集終了 | - | - |
| 6階 | 25.19坪 (83.27m²) | 募集終了 | - | - |
読込中...
近くのエリアで探してみる
浜松町/田町/芝公園エリアで黒田ビルに似た条件の物件
読込中...
| 取扱様態 | 仲介 |
|---|---|
| 取扱会社 | 株式会社 アットオフィス |