※このサイトに記載がある賃貸条件は、敷金・保証金などの預かり金を除き、別途消費税がかかります。
物件情報
設備詳細
| 空調 | 個別空調 |
|---|---|
| トイレ | 男女共用トイレ・室外 |
| 床仕様 | - |
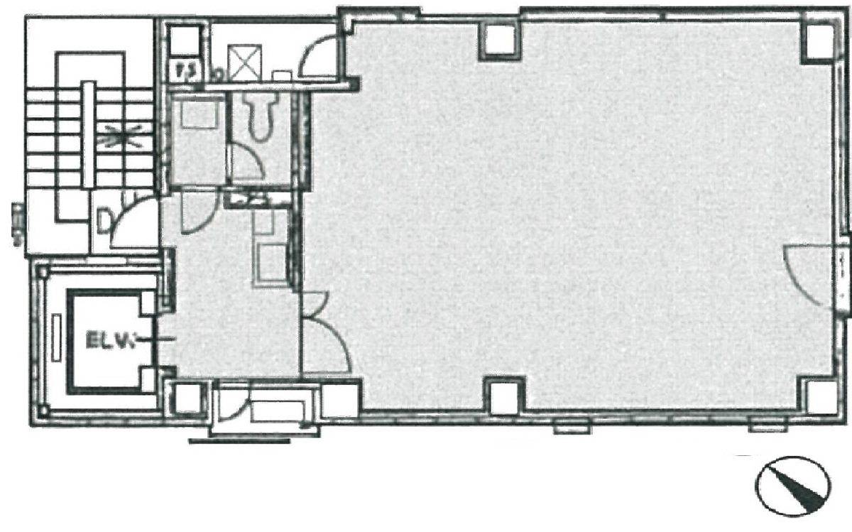
| エレベータ | 1 基 |
| 駐車場設備 | - |
| その他 | 機械警備 / 24時間利用可 / 光ファイバー / 新耐震基準 |
御成門ビルの賃貸オフィス・事務所に関するお問い合わせ
御成門ビルについて
**御成門ビル:あなたのビジネス拠点に最適な選択** 港区西新橋に位置する「御成門ビル」のご紹介をさせていただきます。ビジネスの世界では、立地が成功への鍵を握ります。このビルは、その条件を見事に満たしており、あなたのビジネスを次のレベルへと導くことでしょう。 **立地の魅力:** 御成門ビルは、都営地下鉄三田線「御成門」駅からわずか徒歩1分という、アクセスの良さが魅力的です。この立地は、従業員の方々はもちろん、クライアントの訪問にも非常に便利です。また、ビルは日比谷通りに面しており、周辺には飲食店やコンビニエンスストアが充実しているため、ビジネスの合間にリフレッシュするのにも最適な環境です。 **ビルの特長:** 1983年に竣工したこの9階建てのビルは、新耐震基準に準拠しており、安心してご利用いただけます。また、2面採光で明るく、レイアウトしやすいオフィス空間が魅力的です。ワンフロアワンテナント制を採用しており、プライバシーが保たれるとともに、自社のアイデンティティを大切にした空間作りが可能です。 **設備の充実:** 御成門ビルは、ビル内に駐車場を完備しており、来客時や車での通勤にも便利です。さらに、エレベーターは1機設置されており、スムーズな移動をサポートします。明るく快適なオフィスで、効率的なビジネスを展開するための設備が整っています。 **まとめ:** 御成門ビルは、優れた立地、確かな安全性、そしてビジネスに最適な環境を備えた賃貸オフィス物件です。ビジネスの成功を加速させるための拠点として、ぜひこの御成門ビルをご検討ください。今日から新たなビジネスライフが始まります。お問い合わせをお待ちしております。
御成門ビルのこだわり
自分で探すより問い合わせる方が早いことがあります
WEB非公開物件があるから
オーナー様のご希望により「WEBでは非公開」にしている物件があります。 それらはWEBでいくら検索しても見つかりません。 先ずは条件などお知らせ頂けましたら非公開物件含め ピッタリのオフィスをご提案させて頂きます。 無理なお勧めはしておりませんので、お気軽にお問い合わせください。
対面でのご相談も受け付けております
ご来店も歓迎です
オフィス移転は社内・社外ともに非公開に行われることが殆どです。そのためアットオフィスでは、基本的に訪問によるコンサルティングを行っておりますが、ご来店の相談も歓迎です。お一人おひとりに親身にご対応させて頂きたい為、要予約とさせて頂いております。ご来店の際は先ずは下記よりご予約下さい。
読込中...
近くのエリアで探してみる
新橋/虎ノ門/神谷町エリアで御成門ビルに似た条件の物件
読込中...
| 取扱様態 | 仲介 |
|---|---|
| 取扱会社 | 株式会社 アットオフィス |