※このサイトに記載がある賃貸条件は、敷金・保証金などの預かり金を除き、別途消費税がかかります。
物件情報
設備詳細
| 空調 | - |
|---|---|
| トイレ | - |
| 床仕様 | - |
| エレベータ | - |
| 駐車場設備 | - |
| その他 | デザイナーズ / 新耐震基準 |
第2新橋会館の賃貸オフィス・事務所に関するお問い合わせ
第2新橋会館について
本日は、銀座7丁目に位置する、まさにビジネスの中心地にふさわしいオフィス賃貸物件、「第2新橋会館ビル」をご紹介いたします。このビルは、その立地だけでなく、デザイン性と機能性を兼ね備えた、まさに現代のビジネスパーソンにぴったりの物件です。 まず、このビルの最大の魅力は、その日当たりの良さと開放感あふれる設計にあります。デザイナーズ物件としてのこだわりが随所に感じられる空間は、クリエイティビティを刺激し、働く皆様の心を豊かにします。また、銀座という日本を代表するビジネス&ショッピングエリアに位置しているため、アクセスの良さも抜群。主要な交通機関へのアクセスが容易で、ビジネスの機会を広げるための最適な場所にあります。 設備面では、最新のビル管理システムを導入し、安全性と利便性を追求。快適なオフィス環境を提供するため、高速インターネット接続やセキュリティシステムも万全です。また、エネルギー効率の高い設計により、環境に配慮しつつ運営コストの削減も実現しています。 「第2新橋会館ビル」は、その立地と設備だけでなく、デザインにおいてもビジネスの成功をサポートする環境を提供します。明るく開放的なオフィス空間は、チームのコミュニケーションを促進し、クリエイティブなアイデアを生み出すためのインスピレーションを与えてくれるでしょう。 さらに、周辺地域の充実したインフラは、ビジネスだけでなく、日々の生活にも便利な環境を提供。ランチやアフター5の時間を楽しむ場所も豊富にあり、ビジネスとプライベートのバランスをとりやすいのも大きな魅力です。 ビジネスの中心地であり、日々の生活にも便利な「第2新橋会館ビル」では、新たなビジネスのチャンスを掴み、夢を実現するための最高のスタートを切ることができます。デザインと機能性を兼ね備えたこの物件で、皆様のビジネスをさらに輝かせてみませんか?ご興味をお持ちの方は、ぜひ一度、現地をご覧になってみてください。皆様のビジネスの成功を、心よりお待ちしております。
自分で探すより問い合わせる方が早いことがあります
WEB非公開物件があるから
オーナー様のご希望により「WEBでは非公開」にしている物件があります。 それらはWEBでいくら検索しても見つかりません。 先ずは条件などお知らせ頂けましたら非公開物件含め ピッタリのオフィスをご提案させて頂きます。 無理なお勧めはしておりませんので、お気軽にお問い合わせください。
対面でのご相談も受け付けております
ご来店も歓迎です
オフィス移転は社内・社外ともに非公開に行われることが殆どです。そのためアットオフィスでは、基本的に訪問によるコンサルティングを行っておりますが、ご来店の相談も歓迎です。お一人おひとりに親身にご対応させて頂きたい為、要予約とさせて頂いております。ご来店の際は先ずは下記よりご予約下さい。
募集終了のテナント区画
| 階数 | 坪数 | 賃料 + 共益費 | 敷金/礼金敷金 礼金 | 検討 |
|---|---|---|---|---|
| B1階 | 41.35坪 (136.69m²) | 募集終了 | - | - |
| 1階 | 63坪 (208.26m²) | 募集終了 | - | - |
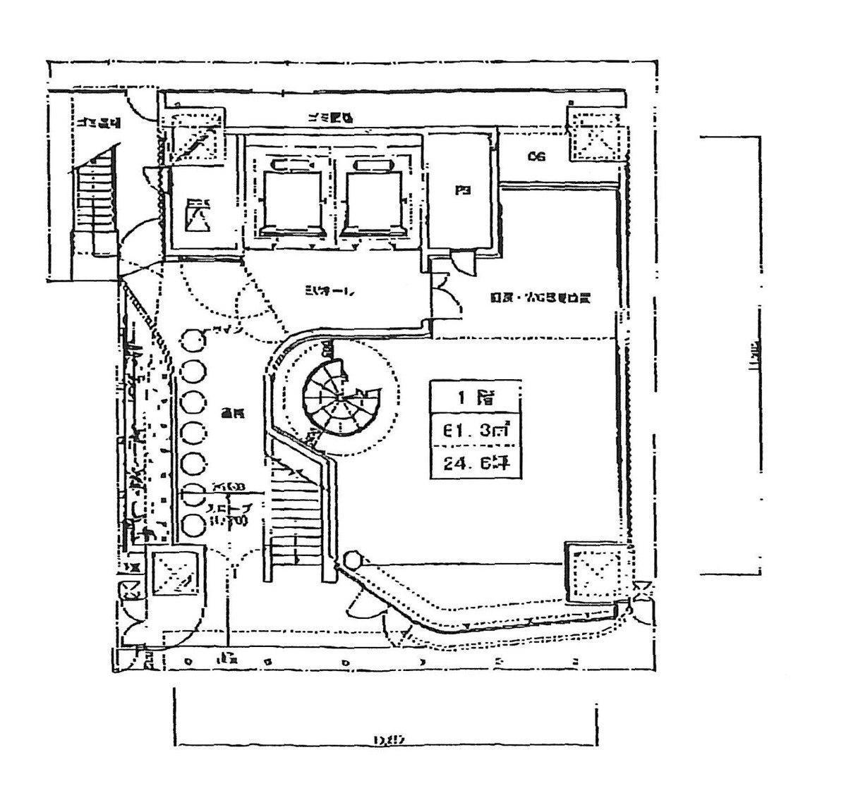
| 1階 | 24.6坪 (81.32m²) | 募集終了 | - | - |
| 2階 | 38.4坪 (126.94m²) | 募集終了 | - | - |
| 3階 | 18坪 (59.5m²) | 募集終了 | - | - |
| 3階 | 15.3坪 (50.57m²) | 募集終了 | - | - |
| 3階 | 15.3坪 (50.57m²) | 募集終了 | - | - |
| 3階 | 38.4坪 (126.94m²) | 募集終了 | - | - |
| 4階 | 38.4坪 (126.94m²) | 募集終了 | - | - |
| 5階 | 38.4坪 (126.94m²) | 募集終了 | - | - |
| 6階 | 38.4坪 (126.94m²) | 募集終了 | - | - |
| 7階 | 38.4坪 (126.94m²) | 募集終了 | - | - |
| 8階 | 38.4坪 (126.94m²) | 募集終了 | - | - |
読込中...
銀座エリアで第2新橋会館に似た条件の物件
読込中...
| 取扱様態 | 仲介 |
|---|---|
| 取扱会社 | 株式会社 アットオフィス |