第2河上ビル6階の賃貸情報
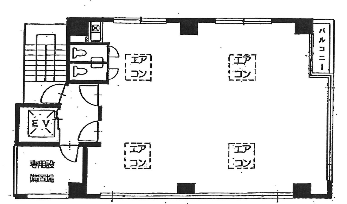
30.35 坪 (100.33m²)
※このサイトに記載がある賃貸条件は、敷金・保証金などの預かり金を除き、別途消費税がかかります。
第2河上ビルの建物概要
設備詳細
| 空調 | 個別空調 |
|---|---|
| トイレ | - |
| 床仕様 | OA対応床(フリーアクセス) |
| エレベータ | 1 基 |
| 駐車場設備 | - |
| その他 | 新耐震基準 / 機械警備 / オートロック / 光ファイバー |
第2河上ビル6階の賃貸オフィス・事務所に関するお問い合わせ
第2河上ビルについて
四ッ谷駅からわずか徒歩4分の距離に位置する「第2河上」ビルは、利便性に優れた立地が魅力です。1984年5月に建築された地上9階建てのこのビルは、現行の新耐震基準を満たしており、安全面でも安心してご利用いただけます。 交通の要所である四ッ谷駅に近接し、複数の路線が利用可能であるため、移動が多い方にも最適です。新宿通り沿いに位置しているため、初めて訪れる方にも非常にわかりやすいロケーションです。お客様や取引先とのアクセスもスムーズに行えます。 ビル内には、エレベーターやオートロックシステムが完備されており、利便性とセキュリティの両方を兼ね備えています。また、機械警備が導入されているため、安心して日々の業務に集中できる環境が整っています。 このビルの大きな魅力は、何といってもそのアクセスの良さと安心の設備です。周辺には多様な飲食店やショップもあり、日常のランチやちょっとした買い物にも非常に便利です。移動やセキュリティを重視する方にとって、理想的なオフィス環境を提供します。
第2河上ビルのこだわり
自分で探すより問い合わせる方が早いことがあります
WEB非公開物件があるから
オーナー様のご希望により「WEBでは非公開」にしている物件があります。 それらはWEBでいくら検索しても見つかりません。 先ずは条件などお知らせ頂けましたら非公開物件含め ピッタリのオフィスをご提案させて頂きます。 無理なお勧めはしておりませんので、お気軽にお問い合わせください。
対面でのご相談も受け付けております
ご来店も歓迎です
オフィス移転は社内・社外ともに非公開に行われることが殆どです。そのためアットオフィスでは、基本的に訪問によるコンサルティングを行っておりますが、ご来店の相談も歓迎です。お一人おひとりに親身にご対応させて頂きたい為、要予約とさせて頂いております。ご来店の際は先ずは下記よりご予約下さい。
四ツ谷/信濃町エリアで第2河上ビルに似た条件の物件
読込中...
第2河上ビルと同じ最寄駅の物件
読込中...
| 取扱様態 | 仲介 |
|---|---|
| 取扱会社 | 株式会社 アットオフィス |