※このサイトに記載がある賃貸条件は、敷金・保証金などの預かり金を除き、別途消費税がかかります。
物件情報
設備詳細
| 空調 | 個別空調 |
|---|---|
| トイレ | - |
| 床仕様 | - |
| エレベータ | 1 基 |
| 駐車場設備 | - |
| その他 | 新耐震基準 / 光ファイバー / 機械警備 |
永光浜松町ビルの賃貸オフィス・事務所に関するお問い合わせ
永光浜松町ビルについて
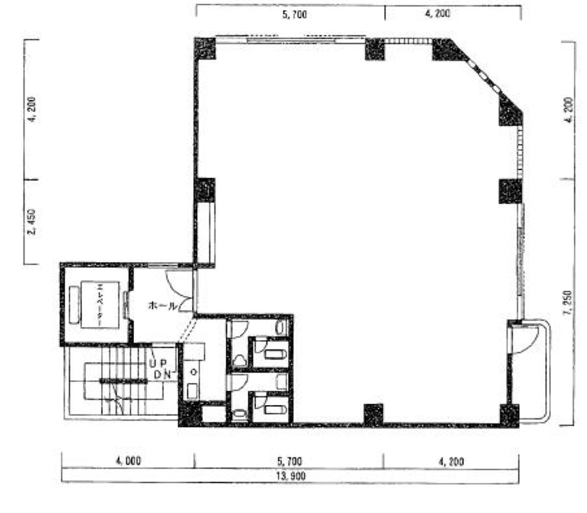
永光浜松町ビルは、東京都港区に位置し、浜松町駅から徒歩わずか5分という絶好の立地にあります。このエリアは、ビジネスと交通の要所として知られ、JR線と地下鉄を利用可能な4駅が徒歩10分圏内にあります。浜松町、大門、御成門、汐留の各駅からアクセス可能で、都内主要ビジネスエリアへの移動はもちろん、横浜方面や羽田・成田の両空港へのアクセスも容易です。この立地は、ビジネスの機動性を高めるための理想的な条件を備えています。 永光浜松町ビル自体は、コンパクトながらも機能性に優れた設計が特徴です。基準階約30坪というサイズで、正方形に近い間取りは余計な柱がなく、レイアウトの自由度が非常に高いです。これにより、テナントは自社のニーズに合わせたオフィス空間を容易に構築できます。また、男女別トイレや給湯スペースは共用部に設置されており、光ファイバー対応のため通信インフラも整っています。 セキュリティ面では、機械警備システムを採用し、エレベーターには不停止機能も搭載されています。これにより、テナントは安心してビジネスを行うことができます。外観は白いタイル張りで、洗練されたイメージを持ちながらも、周辺環境と調和したデザインになっています。 周辺環境も魅力の一つです。ビルの近くには飲食店やコンビニが点在し、日常の買い物や食事に便利です。また、イタリア街が近く、異文化を感じることができるのもこの地域の特徴です。 港区浜松町エリアのオフィス市場は、アクセスの良さと周辺環境の充実から、多くの企業がオフィスを構える人気エリアです。永光浜松町ビルは、この競争の激しい市場においても、絶妙なバランスで機能性と立地の良さを兼ね備えた物件として注目されています。小規模から中規模の企業にとって、高いレイアウト自由度と利便性を求めるなら、このビルは非常に魅力的な選択肢と言えるでしょう。
永光浜松町ビルのこだわり
自分で探すより問い合わせる方が早いことがあります
WEB非公開物件があるから
オーナー様のご希望により「WEBでは非公開」にしている物件があります。 それらはWEBでいくら検索しても見つかりません。 先ずは条件などお知らせ頂けましたら非公開物件含め ピッタリのオフィスをご提案させて頂きます。 無理なお勧めはしておりませんので、お気軽にお問い合わせください。
対面でのご相談も受け付けております
ご来店も歓迎です
オフィス移転は社内・社外ともに非公開に行われることが殆どです。そのためアットオフィスでは、基本的に訪問によるコンサルティングを行っておりますが、ご来店の相談も歓迎です。お一人おひとりに親身にご対応させて頂きたい為、要予約とさせて頂いております。ご来店の際は先ずは下記よりご予約下さい。
読込中...
近くのエリアで探してみる
浜松町/田町/芝公園エリアで永光浜松町ビルに似た条件の物件
読込中...
| 取扱様態 | 仲介 |
|---|---|
| 取扱会社 | 株式会社 アットオフィス |