※このサイトに記載がある賃貸条件は、敷金・保証金などの預かり金を除き、別途消費税がかかります。
物件情報
設備詳細
| 空調 | - |
|---|---|
| トイレ | - |
| 床仕様 | - |
| エレベータ | 1 基 |
| 駐車場設備 | 空無 |
| その他 | SOHO/マンション / 光ファイバー |
メゾン青山の賃貸オフィス・事務所に関するお問い合わせ
メゾン青山について
メゾン青山ビルへようこそ。港区北青山2丁目、東京のダイナミックなビジネスシーンの中心に立地するこのマンションは、SOHOや事務所利用を考えている方々にとって、理想的な選択肢となるでしょう。 立地についてまず触れなければなりません。北青山は、ファッション、アート、ビジネスが交差する東京の最も活気に満ちた地域の一つです。この地域は、多くの有名ブランドのショップや、クリエイティブなカフェ、レストランが立ち並び、日々多くのビジネスマンや観光客で賑わっています。メゾン青山ビルは、このような環境の中心に位置し、ビジネスの機会を最大限に活かす絶好の場所にあります。 次に、メゾン青山ビル自体の特長についてです。このビルは、SOHOや小規模事務所の利用に最適な設計がなされています。エレベーターは1機設置されており、快適な移動を保証します。建物全体が高品質な設備と洗練されたデザインで構成されており、ビジネスの場としてだけでなく、クリエイティブな活動の拠点としても最適な環境を提供します。 ビルの内部は、機能性と快適性を兼ね備えています。明るく開放的な空間は、創造性と生産性を促進し、どのようなビジネスにも対応可能な柔軟性を持っています。また、高速インターネット接続などの最新のオフィス設備も完備しており、スムーズなビジネス運営をサポートします。 メゾン青山ビルは、立地の良さ、高品質な設備、そしてビジネスの成長をサポートする柔軟な環境を提供します。北青山という東京の中心地にあるこのビルは、ビジネスの拠点として、またクリエイティブな活動の場として、あなたの期待を超える価値を提供することでしょう。ビジネスの成功と成長を目指す方々にとって、メゾン青山ビルは選ぶべき理想的な場所です。
メゾン青山のこだわり
自分で探すより問い合わせる方が早いことがあります
WEB非公開物件があるから
オーナー様のご希望により「WEBでは非公開」にしている物件があります。 それらはWEBでいくら検索しても見つかりません。 先ずは条件などお知らせ頂けましたら非公開物件含め ピッタリのオフィスをご提案させて頂きます。 無理なお勧めはしておりませんので、お気軽にお問い合わせください。
対面でのご相談も受け付けております
ご来店も歓迎です
オフィス移転は社内・社外ともに非公開に行われることが殆どです。そのためアットオフィスでは、基本的に訪問によるコンサルティングを行っておりますが、ご来店の相談も歓迎です。お一人おひとりに親身にご対応させて頂きたい為、要予約とさせて頂いております。ご来店の際は先ずは下記よりご予約下さい。
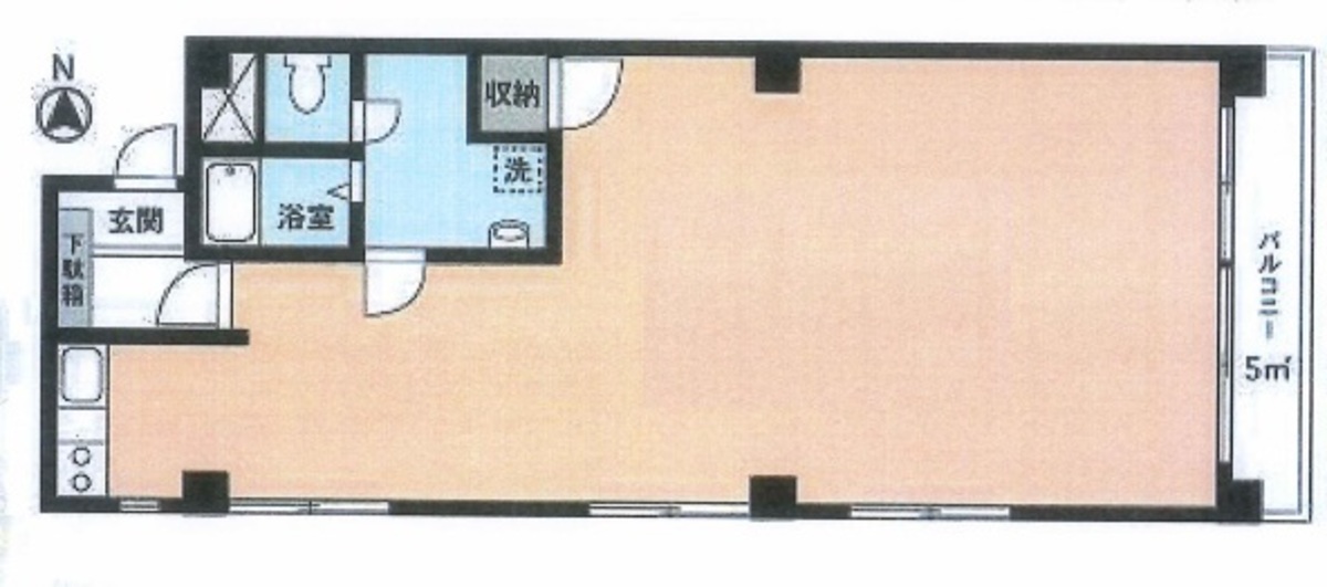
募集終了のテナント区画
| 階数 | 坪数 | 賃料 + 共益費 | 敷金/礼金敷金 礼金 | 検討 |
|---|---|---|---|---|
| 3階 | 19.45坪 (64.31m²) | 募集終了 | - | - |
| 4階 | 15.73坪 (52m²) | 募集終了 | - | - |
| 5階 | 18.36坪 (60.69m²) | 募集終了 | - | - |
| 8階 | 15.45坪 (51.1m²) | 募集終了 | - | - |
| 10階 | 18.36坪 (60.71m²) | 募集終了 | - | - |
| 12階 | 18.74坪 (61.97m²) | 募集終了 | - | - |
読込中...
青山エリアでメゾン青山に似た条件の物件
読込中...
| 取扱様態 | 仲介 |
|---|---|
| 取扱会社 | 株式会社 アットオフィス |