※このサイトに記載がある賃貸条件は、敷金・保証金などの預かり金を除き、別途消費税がかかります。
物件情報
設備詳細
| 空調 | - |
|---|---|
| トイレ | - |
| 床仕様 | - |
| エレベータ | 1 基 |
| 駐車場設備 | 空有 / 機械式駐車場 |
| その他 | 新耐震基準 / 機械警備 / 24時間利用可 |
フォーラム島田Ⅱビルの賃貸オフィス・事務所に関するお問い合わせ
フォーラム島田Ⅱビルについて
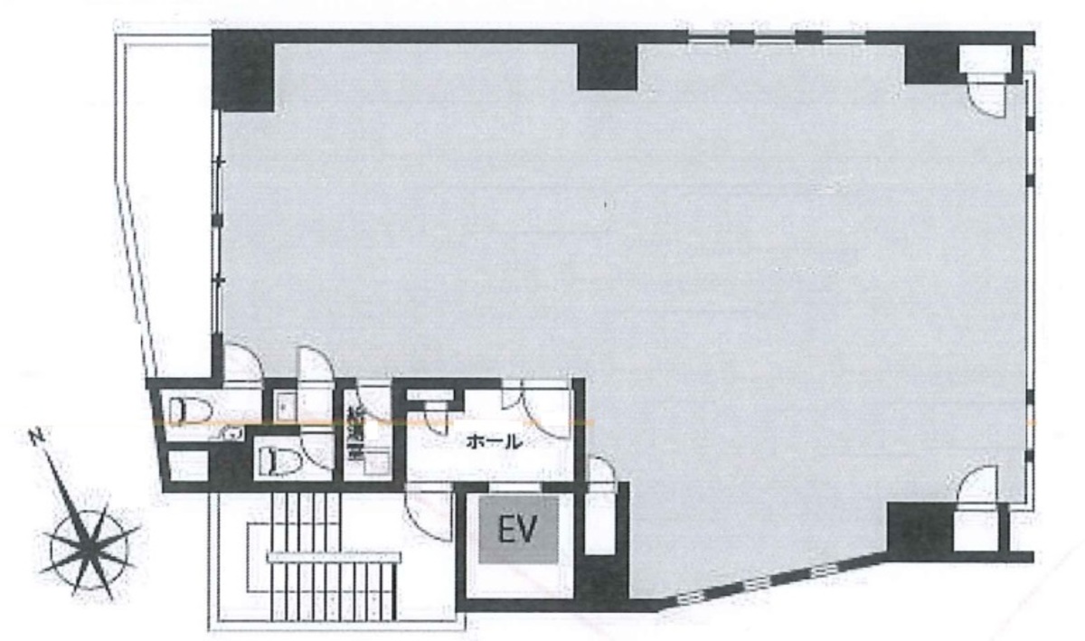
フォーラム島田Ⅱは、東京都中央区新川1丁目に位置する地上8階建ての賃貸オフィスビルです。1988年に竣工し、新耐震基準に則った堅牢な構造を有しています。ビルの基準階の広さは約35坪で、各オフィスは2面採光とバルコニーを備えており、明るく開放的な作業環境を提供します。また、ビル内に設置された1基のエレベーターは、スムーズな移動をサポートします。 ビルの外観は、シンプルかつスタイリッシュな白い外壁が特徴で、清潔感溢れるエントランスが入居企業のイメージを高めます。セキュリティに関しては、24時間機械警備システムが導入されており、入居企業と従業員の安全を確保します。また、各オフィスには個別空調システムが完備されており、快適な室内環境を一年中維持できます。 立地においては、フォーラム島田Ⅱは、東京メトロ日比谷線と東西線が乗り入れる茅場町駅から徒歩5分の位置にあります。さらに、JR線の八丁堀駅も徒歩圏内という、複数の交通網に恵まれた利便性の高い場所にあります。近隣にはコンビニやカフェ、レストランなどが豊富にあり、ビジネスライフを支える日常の利便性も優れています。郵便局や銀行などの金融機関も近く、ビジネスに必要なサービスが身近に揃っています。 総じて、フォーラム島田Ⅱは、耐震性に優れた安全なオフィス環境、快適な室内環境、そして交通アクセスの良さと日常の利便性を兼ね備えた賃貸オフィスビルです。中小規模の企業やスタートアップにとって、ビジネスの拠点として最適な環境を提供します。
自分で探すより問い合わせる方が早いことがあります
WEB非公開物件があるから
オーナー様のご希望により「WEBでは非公開」にしている物件があります。 それらはWEBでいくら検索しても見つかりません。 先ずは条件などお知らせ頂けましたら非公開物件含め ピッタリのオフィスをご提案させて頂きます。 無理なお勧めはしておりませんので、お気軽にお問い合わせください。
対面でのご相談も受け付けております
ご来店も歓迎です
オフィス移転は社内・社外ともに非公開に行われることが殆どです。そのためアットオフィスでは、基本的に訪問によるコンサルティングを行っておりますが、ご来店の相談も歓迎です。お一人おひとりに親身にご対応させて頂きたい為、要予約とさせて頂いております。ご来店の際は先ずは下記よりご予約下さい。
募集終了のテナント区画
| 階数 | 坪数 | 賃料 + 共益費 | 敷金/礼金敷金 礼金 | 検討 |
|---|---|---|---|---|
| 5階 | 35坪 (115.7m²) | 募集終了 | - | - |
読込中...
近くのエリアで探してみる
茅場町/新川/八丁堀エリアでフォーラム島田Ⅱビルに似た条件の物件
読込中...
| 取扱様態 | 仲介 |
|---|---|
| 取扱会社 | 株式会社 アットオフィス |