Sreed EBISU EASTの賃料条件
| 階数 | 坪数 | 賃料 + 共益費 | 敷金/礼金敷金 礼金 | 検討 |
|---|---|---|---|---|
| 7階 | 56.47坪 (186.69m²) | 1,694,100円 (坪:30,000 円) | 8ヶ月 無8ヶ月/無 | |
| 8階 | 56.47坪 (186.69m²) | 1,678,700円 (坪:29,727 円) | 8ヶ月 1ヶ月8ヶ月/1ヶ月 |
※このサイトに記載がある賃貸条件は、敷金・保証金などの預かり金を除き、別途消費税がかかります。
物件情報
設備詳細
| 空調 | 個別空調 |
|---|---|
| トイレ | 男女別トイレ / 男女別トイレ室外 |
| 床仕様 | OA対応床(フリーアクセス) |
| エレベータ | 1 基 / エレベーター有 |
| 駐車場設備 | 空有 / 敷地内駐車場 |
| その他 | オートロック / 機械警備 / 24時間利用可 / 光ファイバー / 新耐震基準 |
Sreed EBISU EASTの賃貸オフィス・事務所に関するお問い合わせ
Sreed EBISU EASTについて
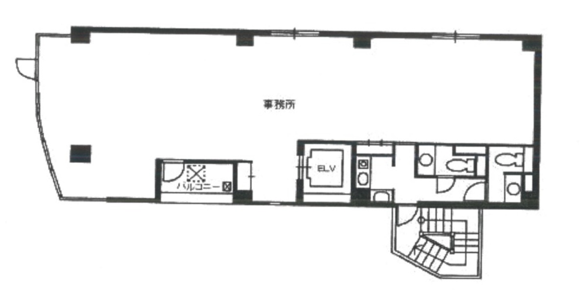
恵比寿エリアに位置する賃貸オフィスビル「SreedEBISUEAST(渋谷区恵比寿)」は、東京のビジネスシーンの中心地にふさわしい、アクセスと設備の良さが魅力の物件です。JR恵比寿駅の東口から徒歩5分という理想的な立地条件に加え、周辺は飲食店が豊富で、日常の利便性が高いエリアにあります。 この物件は、2015年に大規模リニューアルを行い、外観は御影石と大きな窓面のミラーガラスで構成され、近隣でも一際目を引くデザインとなっています。基準階は約56.47坪で、時期やフロアによっては分割区画の選択も可能、様々なビジネスニーズに対応できる柔軟性を備えています。 セキュリティ面では、エントランスは常時オートロックが施されており、機械警備も導入されています。これにより、入居企業と従業員の安全が保たれます。また、1階には機械式駐車場が付属し、高級感と統一感のあるエントランスホールとともにビル全体のグレードを高めています。 オフィス内部には、個別空調やOAフロアが完備されており、快適なオフィス環境を提供します。特に、床下にOA機器の配線が可能な高さ50mmのOAフロアは、オフィスレイアウトの自由度を高めます。男女別の室外トイレも設置され、働く人の利便性を考慮した設計となっています。 周辺環境も魅力の一つで、ビルの隣にはコンビニがあり、徒歩圏内には多数の飲食店が並んでいます。また、JR恵比寿駅は山手線・埼京線・湘南新宿ライン、東京メトロ日比谷線が利用可能で、都内主要駅や横浜方面へのアクセスも良好です。 「SreedEBISUEAST」は、立地の良さ、充実した設備、そして高いセキュリティを兼ね備えた賃貸オフィスビルです。ビジネスの拠点として、あるいは企業のイメージアップにも寄与するこの物件は、恵比寿エリアでのオフィス探しに最適な選択肢と言えるでしょう。
自分で探すより問い合わせる方が早いことがあります
WEB非公開物件があるから
オーナー様のご希望により「WEBでは非公開」にしている物件があります。 それらはWEBでいくら検索しても見つかりません。 先ずは条件などお知らせ頂けましたら非公開物件含め ピッタリのオフィスをご提案させて頂きます。 無理なお勧めはしておりませんので、お気軽にお問い合わせください。
対面でのご相談も受け付けております
ご来店も歓迎です
オフィス移転は社内・社外ともに非公開に行われることが殆どです。そのためアットオフィスでは、基本的に訪問によるコンサルティングを行っておりますが、ご来店の相談も歓迎です。お一人おひとりに親身にご対応させて頂きたい為、要予約とさせて頂いております。ご来店の際は先ずは下記よりご予約下さい。
募集終了のテナント区画
| 階数 | 坪数 | 賃料 + 共益費 | 敷金/礼金敷金 礼金 | 検討 |
|---|---|---|---|---|
| 2階 | 29.45坪 (97.38m²) | 募集終了 | - | - |
| 3階 | 33.99坪 (112.39m²) | 募集終了 | - | - |
| 3階 | 27.99坪 (92.54m²) | 募集終了 | - | - |
| 4階 | 33.99坪 (112.39m²) | 募集終了 | - | - |
| 5階 | 36坪 (119m²) | 募集終了 | - | - |
| 6階 | 56.47坪 (186.69m²) | 募集終了 | - | - |
| 9階 | 38.23坪 (126.39m²) | 募集終了 | - | - |
| 9階 | 59坪 (195.04m²) | 募集終了 | - | - |
読込中...
近くのエリアで探してみる
恵比寿/代官山/広尾エリアでSreed EBISU EASTに似た条件の物件
読込中...
| 取扱様態 | 仲介 |
|---|---|
| 取扱会社 | 株式会社 アットオフィス |