※このサイトに記載がある賃貸条件は、敷金・保証金などの預かり金を除き、別途消費税がかかります。
物件情報
設備詳細
| 空調 | 個別空調 |
|---|---|
| トイレ | 男女別トイレ |
| 床仕様 | - |
| エレベータ | 3 基 / エレベーター有 |
| 駐車場設備 | 空有 / 機械式駐車場 |
| その他 | 機械警備 / 大型ビル / 光ファイバー / 新耐震基準 / 24時間利用可 / 管理人常駐 |
KDX江戸橋ビルの賃貸オフィス・事務所に関するお問い合わせ
KDX江戸橋ビルについて
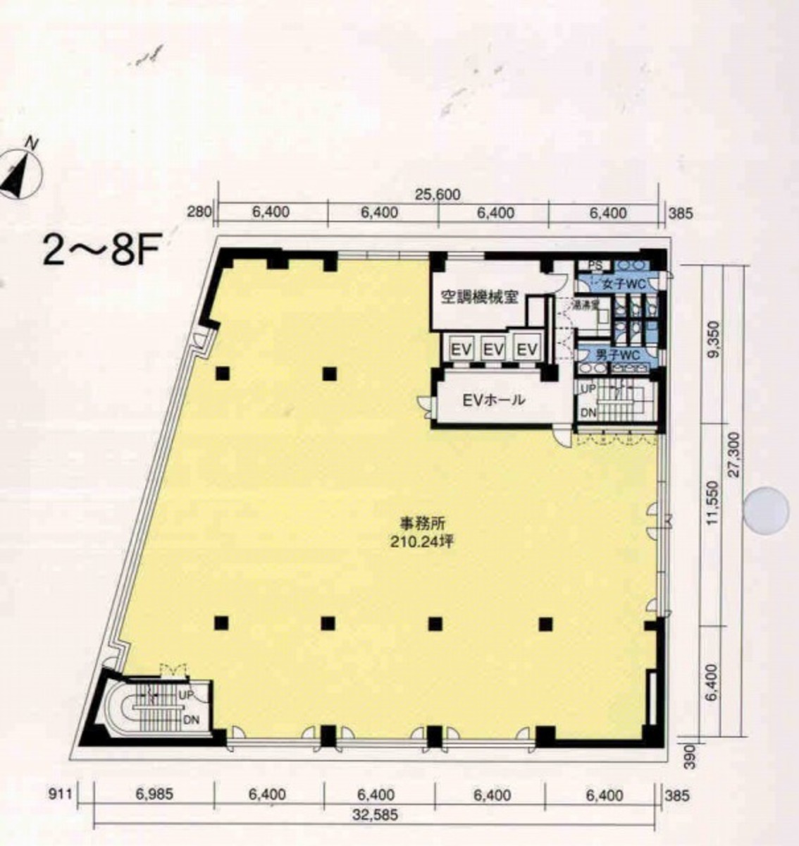
KDX江戸橋ビルは、中央区日本橋本町に位置する、ビジネスシーンに最適な賃貸オフィス物件です。1986年に竣工し、2023年にはエントランスやトイレなどがリニューアルされています。外観は重厚感あるグレード感を誇り、訪れる方々に良い印象を与えます。物件は昭和通り沿いの角地に立地しており、三越前駅から徒歩3分、日本橋駅から徒歩6分、人形町駅から徒歩7分というアクセスの良さも魅力の一つです。 基準階面積は210坪超と広々としており、時期やフロアによっては分割区画も提供可能です。これにより、様々な規模の企業が自社に合ったオフィススペースを見つけることができます。また、室内は日当たりが良好で明るく、一部に柱があるため、内見時にはレイアウトのご相談をお勧めします。 物件は9階建てで、エレベーターは3基設置されています。セキュリティ面では、機械警備による安心のシステムが完備されており、敷地内には駐車場も併設されています。さらに、給湯スペースも2023年のリニューアル工事により、より使いやすくなっています。 周辺環境も魅力の一つで、コンビニや飲食店が点在しており、ランチタイムや仕事帰りの食事に便利です。また、東京駅も徒歩圏内にあり、地方へのアクセスも良好です。日本橋三越本店やコレド室町へのアクセスも良好で、ショッピングやちょっとしたお買い物にも困りません。 KDX江戸橋ビルは、その立地の良さ、設備の充実さ、そして周辺環境の便利さから、ビジネスを行う上で最適な環境を提供します。あなたのビジネスの成長をサポートする、理想的なオフィススペースです。ぜひ一度、ご覧になってみてはいかがでしょうか。
自分で探すより問い合わせる方が早いことがあります
WEB非公開物件があるから
オーナー様のご希望により「WEBでは非公開」にしている物件があります。 それらはWEBでいくら検索しても見つかりません。 先ずは条件などお知らせ頂けましたら非公開物件含め ピッタリのオフィスをご提案させて頂きます。 無理なお勧めはしておりませんので、お気軽にお問い合わせください。
対面でのご相談も受け付けております
ご来店も歓迎です
オフィス移転は社内・社外ともに非公開に行われることが殆どです。そのためアットオフィスでは、基本的に訪問によるコンサルティングを行っておりますが、ご来店の相談も歓迎です。お一人おひとりに親身にご対応させて頂きたい為、要予約とさせて頂いております。ご来店の際は先ずは下記よりご予約下さい。
募集終了のテナント区画
| 階数 | 坪数 | 賃料 + 共益費 | 敷金/礼金敷金 礼金 | 検討 |
|---|---|---|---|---|
| 1階 | 105.49坪 (348.73m²) | 募集終了 | - | - |
| 2階 | 210.24坪 (695m²) | 募集終了 | - | - |
| 3階 | 210.24坪 (695m²) | 募集終了 | - | - |
| 4階 | 210.24坪 (695m²) | 募集終了 | - | - |
| 5階 | 208.39坪 (688.89m²) | 募集終了 | - | - |
| 6階 | 208.39坪 (688.89m²) | 募集終了 | - | - |
| 7階 | 210.24坪 (695.01m²) | 募集終了 | - | - |
| 8階 | 210.24坪 (695m²) | 募集終了 | - | - |
| 9階 | 110.32坪 (364.69m²) | 募集終了 | - | - |
読込中...
近くのエリアで探してみる
八重洲/日本橋/三越前エリアでKDX江戸橋ビルに似た条件の物件
読込中...
| 取扱様態 | 仲介 |
|---|---|
| 取扱会社 | 株式会社 アットオフィス |