ニットクビル3階の賃貸情報
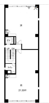
21.32 坪 (70.51m²)
328,432円 (坪:15,404 円)
※このサイトに記載がある賃貸条件は、敷金・保証金などの預かり金を除き、別途消費税がかかります。
ニットクビルの建物概要
設備詳細
| 空調 | 個別空調 |
|---|---|
| トイレ | 男女別トイレ / 男女共用トイレ・室外 |
| 床仕様 | - |
| エレベータ | 1 基 / エレベーター有 |
| 駐車場設備 | - |
| その他 | 機械警備 / 24時間利用可 / 光ファイバー / 大通り面する / オートロック |
ニットクビル3階の賃貸オフィス・事務所に関するお問い合わせ
ニットクビルについて
ニットクビルは東京都港区芝3丁目に位置する賃貸事務所物件です。都営三田線・芝公園駅から徒歩約3分という抜群のアクセス性を誇り、東京タワーや芝公園が近くにあることから、ビジネスと自然の調和を感じることができる貴重な立地にあります。また、赤羽橋駅や田町駅も徒歩圏内にあり、複数の交通網を利用できる利便性の高さも魅力の一つです。 1974年に竣工されたこの物件は、7階建てで基準階面積は約47坪。長方形に近い無柱空間で、窓面が広く取られているため、採光が良好で開放感のあるオフィス空間を実現しています。募集時期やフロアによっては分割区画の賃貸が可能で、多様なビジネスニーズに応える柔軟性を持っています。物件は光回線対応で、個別空調、トイレ(室外に設置されているため、共用部分も含め常に清潔に保たれています)など、ビジネスに必要な基本設備が整っています。 セキュリティ面では機械警備を導入し、オフィスは24時間利用可能。ビジネスの多様化に対応するためのセキュリティ体制と利便性を兼ね備えています。また、エレベーターは1基設置されており、管理状態も良好で、共用部分は常に清潔に保たれています。 周辺環境としては、コンビニや郵便局、バス停が至近にあり、日々の業務に必要なサービスに容易にアクセスできます。飲食店は周辺に少なめですが、徒歩8~10分の範囲に三田駅・田町駅周辺があり、多様な飲食店や店舗が充実しているため、昼食やアフター5の利用に困ることはありません。 ニットクビルは、立地の良さ、柔軟なレイアウト対応、充実した設備、そして周辺環境の利便性が組み合わさった、ビジネスシーンにおける多様な要求に応えうるオフィス物件です。東京タワーを望むことができ、自然との調和を感じながら、快適なオフィスライフを送ることができるでしょう。
ニットクビルのこだわり
自分で探すより問い合わせる方が早いことがあります
WEB非公開物件があるから
オーナー様のご希望により「WEBでは非公開」にしている物件があります。 それらはWEBでいくら検索しても見つかりません。 先ずは条件などお知らせ頂けましたら非公開物件含め ピッタリのオフィスをご提案させて頂きます。 無理なお勧めはしておりませんので、お気軽にお問い合わせください。
対面でのご相談も受け付けております
ご来店も歓迎です
オフィス移転は社内・社外ともに非公開に行われることが殆どです。そのためアットオフィスでは、基本的に訪問によるコンサルティングを行っておりますが、ご来店の相談も歓迎です。お一人おひとりに親身にご対応させて頂きたい為、要予約とさせて頂いております。ご来店の際は先ずは下記よりご予約下さい。
近くのエリアで探してみる
浜松町/田町/芝公園エリアでニットクビルに似た条件の物件
読込中...
ニットクビルと同じ最寄駅の物件
読込中...
| 取扱様態 | 仲介 |
|---|---|
| 取扱会社 | 株式会社 アットオフィス |