※このサイトに記載がある賃貸条件は、敷金・保証金などの預かり金を除き、別途消費税がかかります。
物件情報
設備詳細
| 空調 | - |
|---|---|
| トイレ | - |
| 床仕様 | - |
| エレベータ | - |
| 駐車場設備 | - |
| その他 | 機械警備 / 新耐震基準 / スケルトン / 店舗可(飲食可) / 1階の物件 |
KBKビルの賃貸オフィス・事務所に関するお問い合わせ
KBKビルについて
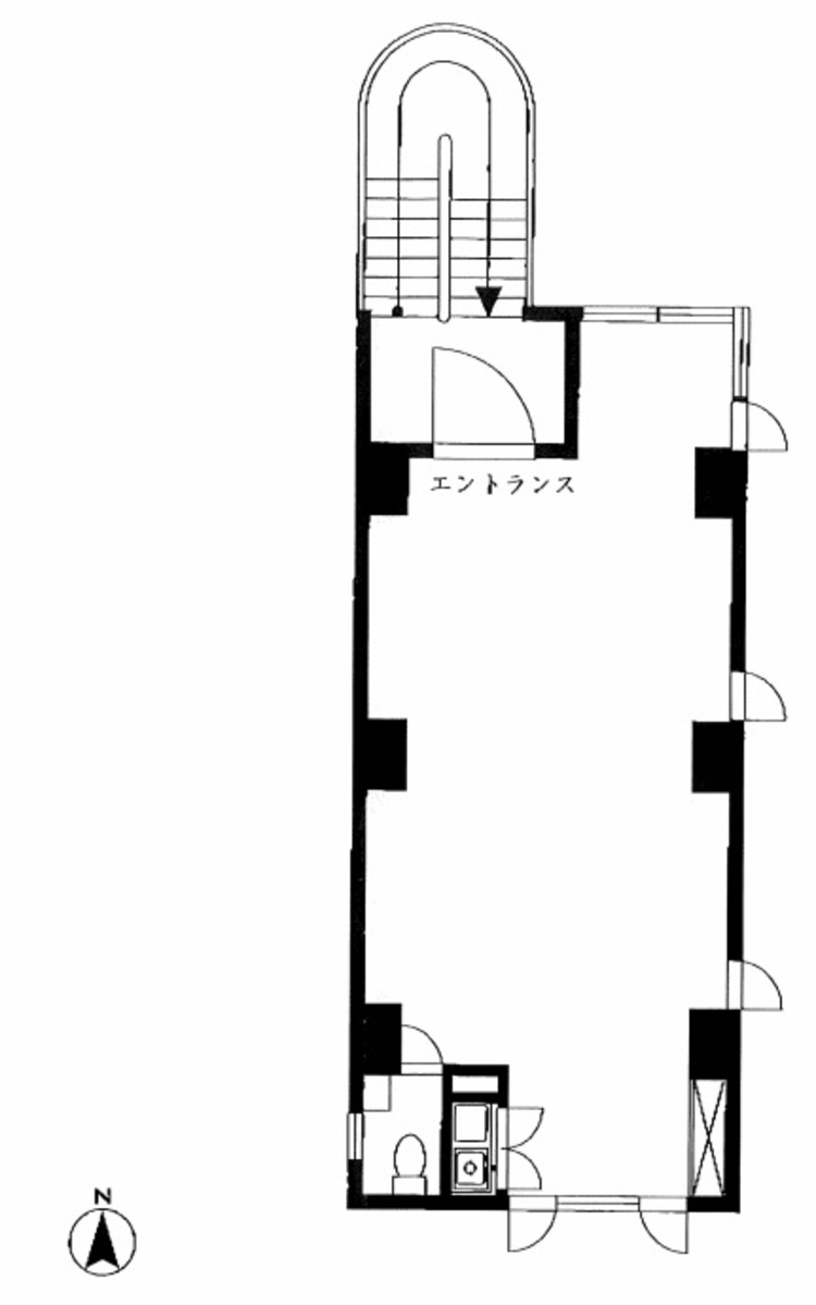
恵比寿4丁目、渋谷区の中心に立地するKBKビルは、1992年に竣工した賃貸オフィスビルの一つで、現代ビジネスの要求に応えるために設計されました。耐震性に優れた新耐震基準に適合したこの4階建てのビルは、ビジネスの安全性と安定性を保証します。セキュリティ面においては、機械警備システムを導入し、テナントの安全を24時間体制で守っています。 立地としては、恵比寿駅から徒歩圏内というアクセスの良さがあります。駅周辺では、金融機関や携帯ショップ、飲食店が充実しており、ビジネスに必要なあらゆるサービスを手軽に利用することが可能です。また、駒沢通り沿いから一本入った場所に位置しており、賑やかな大通りとは異なる静かな環境で集中して仕事ができる点も魅力の一つです。 ビルの特長として、階段のみの構造が挙げられます。これは、エレベーターがないことで電力消費を抑え、環境に優しい選択となっています。また、4階最上階ではロフトとメゾネットの組み合わせを採用しており、オフィス空間に開放感と創造性を提供します。このような独自の設計は、クリエイティブな業務に従事する企業や、スタートアップにとって理想的な環境を実現しています。 外観もタイル貼りで統一されており、落ち着いた雰囲気の中にも品格を感じさせます。このビルは、ビジネスとしての信頼感を象徴するデザインとなっており、ビル自体が企業イメージを高める一助となるでしょう。 総じて、KBKビルは、耐震基準に適合した安全性、抜群の立地条件、そして環境に配慮した設計により、ビジネスの基盤として最適な選択肢を提供します。ここにオフィスを構えることは、企業が持続可能な成長を遂げるための強固なステップとなるでしょう。
KBKビルのこだわり
自分で探すより問い合わせる方が早いことがあります
WEB非公開物件があるから
オーナー様のご希望により「WEBでは非公開」にしている物件があります。 それらはWEBでいくら検索しても見つかりません。 先ずは条件などお知らせ頂けましたら非公開物件含め ピッタリのオフィスをご提案させて頂きます。 無理なお勧めはしておりませんので、お気軽にお問い合わせください。
対面でのご相談も受け付けております
ご来店も歓迎です
オフィス移転は社内・社外ともに非公開に行われることが殆どです。そのためアットオフィスでは、基本的に訪問によるコンサルティングを行っておりますが、ご来店の相談も歓迎です。お一人おひとりに親身にご対応させて頂きたい為、要予約とさせて頂いております。ご来店の際は先ずは下記よりご予約下さい。
募集終了のテナント区画
| 階数 | 坪数 | 賃料 + 共益費 | 敷金/礼金敷金 礼金 | 検討 |
|---|---|---|---|---|
| 2階 | 16.2坪 (53.55m²) | 募集終了 | - | - |
| 3階 | 16.2坪 (53.55m²) | 募集終了 | - | - |
| 4階 | 16.2坪 (53.55m²) | 募集終了 | - | - |
読込中...
近くのエリアで探してみる
恵比寿/代官山/広尾エリアでKBKビルに似た条件の物件
読込中...
| 取扱様態 | 仲介 |
|---|---|
| 取扱会社 | 株式会社 アットオフィス |