青山セント・シオンビル3階の賃貸情報
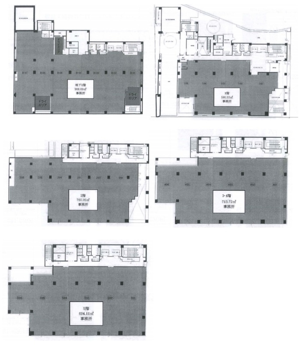
215.9 坪 (713.72m²)
お問合せ下さい (坪:-)
※このサイトに記載がある賃貸条件は、敷金・保証金などの預かり金を除き、別途消費税がかかります。
青山セント・シオンビルの建物概要
設備詳細
| 空調 | 個別空調 |
|---|---|
| トイレ | 男女別トイレ |
| 床仕様 | OA対応床(フリーアクセス) |
| エレベータ | 3 基 / エレベーター有 |
| 駐車場設備 | 空有 / 機械式駐車場 |
| その他 | 機械警備 / 大型ビル / 新耐震基準 / 24時間利用可 |
青山セント・シオンビル3階の賃貸オフィス・事務所に関するお問い合わせ
青山セント・シオンビルについて
東京都港区北青山に構える青山セント・シオンビルは、その外観からは想像できないほどの施設を有する賃貸オフィス物件です。1993年に竣工されたこのビルは、地上8階・地下2階建ての鉄骨鉄筋コンクリート造りで、新耐震基準にも適合しているため、安全性にも配慮されています。 青山セント・シオンビルの最大の魅力は、その立地にあります。東京メトロ銀座線の外苑前駅から徒歩3分、半蔵門線・千代田線の表参道駅からも徒歩7分というアクセスの良さは、ビジネスの中心地である東京での活動に最適です。さらに、外苑西通り沿いの角地に位置し、視認性も高く、来訪者への案内もスムーズに行えます。 内部設備においても、基準階約230坪の広々としたオフィス空間があり、ワンフロア・ワンテナントでの使用が可能です。各フロアは個別空調を完備し、長方形に近いレイアウトしやすい間取り、そして一部に柱があるものの、3方向からの採光により明るく開放的な室内環境を提供します。トイレと給湯スペースは貸室の外に配置され、リフレッシュルームも設置されています。 セキュリティ面では、機械警備システムを導入しており、24時間体制で安全を守ります。また、エントランスは大理石調で、高級感ある広々とした空間が来訪者を迎え入れます。 周辺環境もまた、青山セント・シオンビルの大きな魅力の一つです。ビルの近くには、緑豊かないちょう並木や青山霊園があり、オフィス街にありながらも落ち着いた環境で働くことができます。また、飲食店やカフェ、銀行や郵便局などの生活に便利な施設が充実しており、ビジネスだけでなく日常生活にも支障をきたさない立地です。 青山セント・シオンビルは、優れた立地、広々としたオフィス空間、充実した設備、そして快適な周辺環境を併せ持つ、ビジネスの成功をサポートする賃貸オフィス物件です。これらの特徴を活かし、ビジネスの拠点としての利用をご検討されてはいかがでしょうか。
自分で探すより問い合わせる方が早いことがあります
WEB非公開物件があるから
オーナー様のご希望により「WEBでは非公開」にしている物件があります。 それらはWEBでいくら検索しても見つかりません。 先ずは条件などお知らせ頂けましたら非公開物件含め ピッタリのオフィスをご提案させて頂きます。 無理なお勧めはしておりませんので、お気軽にお問い合わせください。
対面でのご相談も受け付けております
ご来店も歓迎です
オフィス移転は社内・社外ともに非公開に行われることが殆どです。そのためアットオフィスでは、基本的に訪問によるコンサルティングを行っておりますが、ご来店の相談も歓迎です。お一人おひとりに親身にご対応させて頂きたい為、要予約とさせて頂いております。ご来店の際は先ずは下記よりご予約下さい。
青山エリアで青山セント・シオンビルに似た条件の物件
読込中...
青山セント・シオンビルと同じ最寄駅の物件
読込中...
| 取扱様態 | 仲介 |
|---|---|
| 取扱会社 | 株式会社 アットオフィス |