スリーアップ西麻布2階の賃貸情報
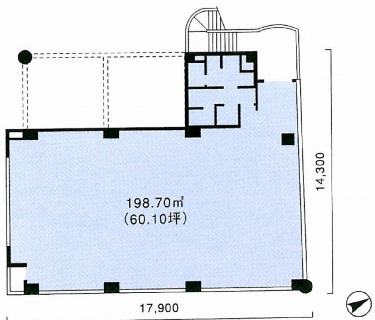
60.1 坪 (198.68m²)
※このサイトに記載がある賃貸条件は、敷金・保証金などの預かり金を除き、別途消費税がかかります。
スリーアップ西麻布の建物概要
設備詳細
| 空調 | 個別空調 |
|---|---|
| トイレ | - |
| 床仕様 | OA対応床(フリーアクセス) |
| エレベータ | 1 基 |
| 駐車場設備 | 空有 |
| その他 | 機械警備 / 新耐震基準 |
スリーアップ西麻布2階の賃貸オフィス・事務所に関するお問い合わせ
スリーアップ西麻布について
スリーアップ西麻布ビル、その名にふさわしい上質なオフィス空間を提供します。1992年に竣工し、新耐震基準に適合したこの物件は、安全性と機能性を兼ね備えた賃貸オフィスとして、ビジネスシーンにおいて最適な環境を提供します。基準階約60坪の広々としたフロアは、あらゆるビジネスニーズに対応する柔軟性と広がりを持っています。また、ワンフロアワンテナントの構成は、プライバシーと独立性を高め、企業のアイデンティティを保ちながら業務を行うのに理想的な環境を提供します。 このビルの最大の魅力は、その立地にあります。港区西麻布、穏やかで落ち着いた住宅街に位置しながら、乃木坂駅から徒歩12分、表参道駅、六本木駅も徒歩圏内というアクセスの良さ。ビジネスシーンの中心地への移動が容易でありながら、静かな環境で集中して仕事ができる理想的な立地条件を備えています。徒歩4分の場所にコンビニがあり、日々の便利さも抜群です。 エレベーターは設置されていないものの、3階建てのこのビルは、パネル張りのスタイリッシュな外観が特徴で、ビル内は階段を使用しての移動となります。これは、健康的なライフスタイルを促進するとともに、日常の運動不足を解消する一助ともなり得ます。また、ビル内に駐車場が完備されており、車での通勤やビジネス用途にも対応しています。 スリーアップ西麻布ビルは、その安全性、機能性、立地の良さを兼ね備え、ビジネスの成功をサポートする理想的なオフィス空間です。西麻布という港区の中心地にありながら、魅力的な価格帯で提供されるこの物件は、企業の成長と発展を強力に後押しします。ビジネスの新しい拠点として、ぜひ一度ご検討ください。
スリーアップ西麻布のこだわり
その他の区画
| 階数 | 坪数 | 賃料 + 共益費 | 敷金/礼金敷金 礼金 | 検討 |
|---|---|---|---|---|
| 1階 | 59.83坪 (197.8m²) | 1,189,917円 (坪:19,887 円) | 5ヶ月 1ヶ月5ヶ月/1ヶ月 |
自分で探すより問い合わせる方が早いことがあります
WEB非公開物件があるから
オーナー様のご希望により「WEBでは非公開」にしている物件があります。 それらはWEBでいくら検索しても見つかりません。 先ずは条件などお知らせ頂けましたら非公開物件含め ピッタリのオフィスをご提案させて頂きます。 無理なお勧めはしておりませんので、お気軽にお問い合わせください。
対面でのご相談も受け付けております
ご来店も歓迎です
オフィス移転は社内・社外ともに非公開に行われることが殆どです。そのためアットオフィスでは、基本的に訪問によるコンサルティングを行っておりますが、ご来店の相談も歓迎です。お一人おひとりに親身にご対応させて頂きたい為、要予約とさせて頂いております。ご来店の際は先ずは下記よりご予約下さい。
赤坂/六本木/麻布エリアでスリーアップ西麻布に似た条件の物件
読込中...
スリーアップ西麻布と同じ最寄駅の物件
読込中...
| 取扱様態 | 仲介 |
|---|---|
| 取扱会社 | 株式会社 アットオフィス |