※このサイトに記載がある賃貸条件は、敷金・保証金などの預かり金を除き、別途消費税がかかります。
物件情報
設備詳細
| 空調 | 個別空調 |
|---|---|
| トイレ | - |
| 床仕様 | OA対応床(フリーアクセス) |
| エレベータ | 2 基 |
| 駐車場設備 | 空有 / 機械式駐車場 |
| その他 | 機械警備 / 24時間利用可 / 大型ビル / 新耐震基準 / 会議室 |
エヌケイビルの賃貸オフィス・事務所に関するお問い合わせ
エヌケイビルについて
ビルのおすすめポイント エヌケイビルは整形、無柱のレイアウト効率の良いオフィス下落合駅から徒歩2分の駅近物件です。1987年に竣工の耐震オフィスビルです。トイレは男女別になっています。機械警備完備。
自分で探すより問い合わせる方が早いことがあります
WEB非公開物件があるから
オーナー様のご希望により「WEBでは非公開」にしている物件があります。 それらはWEBでいくら検索しても見つかりません。 先ずは条件などお知らせ頂けましたら非公開物件含め ピッタリのオフィスをご提案させて頂きます。 無理なお勧めはしておりませんので、お気軽にお問い合わせください。
WEBから条件問い合わせをする(無料)
対面でのご相談も受け付けております
ご来店も歓迎です
オフィス移転は社内・社外ともに非公開に行われることが殆どです。そのためアットオフィスでは、基本的に訪問によるコンサルティングを行っておりますが、ご来店の相談も歓迎です。お一人おひとりに親身にご対応させて頂きたい為、要予約とさせて頂いております。ご来店の際は先ずは下記よりご予約下さい。
来店予約をする
募集終了のテナント区画
| 階数 | 坪数 | 賃料 + 共益費 | 敷金/礼金敷金 礼金 | 検討 |
|---|---|---|---|---|
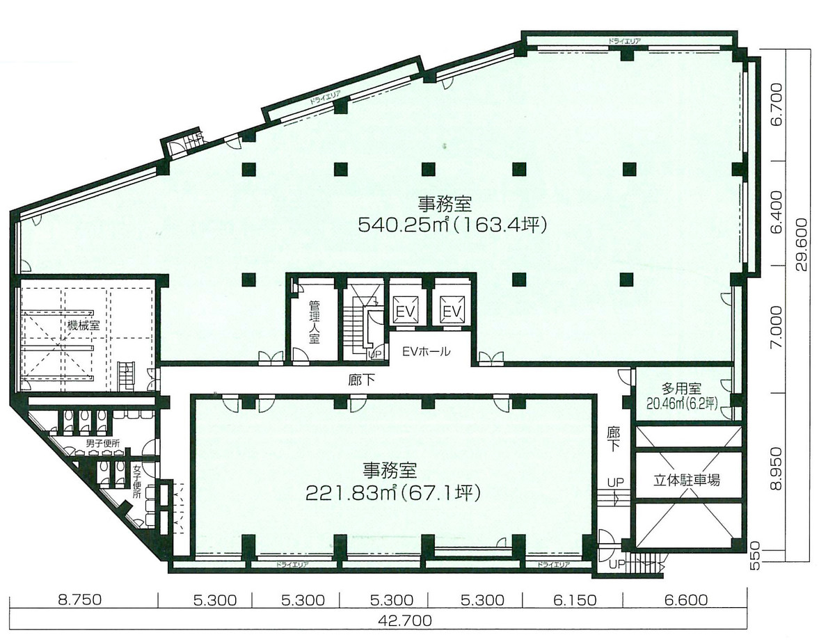
| B1階 | 163.4坪 (540.16m²) | 募集終了 | - | - |
| B1階 | 67.1坪 (221.81m²) | 募集終了 | - | - |
| B1階 | 230.5坪 (761.98m²) | 募集終了 | - | - |
| B1階 | 61.23坪 (202.4m²) | 募集終了 | - | - |
| 1階 | 150坪 (495.86m²) | 募集終了 | - | - |
| 1階 | 47.6坪 (157.35m²) | 募集終了 | - | - |
| 1階 | 197.6坪 (653.22m²) | 募集終了 | - | - |
| 2階 | 45.4坪 (150.08m²) | 募集終了 | - | - |
| 2階 | 174.8坪 (577.85m²) | 募集終了 | - | - |
| 2階 | 220.2坪 (727.93m²) | 募集終了 | - | - |
| 3階 | 32.3坪 (106.77m²) | 募集終了 | - | - |
| 3階 | 61.8坪 (204.3m²) | 募集終了 | - | - |
| 4階 | 61.2坪 (202.31m²) | 募集終了 | - | - |
| 5階 | 61.2坪 (202.31m²) | 募集終了 | - | - |
| 6階 | 61.2坪 (202.31m²) | 募集終了 | - | - |
| 7階 | 61.2坪 (202.31m²) | 募集終了 | - | - |
| 8階 | 61.23坪 (202.4m²) | 募集終了 | - | - |
読込中...
大久保/高田馬場エリアでエヌケイビルに似た条件の物件
読込中...
| 取扱様態 | 仲介 |
|---|---|
| 取扱会社 | 株式会社 アットオフィス |