バルコ御成門ビル8階の賃貸情報
26.53 坪 (87.71m²)
464,275円 (坪:17,500 円)
※このサイトに記載がある賃貸条件は、敷金・保証金などの預かり金を除き、別途消費税がかかります。
バルコ御成門ビルの建物概要
設備詳細
| 空調 | 個別空調 |
|---|---|
| トイレ | 男女別トイレ室内 |
| 床仕様 | OA対応床(フリーアクセス) |
| エレベータ | 1 基 |
| 駐車場設備 | - |
| その他 | 機械警備 / 24時間利用可 / 光ファイバー / 新耐震基準 |
部屋の雰囲気
室内写真1
室内写真2
室内写真3
トイレ
水周り
バルコ御成門ビル8階の賃貸オフィス・事務所に関するお問い合わせ
バルコ御成門ビルについて
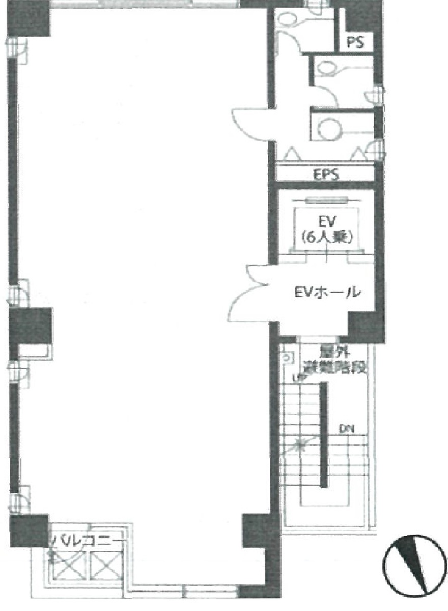
バルコ御成門(港区芝公園)は、1992年に竣工された地上9階建ての賃貸オフィスビルです。その最大の魅力は、都営三田線「御成門駅」から徒歩約1分という抜群のアクセスにあります。さらに、大門駅や浜松町駅も徒歩圏内にあるため、京浜東北線・山手線・大江戸線・浅草線と、4つの路線を利用可能です。ビジネスを行う上で、このような多方面からのアクセスの良さは、日々の通勤はもちろん、クライアントとの打ち合わせなどでの移動の利便性を大きく向上させます。 バルコ御成門は、ワンフロア25坪程度のレイアウトが可能なオフィススペースを提供しています。各階には、個別空調とOAフロアが完備され、快適なオフィス環境を整えることができます。また、男女別トイレや給湯スペースが貸室内に設置されており、日常のオフィスライフをより快適に過ごすことができます。特に、トイレは最近リニューアルされたばかりで、清潔感に溢れています。 セキュリティ面でも安心して利用できるよう、機械警備システムが導入されており、24時間入退館が可能です。これにより、時間を気にすることなくビジネスを行うことができます。エレベーターも1基(6人乗り)完備されており、スムーズな移動を支えます。 バルコ御成門周辺には、飲食店や港区役所などが立ち並び、日々のランチタイムやアフター5を充実させることができます。また、少し足を伸ばせば日比谷通りに出ることができ、都心へのアクセスも容易です。 オフィス内部は、長方形の間取りでレイアウトがしやすく、OAフロアを使用していますので、様々なオフィスレイアウトに対応可能です。天井高2400mmとゆとりがあり、開放感のあるオフィス空間を実現しています。 バルコ御成門は、その立地の良さ、機能的なオフィス環境、そして周辺環境の充実さが魅力の賃貸オフィスビルです。ビジネスの拠点として、また新たな一歩を踏み出す企業様に最適な環境をご提供します。お問い合わせをお待ちしております。
自分で探すより問い合わせる方が早いことがあります
WEB非公開物件があるから
オーナー様のご希望により「WEBでは非公開」にしている物件があります。 それらはWEBでいくら検索しても見つかりません。 先ずは条件などお知らせ頂けましたら非公開物件含め ピッタリのオフィスをご提案させて頂きます。 無理なお勧めはしておりませんので、お気軽にお問い合わせください。
対面でのご相談も受け付けております
ご来店も歓迎です
オフィス移転は社内・社外ともに非公開に行われることが殆どです。そのためアットオフィスでは、基本的に訪問によるコンサルティングを行っておりますが、ご来店の相談も歓迎です。お一人おひとりに親身にご対応させて頂きたい為、要予約とさせて頂いております。ご来店の際は先ずは下記よりご予約下さい。
近くのエリアで探してみる
浜松町/田町/芝公園エリアでバルコ御成門ビルに似た条件の物件
読込中...
バルコ御成門ビルと同じ最寄駅の物件
読込中...
| 取扱様態 | 仲介 |
|---|---|
| 取扱会社 | 株式会社 アットオフィス |