TRANS-恵比寿の賃料条件
| 階数 | 坪数 | 賃料 + 共益費 | 敷金/礼金敷金 礼金 | 検討 |
|---|---|---|---|---|
| 2階 | 21.95坪 (72.56m²) | 750,010円 (坪:34,169 円) | 4ヶ月 無4ヶ月/無 | |
| 3階 | 21.95坪 (72.59m²) | 799,990円 (坪:36,446 円) | 4ヶ月 1ヶ月4ヶ月/1ヶ月 | |
| 4階 | 21.95坪 (72.56m²) | 865,850円 (坪:39,446 円) | 4ヶ月 無4ヶ月/無 |
※このサイトに記載がある賃貸条件は、敷金・保証金などの預かり金を除き、別途消費税がかかります。
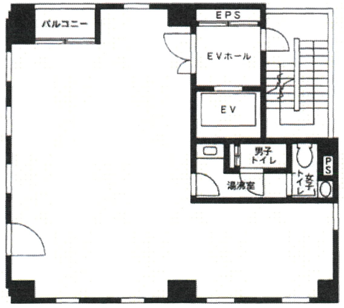
物件情報
設備詳細
| 空調 | 個別空調 |
|---|---|
| トイレ | 男女別トイレ室内 |
| 床仕様 | - |
| エレベータ | 1 基 |
| 駐車場設備 | - |
| その他 | 機械警備 / 24時間利用可 / 新耐震基準 / セットアップ / 居抜き / フリーレント |
TRANS-恵比寿の賃貸オフィス・事務所に関するお問い合わせ
TRANS-恵比寿について
渋谷区東3丁目に位置するKHOビルは、東京のビジネスの中心地にあるオフィスビルの中でも特に魅力的な物件です。このビルは、恵比寿駅から徒歩9分というアクセスの良さを誇りますが、その立地条件からは想像もつかないほどの静かで落ち着いた環境に囲まれています。そのため、クリエイティブな仕事をする企業や、集中して作業を進めたい個人事業主の方にとって最適なスペースと言えるでしょう。 KHOビルは、エレベーターを1機備え、各フロアには男女別トイレが設置されており、利便性と快適性を兼ね備えています。外観は、洋風テイストのデザインで、高級感あふれる御影石をふんだんに使用しており、訪れる人々に良い印象を与えます。また、明治通り沿いに立地しているため、非常に高い視認性を誇ります。これらの特徴から、企業のブランドイメージを向上させたいと考えている企業にとっても理想的なオフィススペースとなります。 さらに、この物件は恵比寿駅だけでなく、渋谷駅からも徒歩14分という立地にあります。渋谷駅は、東京メトロ銀座線・半蔵門線・副都心線、JR山手線・埼京線・成田エクスプレス・湘南新宿ライン、東急東横線・田園都市線といった多数の路線が乗り入れる交通の要所です。これにより、都内はもちろん、東京都外からのアクセスも非常に便利となり、ビジネスの拠点としては最適な環境を提供します。 KHOビルが提供するこのような環境は、企業の成長を促進し、従業員の満足度を高めることにも繋がります。ビルの立地、デザイン、設備、アクセスの良さなど、すべてが高いレベルでバランスを取れており、企業が長期的に安心して利用できるオフィススペースと言えるでしょう。 そのため、KHOビルは、新しいオフィスを検討しているすべての企業にとって、見逃せない物件です。このビルでビジネスの新たな一歩を踏み出し、成功への道を切り拓いてください。お問い合わせをお待ちしております。
TRANS-恵比寿のこだわり
自分で探すより問い合わせる方が早いことがあります
WEB非公開物件があるから
オーナー様のご希望により「WEBでは非公開」にしている物件があります。 それらはWEBでいくら検索しても見つかりません。 先ずは条件などお知らせ頂けましたら非公開物件含め ピッタリのオフィスをご提案させて頂きます。 無理なお勧めはしておりませんので、お気軽にお問い合わせください。
対面でのご相談も受け付けております
ご来店も歓迎です
オフィス移転は社内・社外ともに非公開に行われることが殆どです。そのためアットオフィスでは、基本的に訪問によるコンサルティングを行っておりますが、ご来店の相談も歓迎です。お一人おひとりに親身にご対応させて頂きたい為、要予約とさせて頂いております。ご来店の際は先ずは下記よりご予約下さい。
募集終了のテナント区画
| 階数 | 坪数 | 賃料 + 共益費 | 敷金/礼金敷金 礼金 | 検討 |
|---|---|---|---|---|
| 1階 | 21.96坪 (72.59m²) | 募集終了 | - | - |
読込中...
渋谷エリアでTRANS-恵比寿に似た条件の物件
読込中...
| 取扱様態 | 仲介 |
|---|---|
| 取扱会社 | 株式会社 アットオフィス |