渋谷第一生命ビルの賃料条件
| 階数 | 坪数 | 賃料 + 共益費 | 敷金/礼金敷金 礼金 | 検討 |
|---|---|---|---|---|
| 3階 | 16.86坪 (55.73m²) | お問合せ下さい (坪:-) | 相談 無相談/無 | |
| 6階 | 69.28坪 (229.02m²) | お問合せ下さい (坪:-) | 12ヶ月 無12ヶ月/無 |
※このサイトに記載がある賃貸条件は、敷金・保証金などの預かり金を除き、別途消費税がかかります。
物件情報
設備詳細
| 空調 | 個別空調 / セントラル空調 |
|---|---|
| トイレ | 男女別トイレ室外 |
| 床仕様 | OA対応床(2way/3way) |
| エレベータ | 2 基 |
| 駐車場設備 | 空無 |
| その他 | 機械警備 / 光ファイバー / 居抜き |
渋谷第一生命ビルの賃貸オフィス・事務所に関するお問い合わせ
渋谷第一生命ビルについて
渋谷第一生命ビルディングは、東京都渋谷区渋谷3丁目に位置する賃貸オフィスビルであり、渋谷駅から徒歩5分という抜群のアクセスを誇ります。このビルは、1979年に建設された地上10階建ての物件であり、現代の新耐震基準にも適合しているため、テナント企業への安心を提供します。 オフィスとしての魅力は多岐にわたります。基準階坪数は160坪で、約15坪からの小規模な区画分割も可能であり、様々な規模の企業が利用しやすい環境を有しています。各オフィス空間は、冷暖房や換気設備が完備されており、快適なワークスペースを実現します。また、ビル内には2基のエレベーターが設置されており、スムーズな移動が可能です。 ビルの1階には、ローソンとカフェ・ド・クリエが入居しており、オフィスワーカーの日常生活に便利なサービスを提供します。さらに、機械式駐車場が併設されているため、車を利用した通勤やビジネス用途にも対応可能です。 立地面では、渋谷駅が最寄り駅であるだけでなく、渋谷ヒカリエまで徒歩4分という利便性を誇ります。明治通りに面しており、周辺には飲食店が豊富に存在し、ビジネスチャンスや就業後のリラックスタイムにも最適な環境です。 渋谷第一生命ビルディングは、今後の渋谷駅周辺の大規模開発とともに、更なる価値向上が見込まれるエリアに位置しています。そのため、ビジネスの拠点として考える企業にとって、将来性と現状の利便性を兼ね備えた魅力的な選択肢となり得るでしょう。 このビルは、安全性、利便性、快適性を兼ね備えたオフィス空間として、様々な業種の企業にとって最適なソリューションを提供します。渋谷第一生命ビルディングは、ビジネスの成功を支えるための確かな選択肢です。
渋谷第一生命ビルのこだわり
自分で探すより問い合わせる方が早いことがあります
WEB非公開物件があるから
オーナー様のご希望により「WEBでは非公開」にしている物件があります。 それらはWEBでいくら検索しても見つかりません。 先ずは条件などお知らせ頂けましたら非公開物件含め ピッタリのオフィスをご提案させて頂きます。 無理なお勧めはしておりませんので、お気軽にお問い合わせください。
対面でのご相談も受け付けております
ご来店も歓迎です
オフィス移転は社内・社外ともに非公開に行われることが殆どです。そのためアットオフィスでは、基本的に訪問によるコンサルティングを行っておりますが、ご来店の相談も歓迎です。お一人おひとりに親身にご対応させて頂きたい為、要予約とさせて頂いております。ご来店の際は先ずは下記よりご予約下さい。
募集終了のテナント区画
| 階数 | 坪数 | 賃料 + 共益費 | 敷金/礼金敷金 礼金 | 検討 |
|---|---|---|---|---|
| 1階 | 87.86坪 (290.46m²) | 募集終了 | - | - |
| 2階 | 67.01坪 (221.53m²) | 募集終了 | - | - |
| 2階 | 91.56坪 (302.69m²) | 募集終了 | - | - |
| 3階 | 51.49坪 (170.21m²) | 募集終了 | - | - |
| 3階 | 24.36坪 (80.52m²) | 募集終了 | - | - |
| 3階 | 69.28坪 (229.01m²) | 募集終了 | - | - |
| 4階 | 93.63坪 (309.53m²) | 募集終了 | - | - |
| 4階 | 24.36坪 (80.52m²) | 募集終了 | - | - |
| 5階 | 144.19坪 (476.03m²) | 募集終了 | - | - |
| 5階 | 75.84坪 (250.71m²) | 募集終了 | - | - |
| 5階 | 68.34坪 (225.93m²) | 募集終了 | - | - |
| 5階 | 17.79坪 (58.81m²) | 募集終了 | - | - |
| 7階 | 18坪 (59.5m²) | 募集終了 | - | - |
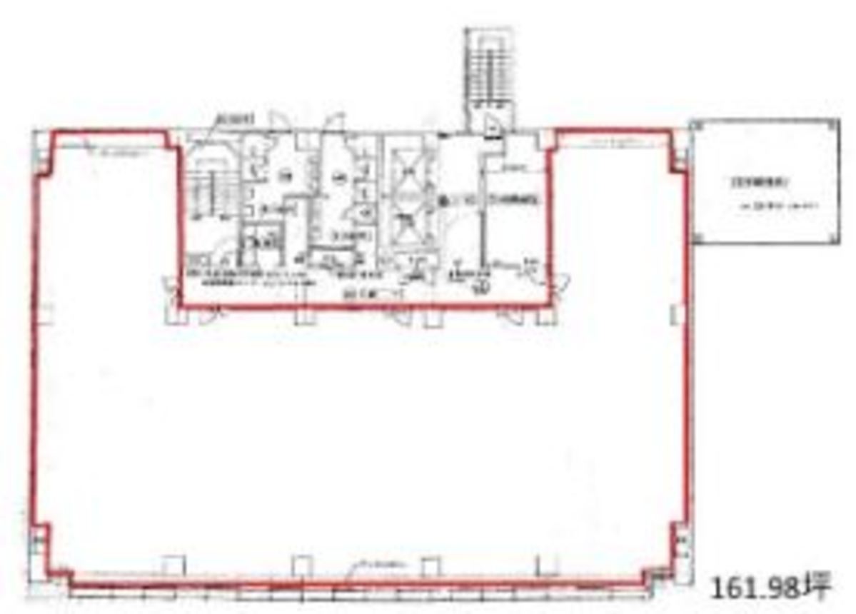
| 7階 | 161.98坪 (535.46m²) | 募集終了 | - | - |
読込中...
渋谷エリアで渋谷第一生命ビルに似た条件の物件
読込中...
| 取扱様態 | 仲介 |
|---|---|
| 取扱会社 | 株式会社 アットオフィス |