※このサイトに記載がある賃貸条件は、敷金・保証金などの預かり金を除き、別途消費税がかかります。
物件情報
設備詳細
| 空調 | - |
|---|---|
| トイレ | - |
| 床仕様 | - |
| エレベータ | 3 基 |
| 駐車場設備 | 機械式駐車場 |
| その他 | 機械警備 / 大型ビル / 光ファイバー / 新耐震基準 |
THE PARKの賃貸オフィス・事務所に関するお問い合わせ
THE PARKについて
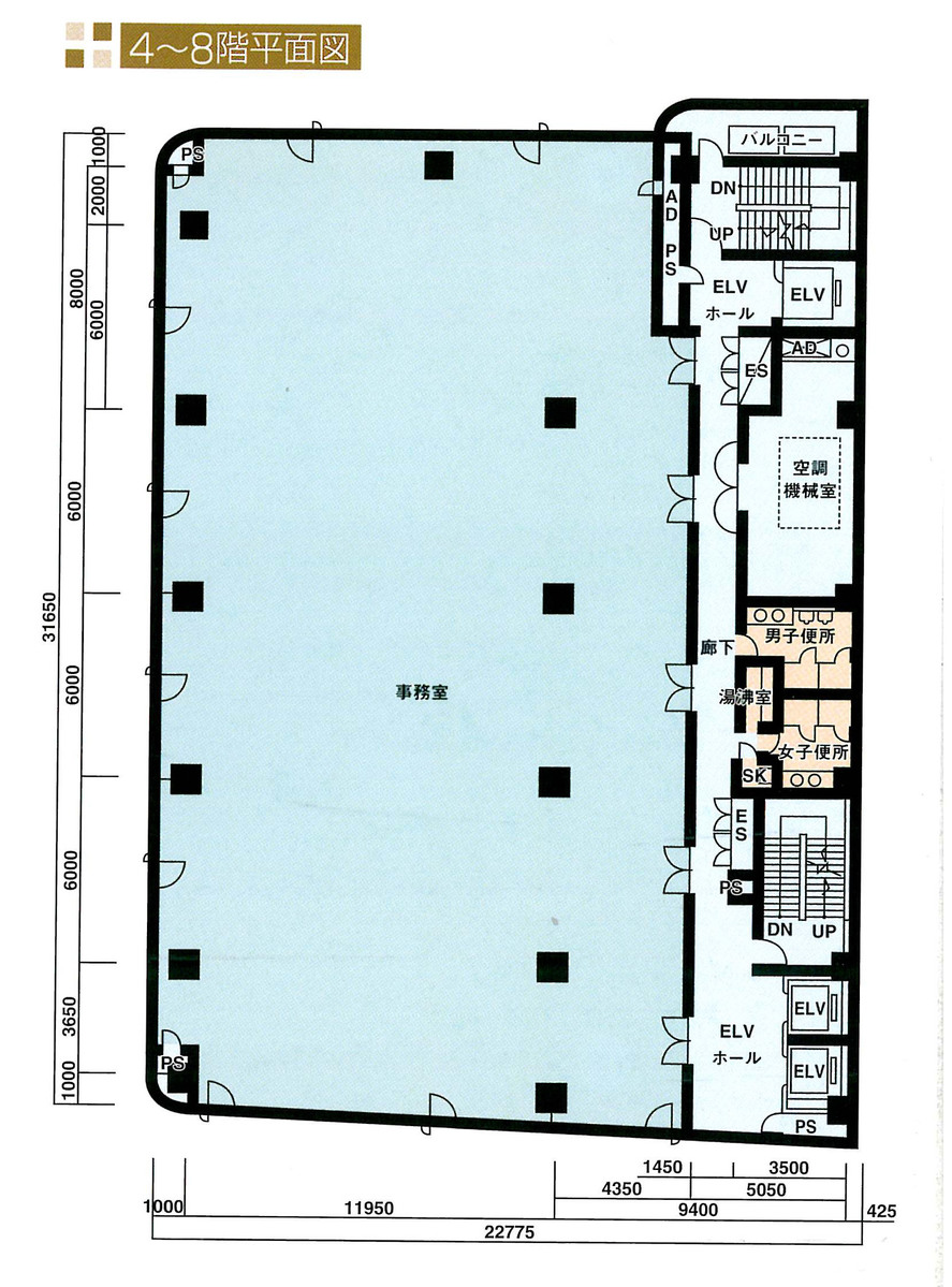
ご紹介するのは、台東区上野2丁目に位置する「JTB・損保ジャパン上野共同ビル」です。このビルは1987年に竣工された耐震性に優れたオフィスビルであり、その立地、設備、そして周辺環境は、ビジネスの拠点として最適な条件を兼ね備えています。 まず、立地について触れさせていただきます。このビルは上野広小路駅から徒歩わずか1分という、まさに駅近の物件です。さらに、3駅以上を利用可能な好立地にあります。JR御徒町駅からも徒歩4分と、複数の交通網にアクセスしやすいことは、ビジネスを展開する上で大きな利点となります。都心へのアクセスの良さは、日々の通勤はもちろん、お客様や取引先との打ち合わせにも非常に便利な環境を提供します。 次に、ビルの設備について詳しくご紹介します。ビル内には月極駐車場が設けられており、機械警備も完備されています。これにより、高いセキュリティと利便性を実現しています。エレベーターは合計で3機設置されており、そのうちの2機はエントランスホールに、もう1機は荷物用として裏手に配置されています。これにより、ビルの利用者はスムーズに移動が可能となります。 ビルの周辺環境も見逃せません。上野恩賜公園が近くにあり、春の桜や秋の紅葉など、四季折々の自然を楽しむことができます。また、御徒町方面に向かえば、アメ横商店街があり、飲食店やショッピングを楽しむことができます。ビジネスだけでなく、リフレッシュの場としても最適な環境です。 ビル内のテナントとしては、1階にJTBの店舗が入居しており、地階にはしゃぶしゃぶと日本料理のお店があります。これにより、ビルを利用する従業員や訪問客にとって、食事や国内外の旅行手配など、日常生活に必要なサービスが身近に提供されます。 「JTB・損保ジャパン上野共同ビル」は、その立地の良さ、充実した設備、そして周辺環境の豊かさが魅力のビルです。ビジネスの拠点としてはもちろん、従業員の働きやすさや訪問客の快適さも考慮された、理想的なオフィス環境を提供しています。ビジネスチャンスを広げ、日々の業務をより効率的に遂行したい企業様に、ぜひ一度、ご内見いただきたい物件です。
自分で探すより問い合わせる方が早いことがあります
WEB非公開物件があるから
オーナー様のご希望により「WEBでは非公開」にしている物件があります。 それらはWEBでいくら検索しても見つかりません。 先ずは条件などお知らせ頂けましたら非公開物件含め ピッタリのオフィスをご提案させて頂きます。 無理なお勧めはしておりませんので、お気軽にお問い合わせください。
対面でのご相談も受け付けております
ご来店も歓迎です
オフィス移転は社内・社外ともに非公開に行われることが殆どです。そのためアットオフィスでは、基本的に訪問によるコンサルティングを行っておりますが、ご来店の相談も歓迎です。お一人おひとりに親身にご対応させて頂きたい為、要予約とさせて頂いております。ご来店の際は先ずは下記よりご予約下さい。
募集終了のテナント区画
| 階数 | 坪数 | 賃料 + 共益費 | 敷金/礼金敷金 礼金 | 検討 |
|---|---|---|---|---|
| 2階 | 100.19坪 (331.21m²) | 募集終了 | - | - |
| 2階 | 47.19坪 (156m²) | 募集終了 | - | - |
| 3階 | 29.43坪 (97.29m²) | 募集終了 | - | - |
| 3階 | 38.16坪 (126.15m²) | 募集終了 | - | - |
| 3階 | 60.82坪 (201.08m²) | 募集終了 | - | - |
| 3階 | 31.4坪 (103.8m²) | 募集終了 | - | - |
| 4階 | 31.4坪 (103.8m²) | 募集終了 | - | - |
| 4階 | 31.4坪 (103.8m²) | 募集終了 | - | - |
| 4階 | 75.52坪 (249.68m²) | 募集終了 | - | - |
| 5階 | 122.09坪 (403.6m²) | 募集終了 | - | - |
| 5階 | 164.01坪 (542.18m²) | 募集終了 | - | - |
| 5階 | 62.8坪 (207.6m²) | 募集終了 | - | - |
| 5階 | 57.08坪 (188.7m²) | 募集終了 | - | - |
| 5階 | 44.12坪 (145.88m²) | 募集終了 | - | - |
| 6階 | 52.21坪 (172.6m²) | 募集終了 | - | - |
| 6階 | 33.6坪 (111.07m²) | 募集終了 | - | - |
| 6階 | 41.92坪 (138.57m²) | 募集終了 | - | - |
| 7階 | 74.23坪 (245.39m²) | 募集終了 | - | - |
| 7階 | 164.01坪 (542.19m²) | 募集終了 | - | - |
| 8階 | 57.68坪 (190.68m²) | 募集終了 | - | - |
| 8階 | 74.93坪 (247.71m²) | 募集終了 | - | - |
読込中...
上野/台東/東上野エリアでTHE PARKに似た条件の物件
読込中...
| 取扱様態 | 仲介 |
|---|---|
| 取扱会社 | 株式会社 アットオフィス |