モデューロ浜松町の賃料条件
| 階数 | 坪数 | 賃料 + 共益費 | 敷金/礼金敷金 礼金 | 検討 |
|---|---|---|---|---|
| 3階 | 26.87坪 (88.85m²) | お問合せ下さい (坪:-) | 5ヶ月 1ヶ月5ヶ月/1ヶ月 | |
| 5階 | 25.96坪 (85.84m²) | お問合せ下さい (坪:-) | 5ヶ月 1ヶ月5ヶ月/1ヶ月 |
※このサイトに記載がある賃貸条件は、敷金・保証金などの預かり金を除き、別途消費税がかかります。
物件情報
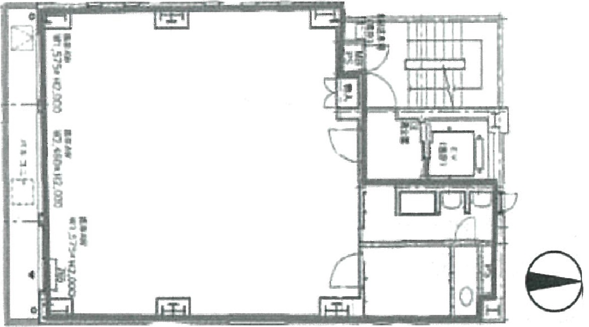
設備詳細
| 空調 | 個別空調 |
|---|---|
| トイレ | 男女別トイレ室内 |
| 床仕様 | OA対応床(2way/3way) |
| エレベータ | 1 基 |
| 駐車場設備 | - |
| その他 | 機械警備 / 24時間利用可 / 光ファイバー / 新耐震基準 / オフィス居抜き特集 / 居抜き |
モデューロ浜松町の賃貸オフィス・事務所に関するお問い合わせ
モデューロ浜松町について
モデューロ浜松町ビルは、1988年に竣工された地上7階建ての賃貸オフィスビルです。この物件は東京都港区浜松町1丁目に位置しており、都心のビジネスエリア内にあることから、企業のオフィス立地に最適な環境を提供します。物件の最寄り駅は大門駅であり、浜松町駅、御成門駅、汐留駅も徒歩圏内に位置しています。これにより、都内各地へのアクセスが容易であり、出張やビジネスミーティングへの移動に便利です。 ビルの基準階面積は約25坪で、ワンフロア全体を利用することで、効率的なオフィスレイアウトが可能です。また、ビル内にはエレベーターが1基設置されており、各階へのアクセスはスムーズです。セキュリティ体制も整っており、機械警備システムにより24時間体制で安全が確保されています。さらに、オフィスは24時間利用可能であるため、様々な業種の企業が働き方に合わせてオフィスを使用することができます。 ビルのデザインは、イタリア街の雰囲気を感じさせる外観で、周囲の景観とも調和しています。ビル内部は、給湯スペースや個室トイレ、洗面台などの設備が整えられており、快適なオフィス環境を提供します。ビルの立地するエリアはオフィス街であり、周辺にはコンビニやスーパーマーケット、郵便局などの生活に必要な施設が充実しています。 モデューロ浜松町ビルは、新耐震基準に対応しており、耐震性にも配慮された建築物です。このことは、企業にとって従業員の安全を確保する上で大きなメリットとなります。また、レイアウトの自由度の高さや、立地の良さ、充実した設備など、ビジネスの効率化と快適なワークスペースの両方を求める企業にとって、魅力的な選択肢の一つです。 総じて、モデューロ浜松町ビルは、アクセスの良さ、安全性、快適なオフィス環境を提供する、都心でのビジネス拠点として最適な物件です。企業が成長を続けるにつれて、オフィス環境の重要性が増してきています。このビルは、そのようなニーズに応えるための質の高いサービスを提供します。
モデューロ浜松町のこだわり
自分で探すより問い合わせる方が早いことがあります
WEB非公開物件があるから
オーナー様のご希望により「WEBでは非公開」にしている物件があります。 それらはWEBでいくら検索しても見つかりません。 先ずは条件などお知らせ頂けましたら非公開物件含め ピッタリのオフィスをご提案させて頂きます。 無理なお勧めはしておりませんので、お気軽にお問い合わせください。
対面でのご相談も受け付けております
ご来店も歓迎です
オフィス移転は社内・社外ともに非公開に行われることが殆どです。そのためアットオフィスでは、基本的に訪問によるコンサルティングを行っておりますが、ご来店の相談も歓迎です。お一人おひとりに親身にご対応させて頂きたい為、要予約とさせて頂いております。ご来店の際は先ずは下記よりご予約下さい。
募集終了のテナント区画
| 階数 | 坪数 | 賃料 + 共益費 | 敷金/礼金敷金 礼金 | 検討 |
|---|---|---|---|---|
| B1-1階 | 40.97坪 (135.44m²) | 募集終了 | - | - |
読込中...
近くのエリアで探してみる
浜松町/田町/芝公園エリアでモデューロ浜松町に似た条件の物件
読込中...
| 取扱様態 | 仲介 |
|---|---|
| 取扱会社 | 株式会社 アットオフィス |