※このサイトに記載がある賃貸条件は、敷金・保証金などの預かり金を除き、別途消費税がかかります。
物件情報
設備詳細
| 空調 | 個別空調 |
|---|---|
| トイレ | - |
| 床仕様 | - |
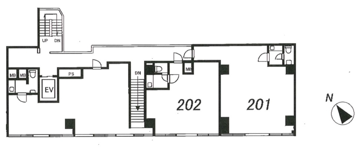
| エレベータ | 1 基 |
| 駐車場設備 | - |
| その他 | 新耐震基準 / 保証金・敷金+礼金が3か月以下 / フリーレント |
セブンスターマンション第2青葉台の賃貸オフィス・事務所に関するお問い合わせ
セブンスターマンション第2青葉台について
【セブンスター第2青葉台ビルの詳細解説】 セブンスター第2青葉台ビルは、東京都目黒区青葉台1丁目に位置する、ビジネス利用に最適なSOHO・事務所利用が相談可能なマンションオフィスです。この物件は、山手通りに面しており、非常に高い視認性を誇ります。ビルの立地や設備について、専門的な視点からその特徴と魅力を詳細に解説していきます。 ### 立地の特徴 セブンスター第2青葉台ビルの最大の魅力はその立地にあります。山手通りに面し、交通の便が非常に良好です。近隣には多くの商業施設が立ち並び、日々の業務に必要なサービスがすぐに手に入る環境です。また、目黒区は多くの企業がオフィスを構え、ビジネスチャンスが豊富なエリアとしても知られています。周辺エリアの相場感としては、一定の高級感を保ちつつも、比較的リーズナブルな価格設定が魅力で、スタートアップ企業から大手企業まで幅広いニーズに応える地域と言えるでしょう。 ### 設備の特徴 ビル内は、1基のエレベーターが設置されており、スムーズな移動が可能です。SOHOや事務所としての利用を想定しているため、インターネット環境やセキュリティシステムも充実しています。また、視認性の高い立地を活かした広告や看板の設置も可能で、事業の認知度向上に寄与します。物件自体も管理が行き届いており、快適なビジネス環境を提供しています。 ### ビジネス利点 このビルのビジネスにおける利点は、立地の良さに加え、柔軟な事務所利用が可能である点にあります。特に新規事業やスタートアップにとって、初期コストを抑えつつ、都心部にオフィスを構えることができるのは大きなメリットです。また、山手通りに面しているため、企業のブランドイメージ向上にも寄与する可能性があります。 ### まとめ セブンスター第2青葉台ビルは、その優れた立地条件とビジネス利用に適した設備が整っていることから、多くの企業にとって魅力的な選択肢と言えるでしょう。目黒区における事務所やSOHOの需要が高まっている中、この物件は多くのビジネスオーナーや起業家にとって、非常に価値のある選択となるはずです。
セブンスターマンション第2青葉台のこだわり
自分で探すより問い合わせる方が早いことがあります
WEB非公開物件があるから
オーナー様のご希望により「WEBでは非公開」にしている物件があります。 それらはWEBでいくら検索しても見つかりません。 先ずは条件などお知らせ頂けましたら非公開物件含め ピッタリのオフィスをご提案させて頂きます。 無理なお勧めはしておりませんので、お気軽にお問い合わせください。
対面でのご相談も受け付けております
ご来店も歓迎です
オフィス移転は社内・社外ともに非公開に行われることが殆どです。そのためアットオフィスでは、基本的に訪問によるコンサルティングを行っておりますが、ご来店の相談も歓迎です。お一人おひとりに親身にご対応させて頂きたい為、要予約とさせて頂いております。ご来店の際は先ずは下記よりご予約下さい。
募集終了のテナント区画
| 階数 | 坪数 | 賃料 + 共益費 | 敷金/礼金敷金 礼金 | 検討 |
|---|---|---|---|---|
| 2階 | 16.28坪 (53.82m²) | 募集終了 | - | - |
| 2階 | 14.05坪 (46.45m²) | 募集終了 | - | - |
| 2階 | 19.62坪 (64.86m²) | 募集終了 | - | - |
| 7階 | 15.98坪 (52.82m²) | 募集終了 | - | - |
読込中...
近くのエリアで探してみる
目黒/中目黒/青葉台エリアでセブンスターマンション第2青葉台に似た条件の物件
読込中...
| 取扱様態 | 仲介 |
|---|---|
| 取扱会社 | 株式会社 アットオフィス |