※このサイトに記載がある賃貸条件は、敷金・保証金などの預かり金を除き、別途消費税がかかります。
物件情報
設備詳細
| 空調 | 個別空調 |
|---|---|
| トイレ | 男女別トイレ室外 |
| 床仕様 | OA対応床(フリーアクセス) |
| エレベータ | 2 基 |
| 駐車場設備 | 空有 / 機械式駐車場 |
| その他 | 機械警備 / 24時間利用可 / 光ファイバー / 新耐震基準 / 居抜き |
EGビルの賃貸オフィス・事務所に関するお問い合わせ
EGビルについて
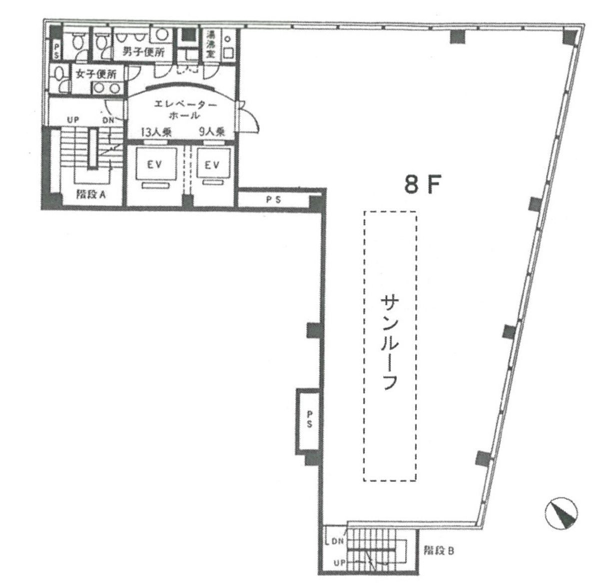
東京都目黒区中目黒に位置するEGビル(旧エバーグリーンビル)は、1993年に竣工された耐震性に優れたモダンなオフィスビルです。このビルは東京メトロ日比谷線及び東急東横線「中目黒駅」から徒歩5分というアクセスの良さを誇ります。交通の利便性と併せて、山手通りに面しているため、都心へのスムーズな移動が可能です。 EGビルの外観は、緑豊かなガラス張りのデザインが特徴的で、都会的なイメージと自然の調和が感じられる設計です。8階建てのこのビルは、約77坪の基準階面積を誇り、各オフィスはL字型の間取りで広々としており、自然光がたっぷりと入る構造になっています。また、ビル内には2基のエレベーターが設置されており、効率的な移動をサポートします。 設備面においてもEGビルは、24時間利用可能な男女別のトイレ、個別空調システム、OAフロア、給湯スペース、洗面台を完備。快適なオフィス環境を提供しています。さらに、ビル内に月極駐車場があり、都心での車通勤が必要なテナントにとっても便利です。 セキュリティ面では、機械警備システムが導入されており、安全なオフィス環境が保たれています。ビルの1階は広々としたエントランスホールがあり、美術館のような雰囲気を演出しています。 周辺環境としては、ビルの向かいにコンビニがあり、日常の買い物には困りません。また、中目黒エリアは飲食店やショッピング施設が豊富で、ビジネス後のリフレッシュにも最適です。自然が豊かで落ち着いたこの地域は、ビジネスとプライベートのバランスを保ちやすいのが魅力です。 中目黒エリアは、不動産市場においても非常に人気が高く、オフィスの需要は安定しています。EGビルはその要求に応える施設として、多くの企業に選ばれている理由がここにあります。新しいビジネスの拠点として、または拡張する企業にとって最適な場所です。
自分で探すより問い合わせる方が早いことがあります
WEB非公開物件があるから
オーナー様のご希望により「WEBでは非公開」にしている物件があります。 それらはWEBでいくら検索しても見つかりません。 先ずは条件などお知らせ頂けましたら非公開物件含め ピッタリのオフィスをご提案させて頂きます。 無理なお勧めはしておりませんので、お気軽にお問い合わせください。
対面でのご相談も受け付けております
ご来店も歓迎です
オフィス移転は社内・社外ともに非公開に行われることが殆どです。そのためアットオフィスでは、基本的に訪問によるコンサルティングを行っておりますが、ご来店の相談も歓迎です。お一人おひとりに親身にご対応させて頂きたい為、要予約とさせて頂いております。ご来店の際は先ずは下記よりご予約下さい。
募集終了のテナント区画
| 階数 | 坪数 | 賃料 + 共益費 | 敷金/礼金敷金 礼金 | 検討 |
|---|---|---|---|---|
| 1階 | 36.82坪 (121.72m²) | 募集終了 | - | - |
| 2階 | 77.73坪 (256.99m²) | 募集終了 | - | - |
| 3階 | 81.44坪 (269.22m²) | 募集終了 | - | - |
| 3階 | 77.73坪 (256.96m²) | 募集終了 | - | - |
| 4階 | 77.73坪 (256.96m²) | 募集終了 | - | - |
| 6階 | 77.73坪 (256.99m²) | 募集終了 | - | - |
| 7階 | 77.73坪 (256.95m²) | 募集終了 | - | - |
| 8階 | 77.73坪 (256.95m²) | 募集終了 | - | - |
読込中...
近くのエリアで探してみる
目黒/中目黒/青葉台エリアでEGビルに似た条件の物件
読込中...
| 取扱様態 | 仲介 |
|---|---|
| 取扱会社 | 株式会社 アットオフィス |