トレードピアお台場4階の賃貸情報
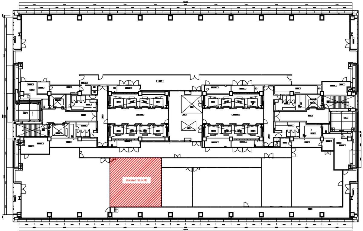
33.14 坪 (109.54m²)
※このサイトに記載がある賃貸条件は、敷金・保証金などの預かり金を除き、別途消費税がかかります。
トレードピアお台場の建物概要
設備詳細
| 空調 | セントラル空調 |
|---|---|
| トイレ | 男女別トイレ |
| 床仕様 | - |
| エレベータ | 19 基 / エレベーター有 |
| 駐車場設備 | 空有 / 機械式駐車場 / 敷地内駐車場 / 平置き駐車場 |
| その他 | 光ファイバー / 機械警備 / 管理人常駐 / 24時間利用可 / 大通り面する / カフェテリア / 大型ビル |
部屋の雰囲気
トレードピアお台場4階の賃貸オフィス・事務所に関するお問い合わせ
トレードピアお台場について
トレードピアお台場は、2001年に竣工した港区台場に位置する地上23階建ての賃貸オフィスビルです。この物件は約649坪の広大な基準階を誇り、高度なレイアウト効率と開放感溢れるオフィス空間を提供します。特に、天井高2,700mmと無柱設計により、快適で柔軟なオフィス環境を実現しています。 立地においては、りんかい線「東京テレポート駅」とゆりかもめ線「お台場海浜公園駅」が徒歩3分圏内にあり、新橋や品川といったビジネスエリアへのアクセスも優れています。また、台場駅も徒歩10分圏内に位置し、ゆりかもめ線を利用して新橋駅へ向かうことも可能です。この便利なアクセスは、ビジネスの効率化に大きく寄与します。 設備面では、24時間入出庫可能な自走式駐車場、8台ずつ配備された高層用・低層用の2バンク乗用エレベーター、セントラル空調、OAフロア、男女別トイレ、貸会議室、貸倉庫など、ビジネス運営に必要な機能が充実しています。また、1階にはファミリーマートがあり、日常の利便性も高めています。 トレードピアお台場の周辺環境も魅力の一つです。フジテレビ、アクアシティお台場、デックス東京ビーチなどの大型施設が立ち並び、多彩な飲食店やショッピング施設を活用することができます。さらに、海辺の公園やファッションモールなど、仕事の合間にリフレッシュできるスポットも豊富です。 耐震性にも優れたこの物件は、新耐震基準を満たし、制震構造を採用しています。ビル内には、19基のエレベーターが設置されており、待ち時間の短縮にも配慮されています。このような特徴と設備は、企業の事業活動をサポートし、効率的で快適なオフィス環境を提供します。 トレードピアお台場は、その立地、設備、そして周辺環境の豊かさにより、多くの企業にとって理想的なオフィススペースと言えます。ビジネスの拠点としての利点を最大限に活かし、新しい働き方を実現する場所として、ぜひご検討ください。
自分で探すより問い合わせる方が早いことがあります
WEB非公開物件があるから
オーナー様のご希望により「WEBでは非公開」にしている物件があります。 それらはWEBでいくら検索しても見つかりません。 先ずは条件などお知らせ頂けましたら非公開物件含め ピッタリのオフィスをご提案させて頂きます。 無理なお勧めはしておりませんので、お気軽にお問い合わせください。
対面でのご相談も受け付けております
ご来店も歓迎です
オフィス移転は社内・社外ともに非公開に行われることが殆どです。そのためアットオフィスでは、基本的に訪問によるコンサルティングを行っておりますが、ご来店の相談も歓迎です。お一人おひとりに親身にご対応させて頂きたい為、要予約とさせて頂いております。ご来店の際は先ずは下記よりご予約下さい。
近くのエリアで探してみる
港南/高輪/白金台/(品川駅)エリアでトレードピアお台場に似た条件の物件
読込中...
トレードピアお台場と同じ最寄駅の物件
読込中...
| 取扱様態 | 仲介 |
|---|---|
| 取扱会社 | 株式会社 アットオフィス |