※このサイトに記載がある賃貸条件は、敷金・保証金などの預かり金を除き、別途消費税がかかります。
物件情報
設備詳細
| 空調 | 個別空調 |
|---|---|
| トイレ | - |
| 床仕様 | - |
| エレベータ | 1 基 |
| 駐車場設備 | 空無 / 機械式駐車場 / 平置き駐車場 |
| その他 | 機械警備 / 24時間利用可 / 光ファイバー / 新耐震基準 |
JS五番町ビルの賃貸オフィス・事務所に関するお問い合わせ
JS五番町ビルについて
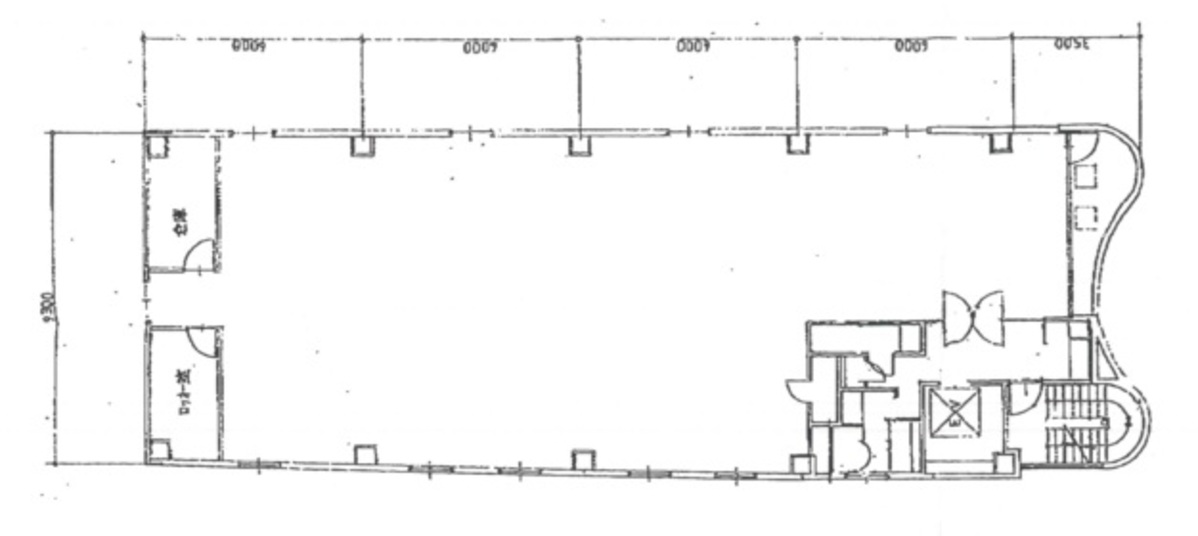
ヒューリック五番町ビルは、千代田区五番町の中心に位置する、都市の喧騒を感じさせない洗練されたオフィスビルです。このビルは2000年に新耐震基準で建設され、現代の安全基準を満たしていることを保証します。施工から20年以上が経過していますが、その品質と機能性は時を超えても不動のものとなっています。 外観は、石作りの高級感あふれるデザインに緑色の差し色を加えたことで、都市のビル群の中でも一際目を引く美しさを持っています。さらに、その丸みを帯びたユニークな形状は、ビルそのものが持つ独自のキャラクターを際立たせ、訪れる人々に強烈な印象を与えます。 立地においても、ヒューリック五番町ビルは群を抜いています。JRや地下鉄の複数路線が利用できる市ヶ谷駅からわずか徒歩3分というアクセスの良さは、ビジネスを展開する上で計り知れない利点となります。移動の利便性は従業員やビジネスパートナーにとっても高い魅力であり、企業のイメージ向上にも寄与するでしょう。 ビル内の設備も充実しています。駐車場がビル内に設けられていることは、車を利用するビジネスパーソンにとって大きなメリットです。また、エレベーターは1機設置されており、快適な移動をサポートします。空き状況など、詳細についてはお問い合わせいただくことで、ニーズに応じた最適なオフィススペースを提供できます。 ヒューリック五番町ビル(旧KDX五番町ビル)は、優れた立地、洗練されたデザイン、安全性、そして利便性を兼ね備えた貸事務所として、あらゆるビジネスの成功をサポートします。このビルを拠点に、企業はさらなる成長と発展を遂げることができるでしょう。
自分で探すより問い合わせる方が早いことがあります
WEB非公開物件があるから
オーナー様のご希望により「WEBでは非公開」にしている物件があります。 それらはWEBでいくら検索しても見つかりません。 先ずは条件などお知らせ頂けましたら非公開物件含め ピッタリのオフィスをご提案させて頂きます。 無理なお勧めはしておりませんので、お気軽にお問い合わせください。
対面でのご相談も受け付けております
ご来店も歓迎です
オフィス移転は社内・社外ともに非公開に行われることが殆どです。そのためアットオフィスでは、基本的に訪問によるコンサルティングを行っておりますが、ご来店の相談も歓迎です。お一人おひとりに親身にご対応させて頂きたい為、要予約とさせて頂いております。ご来店の際は先ずは下記よりご予約下さい。
募集終了のテナント区画
| 階数 | 坪数 | 賃料 + 共益費 | 敷金/礼金敷金 礼金 | 検討 |
|---|---|---|---|---|
| 3階 | 71.24坪 (235.5m²) | 募集終了 | - | - |
| 4階 | 71.24坪 (235.5m²) | 募集終了 | - | - |
| 5階 | 64.49坪 (213.19m²) | 募集終了 | - | - |
| 5階 | 71.24坪 (235.51m²) | 募集終了 | - | - |
| 6階 | 64.49坪 (213.19m²) | 募集終了 | - | - |
| 6階 | 71.39坪 (235.96m²) | 募集終了 | - | - |
| 7階 | 64.49坪 (213.19m²) | 募集終了 | - | - |
| 7階 | 71.24坪 (235.51m²) | 募集終了 | - | - |
| 8階 | 71.24坪 (235.5m²) | 募集終了 | - | - |
読込中...
番町/麹町/平河町エリアでJS五番町ビルに似た条件の物件
読込中...
| 取扱様態 | 仲介 |
|---|---|
| 取扱会社 | 株式会社 アットオフィス |