※このサイトに記載がある賃貸条件は、敷金・保証金などの預かり金を除き、別途消費税がかかります。
物件情報
設備詳細
| 空調 | 個別空調 |
|---|---|
| トイレ | 男女別トイレ / 男女別トイレ室外 |
| 床仕様 | OA対応床(フリーアクセス) |
| エレベータ | 2 基 / エレベーター有 |
| 駐車場設備 | 空有 / 機械式駐車場 / 敷地内駐車場 |
| その他 | 大型ビル / 機械警備 / 24時間利用可 / 省エネ配慮 / 非接触ICカードキー / 屋上庭園 / 新耐震基準 / オフィス居抜き特集 |
A-PLACE恵比寿東の賃貸オフィス・事務所に関するお問い合わせ
A-PLACE恵比寿東について
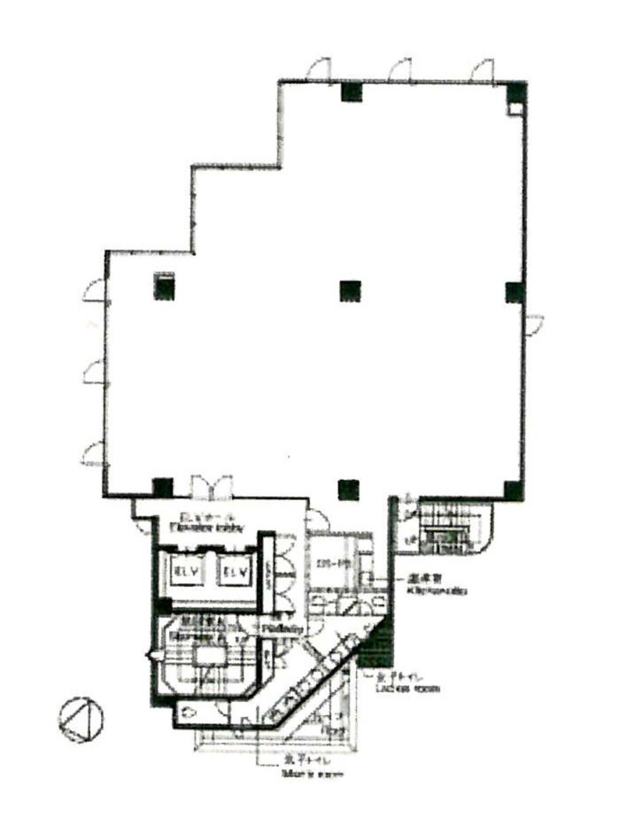
A-PLACE恵比寿東、それはただのオフィスビルではなく、あなたのビジネスを次のレベルへと導くステージです。恵比寿駅から徒歩6分、代官山駅から徒歩11分という、羨望の立地に位置するこのビルは、都市生活の利便性と快適なオフィス環境を見事に融合させています。通勤のストレスが少なく、重要な商談の際にもアクセスの良さが強力なアドバンテージとなります。 A-PLACE恵比寿東の魅力は、その立地だけにあらず。基準階面積193坪、天井高2.5mとゆとりある空間には、3面採光による明るさと開放感が広がります。この窓面の多さは、室内を自然光で満たし、眺望も楽しめることで、作業効率とクリエイティビティの向上を約束します。また、省エネと環境への配慮が行き届いた設備投資も大きな特徴の一つ。エコ部材の使用、電気節約型の空調システム、LED照明、さらには屋上緑化による環境負荷の軽減は、持続可能なビジネス運営を目指す企業にとって理想的な条件を備えています。 2008年の全面リニューアルを経て、A-PLACE恵比寿東は、最新のテクノロジーとデザインが調和したハイグレードなオフィス空間へと生まれ変わりました。個別空調システムやOAフロア、サーバー設置に適した床荷重、そしてセキュリティも最新のICカードシステムを導入。ビジネスの成長を支える強固なインフラが整えられています。 さらに、明治通り沿いに建つこのビルは、周辺に飲食店やコンビニが充実しており、日々の業務をサポートするだけでなく、ビジネスアフターのリフレッシュも期待できます。山手線、埼京線、湘南新宿ライン、日比谷線、東急東横線が利用可能で、都内主要エリアへのアクセスはもちろん、横浜や埼玉への移動も快適です。また、品川駅や羽田空港へのアクセスの良さは、国内外へのビジネス展開を考える企業にとって大きなメリットとなるでしょう。 A-PLACE恵比寿東は、ただ仕事をする場所ではありません。ビジネスの成長を促進し、従業員の幸福を高めるための環境がここにはあります。立地、設傈、デザイン、そして環境への配慮。すべてが高いレベルでバランスを取れており、あなたのビジネスを成功へと導くための最高のパートナーとなるでしょう。
自分で探すより問い合わせる方が早いことがあります
WEB非公開物件があるから
オーナー様のご希望により「WEBでは非公開」にしている物件があります。 それらはWEBでいくら検索しても見つかりません。 先ずは条件などお知らせ頂けましたら非公開物件含め ピッタリのオフィスをご提案させて頂きます。 無理なお勧めはしておりませんので、お気軽にお問い合わせください。
対面でのご相談も受け付けております
ご来店も歓迎です
オフィス移転は社内・社外ともに非公開に行われることが殆どです。そのためアットオフィスでは、基本的に訪問によるコンサルティングを行っておりますが、ご来店の相談も歓迎です。お一人おひとりに親身にご対応させて頂きたい為、要予約とさせて頂いております。ご来店の際は先ずは下記よりご予約下さい。
募集終了のテナント区画
| 階数 | 坪数 | 賃料 + 共益費 | 敷金/礼金敷金 礼金 | 検討 |
|---|---|---|---|---|
| 3階 | 141.85坪 (468.94m²) | 募集終了 | - | - |
| 4階 | 96.14坪 (317.82m²) | 募集終了 | - | - |
読込中...
渋谷エリアでA-PLACE恵比寿東に似た条件の物件
読込中...
| 取扱様態 | 仲介 |
|---|---|
| 取扱会社 | 株式会社 アットオフィス |