※このサイトに記載がある賃貸条件は、敷金・保証金などの預かり金を除き、別途消費税がかかります。
物件情報
設備詳細
| 空調 | - |
|---|---|
| トイレ | - |
| 床仕様 | - |
| エレベータ | 1 基 |
| 駐車場設備 | - |
| その他 | 新耐震基準 / 店舗可(飲食不可) |
神宮前柴田ビルの賃貸オフィス・事務所に関するお問い合わせ
神宮前柴田ビルについて
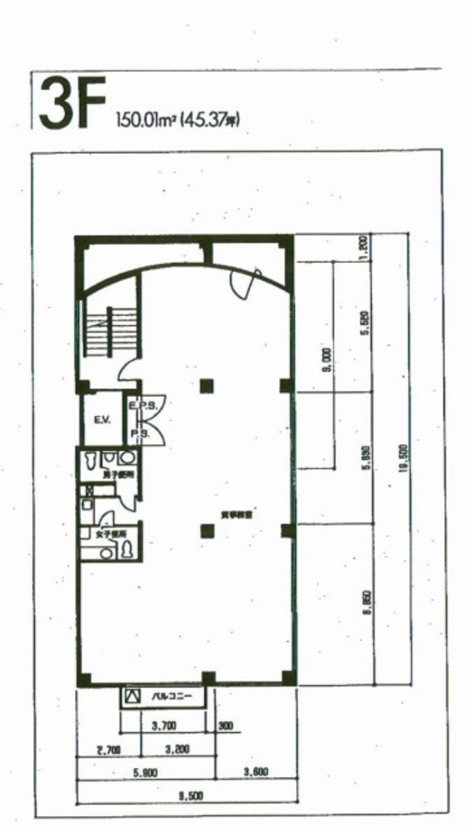
神宮前柴田ビルは、東京の中でも特に活気に満ちた渋谷区神宮前4丁目に位置する、1990年竣工のスタイリッシュなデザインが際立つ賃貸オフィス物件です。こちらのビルは、基準階約45坪の広々としたオフィススペースを提供しており、ビジネスの多様なニーズに対応する柔軟性を備えています。天井高は2450㎜とゆったりとしており、個別空調完備で、オフィス環境を快適に保つことができます。 特に注目すべきは、男女別のトイレが貸室内に設置されている点です。これにより、オフィス内での利便性が大きく向上し、従業員の働きやすさをさらに高めることができます。また、L字型に近い形状の貸室は、一部に柱が設置されており、レイアウトの自由度が高く、クリエイティブなオフィス環境を実現することが可能です。 神宮前柴田ビルの立地は、表参道駅から徒歩5分という抜群のアクセスの良さを誇ります。表参道エリアは、オフィスや店舗が立ち並ぶ、東京を代表するファッショナブルな地域であり、ビジネスチャンスが豊富に転がっています。さらに、大きな通りから入った路地裏に位置しているため、人通りが多く活気がありながらも、落ち着いた雰囲気の中で業務に集中することができます。 周辺環境も非常に魅力的で、徒歩圏内にはコンビニや飲食店が豊富にあり、ランチタイムや仕事終わりのリラックスタイムにも困りません。この利便性の高さは、従業員の満足度向上に直結し、またビジネスパートナーを招待する際にも良い印象を与えることでしょう。 エントランスやエレベーターを含むビルの設備は、1基のエレベーターを含め、現代的でスタイリッシュなデザインが施されており、ビルに訪れるすべての人に良い印象を与えます。神宮前柴田ビルは、ビジネスの拠点としてだけでなく、ブランドイメージを高めるための物件としても最適です。 神宮前柴田ビルは、機能性と利便性、デザイン性を兼ね備えた非常に魅力的な賃貸オフィス物件です。ビジネスの成功を支える最適な環境をお探しの企業様に、自信を持ってお勧めします。
神宮前柴田ビルのこだわり
自分で探すより問い合わせる方が早いことがあります
WEB非公開物件があるから
オーナー様のご希望により「WEBでは非公開」にしている物件があります。 それらはWEBでいくら検索しても見つかりません。 先ずは条件などお知らせ頂けましたら非公開物件含め ピッタリのオフィスをご提案させて頂きます。 無理なお勧めはしておりませんので、お気軽にお問い合わせください。
対面でのご相談も受け付けております
ご来店も歓迎です
オフィス移転は社内・社外ともに非公開に行われることが殆どです。そのためアットオフィスでは、基本的に訪問によるコンサルティングを行っておりますが、ご来店の相談も歓迎です。お一人おひとりに親身にご対応させて頂きたい為、要予約とさせて頂いております。ご来店の際は先ずは下記よりご予約下さい。
募集終了のテナント区画
| 階数 | 坪数 | 賃料 + 共益費 | 敷金/礼金敷金 礼金 | 検討 |
|---|---|---|---|---|
| B1階 | 22.17坪 (73.28m²) | 募集終了 | - | - |
| 1階 | 37.78坪 (124.89m²) | 募集終了 | - | - |
| 2階 | 39.88坪 (131.83m²) | 募集終了 | - | - |
読込中...
表参道/外苑前エリアで神宮前柴田ビルに似た条件の物件
読込中...
| 取扱様態 | 仲介 |
|---|---|
| 取扱会社 | 株式会社 アットオフィス |