日本生命横浜西口ビルの賃料条件
| 階数 | 坪数 | 賃料 + 共益費 | 敷金/礼金敷金 礼金 | 検討 |
|---|---|---|---|---|
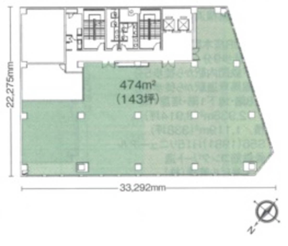
| 3階 | 152.65坪 (504.66m²) | お問合せ下さい (坪:-) | 相談 無相談/無 | |
| 5階 | 51坪 (167.62m²) | お問合せ下さい (坪:-) | 相談 無相談/無 |
※このサイトに記載がある賃貸条件は、敷金・保証金などの預かり金を除き、別途消費税がかかります。
物件情報
設備詳細
| 空調 | セントラル空調 |
|---|---|
| トイレ | - |
| 床仕様 | OA対応床(フリーアクセス) |
| エレベータ | 1 基 |
| 駐車場設備 | - |
| その他 | - |
日本生命横浜西口ビルの賃貸オフィス・事務所に関するお問い合わせ
日本生命横浜西口ビルについて
横浜駅すぐの好立地物件。地下道からすぐの物件です。大通り沿いのため視認性も高く、金融機関などが多く入居しております。築年数は経過しておりますが、耐震補強も行っているため安全性も高く、共用部なども随時リニューアルをしております。室内は窓面も広く明るい環境。柱などもそこまで目立たないです。OAフロア・機械警備など設備も整っているオフィス物件です。
日本生命横浜西口ビルのこだわり
自分で探すより問い合わせる方が早いことがあります
WEB非公開物件があるから
オーナー様のご希望により「WEBでは非公開」にしている物件があります。 それらはWEBでいくら検索しても見つかりません。 先ずは条件などお知らせ頂けましたら非公開物件含め ピッタリのオフィスをご提案させて頂きます。 無理なお勧めはしておりませんので、お気軽にお問い合わせください。
WEBから条件問い合わせをする(無料)
対面でのご相談も受け付けております
ご来店も歓迎です
オフィス移転は社内・社外ともに非公開に行われることが殆どです。そのためアットオフィスでは、基本的に訪問によるコンサルティングを行っておりますが、ご来店の相談も歓迎です。お一人おひとりに親身にご対応させて頂きたい為、要予約とさせて頂いております。ご来店の際は先ずは下記よりご予約下さい。
来店予約をする
募集終了のテナント区画
| 階数 | 坪数 | 賃料 + 共益費 | 敷金/礼金敷金 礼金 | 検討 |
|---|---|---|---|---|
| B2階 | 50.31坪 (166.32m²) | 募集終了 | - | - |
| 4階 | 33.83坪 (111.85m²) | 募集終了 | - | - |
| 4階 | 50.7坪 (167.62m²) | 募集終了 | - | - |
| 4階 | 19.54坪 (64.6m²) | 募集終了 | - | - |
| 4階 | 84.54坪 (279.48m²) | 募集終了 | - | - |
| 5階 | 84坪 (279m²) | 募集終了 | - | - |
| 5階 | 33.83坪 (111.85m²) | 募集終了 | - | - |
| 6階 | 51坪 (168.6m²) | 募集終了 | - | - |
| 7階 | 85坪 (280.99m²) | 募集終了 | - | - |
| 8階 | 33.88坪 (112m²) | 募集終了 | - | - |
| 8階 | 69坪 (229m²) | 募集終了 | - | - |
| 8階 | 52.22坪 (172.62m²) | 募集終了 | - | - |
| 8階 | 102坪 (337.19m²) | 募集終了 | - | - |
読込中...
西区エリアで日本生命横浜西口ビルに似た条件の物件
読込中...
| 取扱様態 | 仲介 |
|---|---|
| 取扱会社 | 株式会社 アットオフィス |